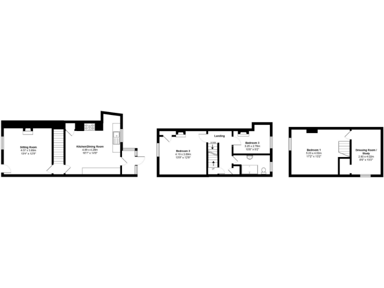
Character-filled three-bed home with enclosed sunny garden and adaptable rooms.
Grade II listed Victorian terraced cottage in village centre
Glenmore Cottage is a charming Grade II listed Victorian terraced home tucked in the heart of Foulsham’s Georgian market place. The house offers attractive period features throughout — sash windows, original fireplaces, exposed brick and timber — and living space spread over three floors that suits a growing family or those wanting village life.
Ground-floor living is bright and well proportioned: a cosy sitting room with a wood-burning stove flows to a sizeable kitchen/diner with solid oak worktops and space for a large table. A useful utility room opens to a fully enclosed rear garden that captures the sun, with a block-paved patio, artificial lawn and shed — a safe outdoor space for children or pets.
Bedrooms occupy the first and second floors, including two generous double rooms and a top-floor principal bedroom with an adjoining dressing room or home office. The family bathroom has been recently refurbished and includes a shower over a P-shaped bath. The property is freehold, in Council Tax Band B, and has no identified flood risk.
Important practical points: the Grade II listing protects historic fabric and will restrict some alterations and extensions; buyers should factor listed-building consent into any planned changes. Broadband and mobile signal are average for the area. Prospective purchasers are advised to arrange their own surveys and checks on services, as appliances and facilities have not been tested.
2 bedroom terraced house for sale in High Street, Foulsham, Dereham, Norfolk, NR20 — £190,000 • 2 bed • 1 bath • 610 ft²
4 bedroom semi-detached house for sale in Chain Free in Foulsham, NR20 — £375,000 • 4 bed • 2 bath • 2131 ft²
2 bedroom character property for sale in Great Yard, Saxthorpe, Norwich, NR11 — £220,000 • 2 bed • 1 bath • 603 ft²
2 bedroom semi-detached house for sale in Nelson Road, Fakenham, NR21 — £200,000 • 2 bed • 1 bath • 495 ft²
2 bedroom terraced house for sale in Church Lanes, Fakenham, NR21 — £160,000 • 2 bed • 1 bath • 553 ft²
3 bedroom terraced house for sale in Station Road, Great Ryburgh, Fakenham, Norfolk, NR21 — £200,000 • 3 bed • 3 bath • 979 ft²






































































































