Ready-to-live-in period home close to shops and schools.
Freehold Victorian mid-terrace, central Fakenham location
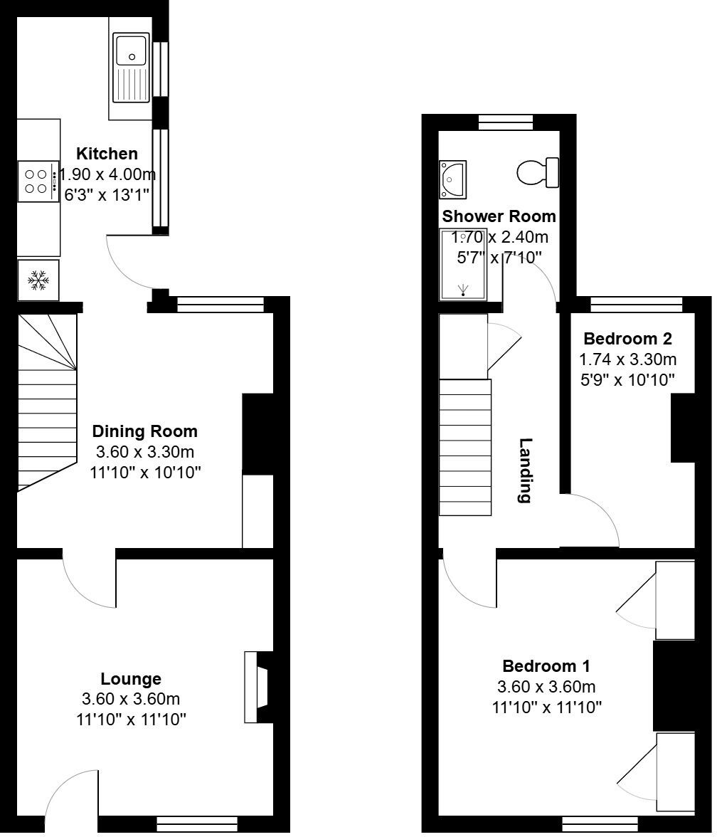
A recently refreshed Victorian terraced cottage in the heart of Fakenham, this two-bedroom home pairs period charm with practical updates. The sitting room and separate dining room create flexible living space, while a modern kitchen and contemporary bathroom make day-to-day living straightforward. The rear garden and patio offer an easy, private outdoor space for relaxing or family dining.
This property suits a small family, first-time buyers or those downsizing who want town-centre convenience—shops, schools and transport links are all within walking distance. Heating is provided by a mains-gas boiler to radiators and the house benefits from double glazing and a low council tax band, helping keep running costs modest.
Buyers should note the house is compact (approximately 553 sq ft) and sits on a small plot, so internal space is limited compared with larger family homes. Walls are original solid brick (insulation assumed absent) and the EPC is rated D; buyers seeking higher thermal performance may want to budget for insulation improvements. The double glazing install date is unspecified and services/appliances have not been independently tested, so a survey is recommended.
2 bedroom terraced house for sale in Queens Road, Fakenham, NR21 — £175,000 • 2 bed • 1 bath • 775 ft²
2 bedroom semi-detached house for sale in Nelson Road, Fakenham, NR21 — £200,000 • 2 bed • 1 bath • 495 ft²
2 bedroom terraced house for sale in Church Lanes, Fakenham, Norfolk, NR21 — £160,000 • 2 bed • 1 bath • 579 ft²
2 bedroom terraced house for sale in Church Lanes, Fakenham, NR21 — £160,000 • 2 bed • 1 bath • 535 ft²
2 bedroom cottage for sale in Church Lanes, Fakenham, Norfolk, NR21 — £160,000 • 2 bed • 1 bath • 514 ft²
2 bedroom end of terrace house for sale in Westmead Road, Fakenham, Norfolk, NR21 — £210,000 • 2 bed • 1 bath • 916 ft²














































































