Chain-free three-bed family home with garden and garage, ideal for refurbishment.
- Three bedrooms and family bathroom (plus separate WC)
- Chain free sale ready for immediate purchase
- Front and rear gardens with decent-sized plot
- Long driveway and single garage providing off-street parking
- EPC rating D; energy improvements may be required
- Requires modernisation throughout: kitchen, bathroom, decoration
- Double glazing and mains gas central heating in place
- Approx 811 sq ft; typical 1970s construction and layout
This three-bedroom semi-detached house in popular Oakworth offers straightforward family accommodation and clear scope for value uplift. Set on a decent plot with front and rear gardens, long driveway and single garage, the property is offered chain free and benefits from gas central heating, double glazing and a D EPC rating.
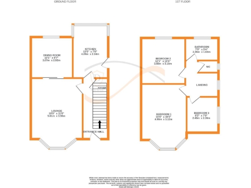
Internally the layout is traditional: entrance hall, spacious lounge with bay window and dining room, fitted kitchen with rear access, and three bedrooms plus a bathroom and separate WC upstairs. Overall footprint and room sizes are typical for a 1970s build (approximately 811 sq ft) and the house is ready for cosmetic updating to suit a new buyer’s tastes.
Key positives are the village location with good primary schools nearby, off-street parking and garage, and fast broadband for home working. The clear negatives are that the property needs modernisation throughout (kitchens, bathrooms, floor coverings and likely decorative work) and has an EPC of D. Buyers should allow a refurbishment budget to fully realise the home’s potential.
3 bedroom semi-detached house for sale in Providence Crescent, Oakworth, Keighley, BD22 — £249,995 • 3 bed • 1 bath • 731 ft²
3 bedroom semi-detached house for sale in Valley View Close, Oakworth, Keighley, BD22 — £180,000 • 3 bed • 1 bath • 655 ft²
3 bedroom semi-detached house for sale in Bronte Drive, Oakworth,, BD22 — £189,950 • 3 bed • 1 bath • 847 ft²
3 bedroom semi-detached house for sale in Bronte Drive, Oakworth, Keighley, BD22 — £210,000 • 3 bed • 1 bath • 609 ft²
3 bedroom terraced house for sale in Windsor Crescent, Oakworth, Keighley, BD22 — £175,000 • 3 bed • 1 bath • 738 ft²
3 bedroom semi-detached house for sale in Moor Drive, Oakworth, Keighley, BD22 — £280,000 • 3 bed • 1 bath • 1083 ft²


































































