Elegant two-bedroom home with high ceilings and communal gardens near Hyde Park.
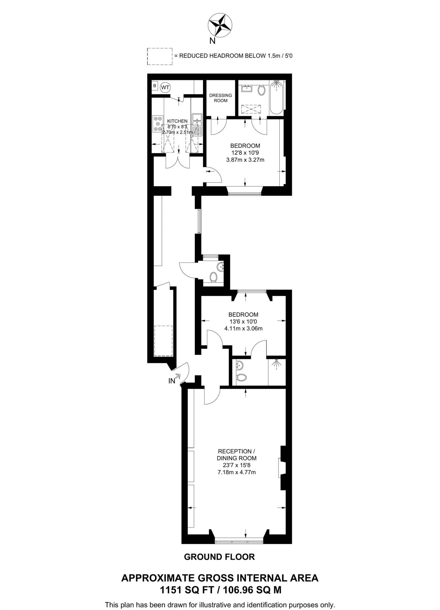
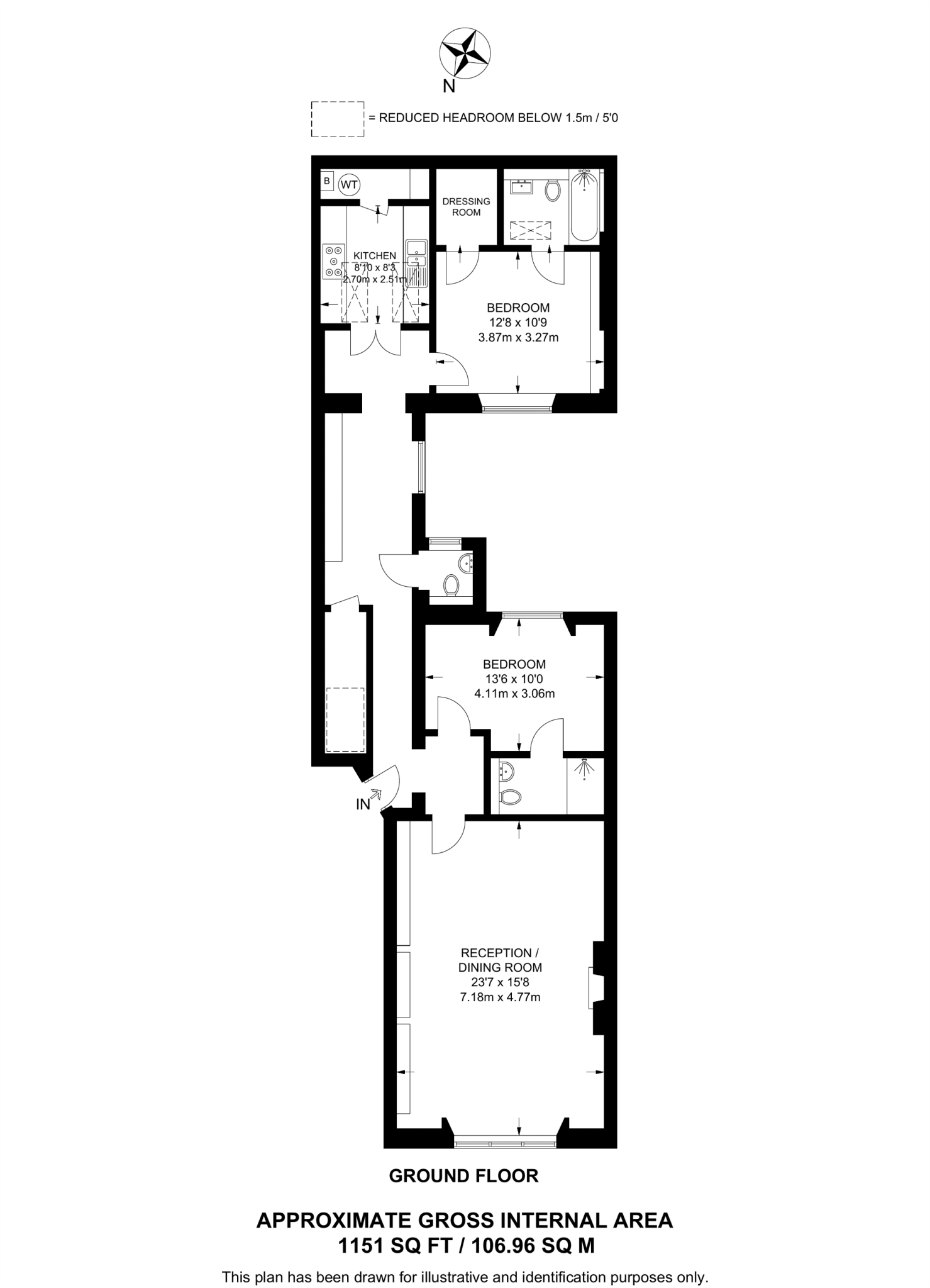
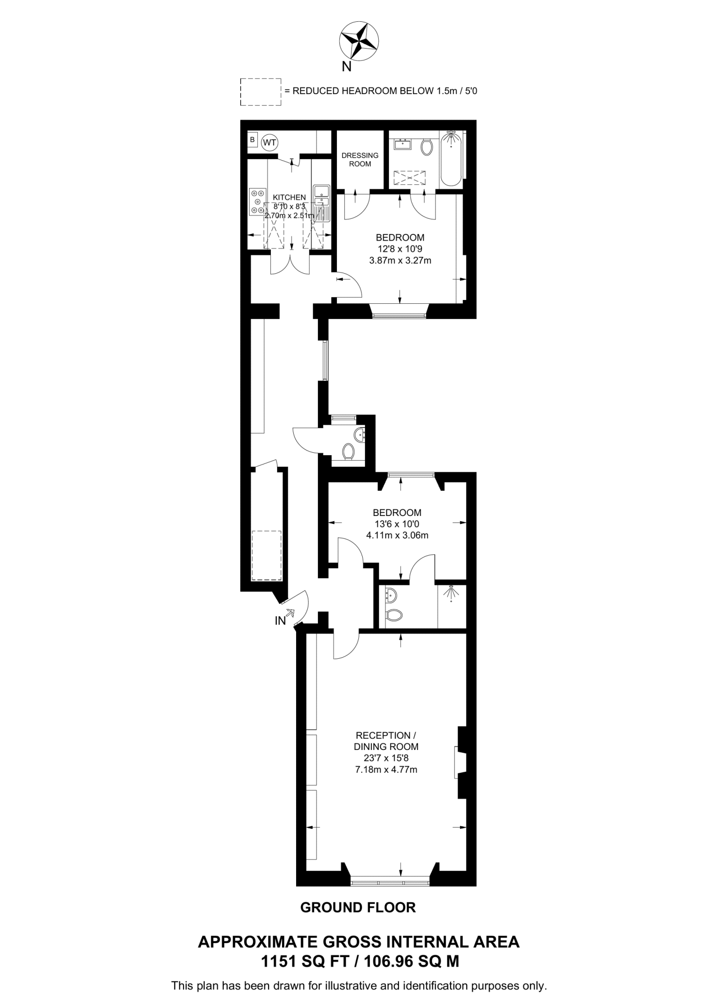
Approximately 1,151 sq ft with very high ceilings and period cornicing
This architect-designed two-bedroom flat occupies a handsome stucco-fronted period conversion in Cleveland Square, moments from Hyde Park and local shops. The apartment feels generous at about 1,151 sq ft, with very high ceilings, original cornicing and a large reception room centred on a marble fireplace — ideal for relaxed entertaining or comfortable everyday living.
The principal bedroom benefits from a limestone-floored en suite, and the second bedroom also has its own en suite — a practical layout for sharing or guests. Residents enjoy private access to the landscaped Georgian communal gardens. Practical advantages include a long residual lease (share of freehold) and fast broadband plus excellent mobile signal.
Notable costs and considerations are clear: the current service charge is above average at £5,100 per year, and the building’s solid brick construction likely lacks cavity insulation, which can affect heating efficiency and running costs. Crime levels in the immediate area are reported above average — worth factoring into viewings and insurance.
Overall this is a characterful, architecturally interesting central-London home that suits buyers seeking period detail, generous room proportions and garden access, while accepting higher service costs and potential energy-improvement work.
2 bedroom apartment for sale in Cleveland Square, Bayswater, W2 — £1,375,000 • 2 bed • 2 bath • 1032 ft²
2 bedroom flat for sale in Cleveland Square, Bayswater, London, W2 — £1,350,000 • 2 bed • 2 bath • 961 ft²
1 bedroom flat for sale in Cleveland Square, London, W2 — £550,000 • 1 bed • 1 bath • 594 ft²
3 bedroom apartment for sale in Cleveland Square, Bayswater, W2 — £1,950,000 • 3 bed • 2 bath • 1122 ft²
1 bedroom apartment for sale in Cleveland Square, Bayswater, W2 — £415,000 • 1 bed • 1 bath • 554 ft²
4 bedroom ground floor maisonette for sale in Cleveland Square, Cleveland Square, London W2 — £4,500,000 • 4 bed • 2 bath • 2838 ft²


































































































































































































































































































































































































































































































































































