Substantial waterfront estate with extensive grounds and exceptional Solent views.
About 128 metres private beach frontage and concrete slipway
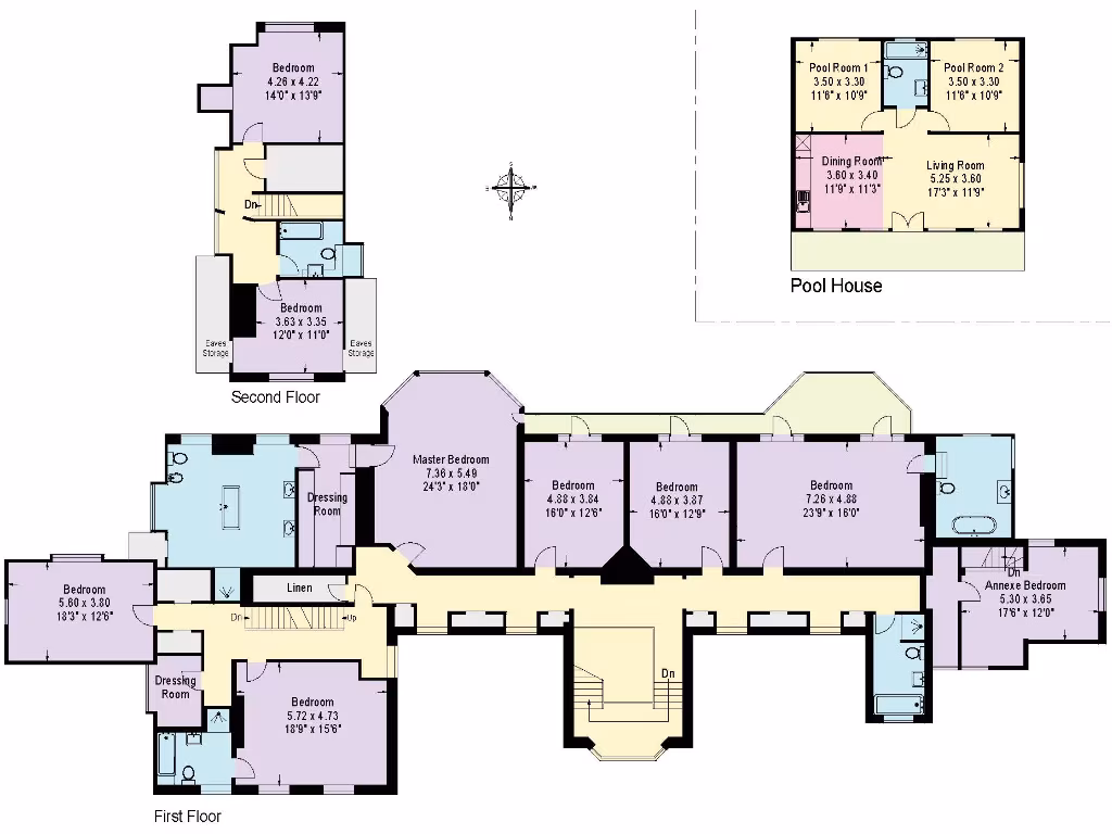
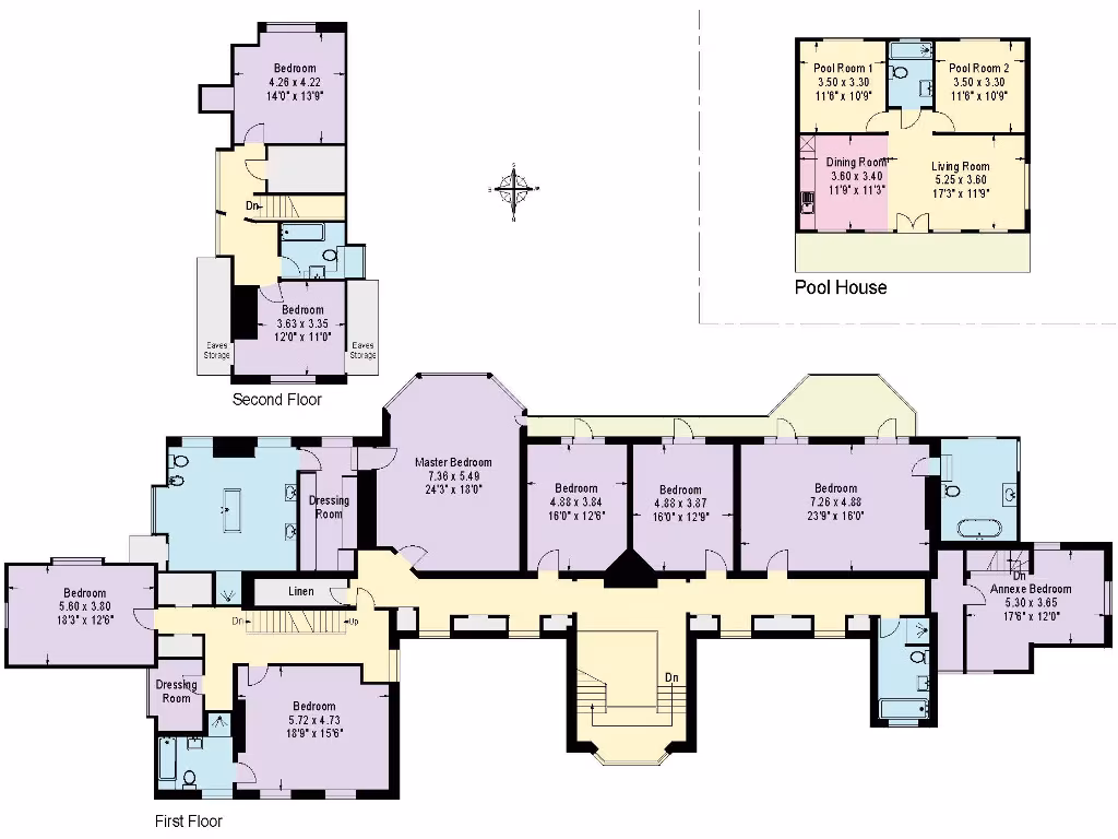
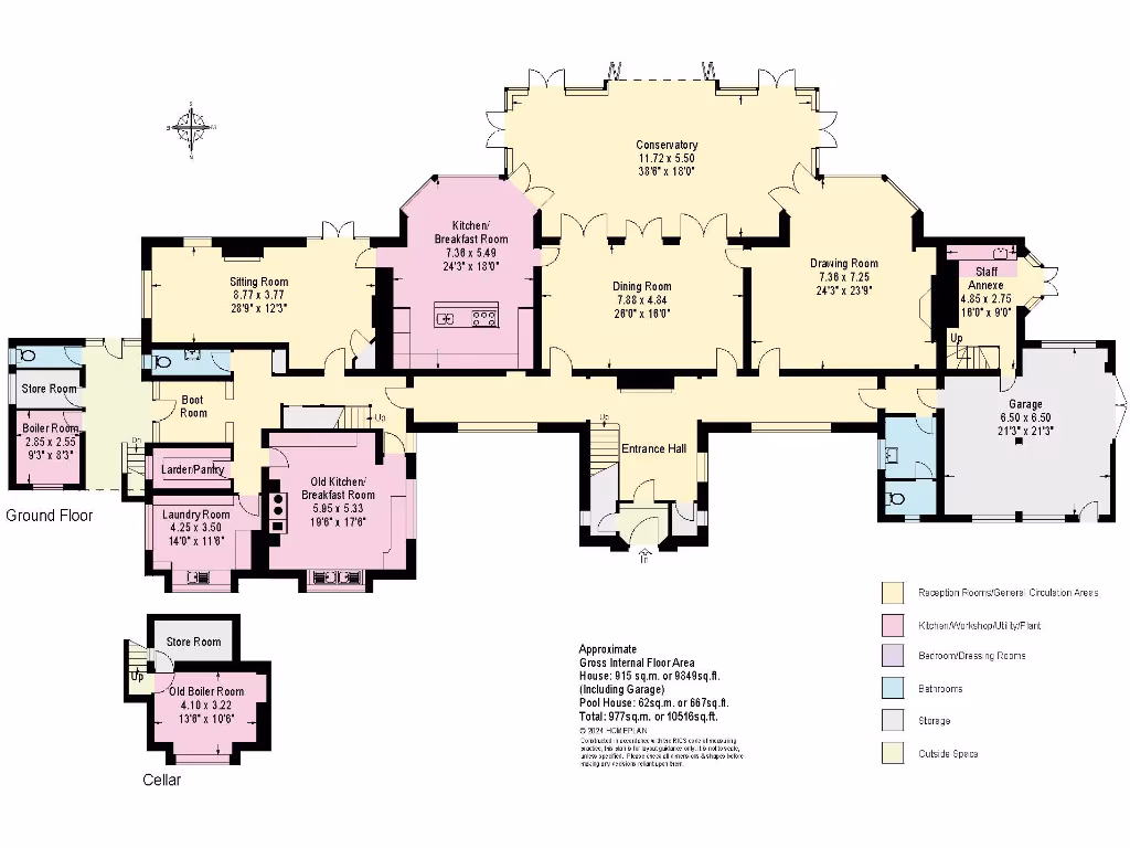
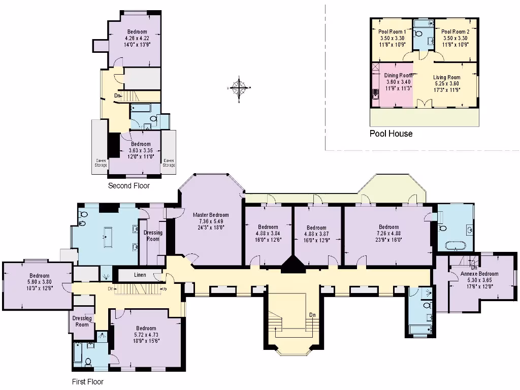
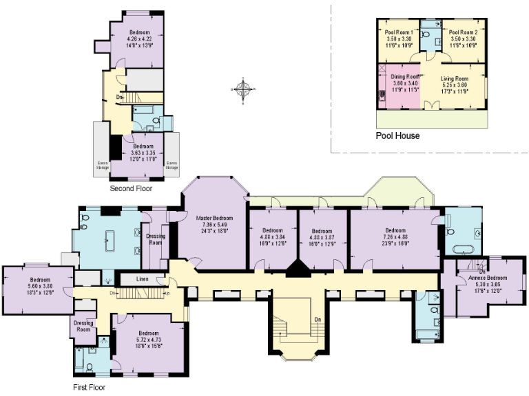
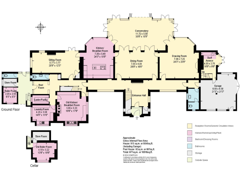
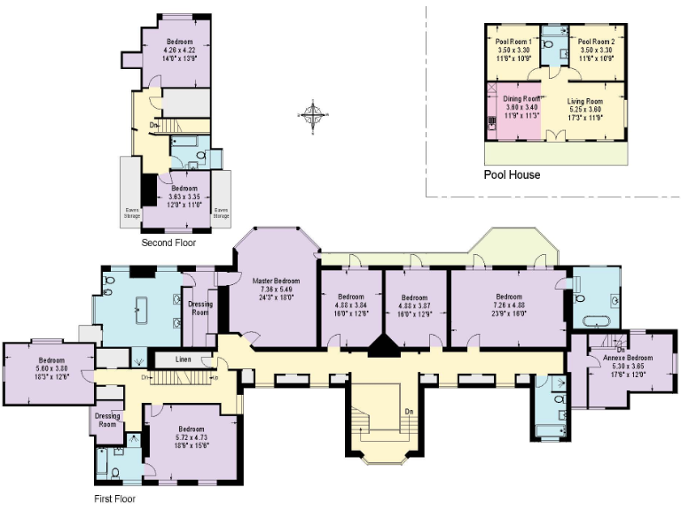
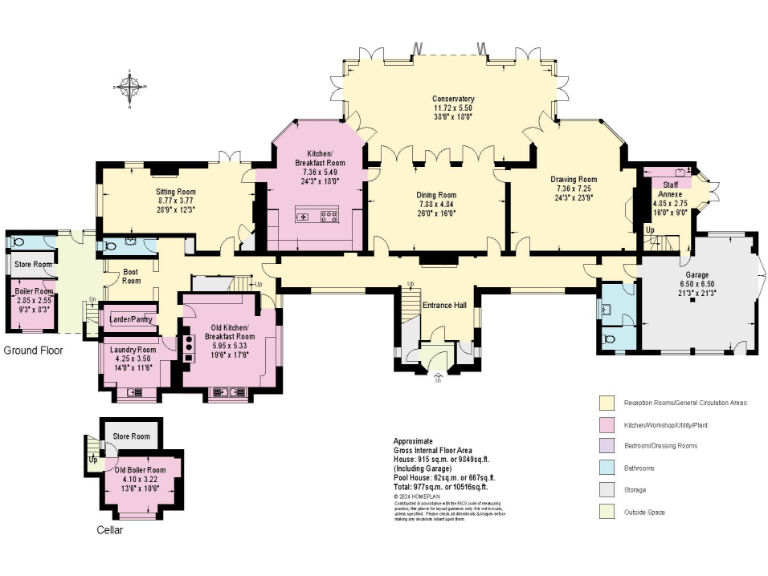
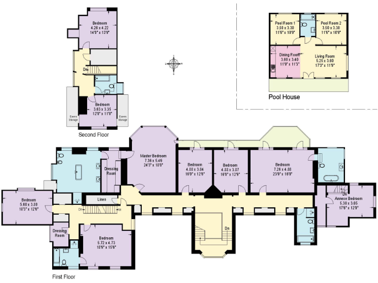
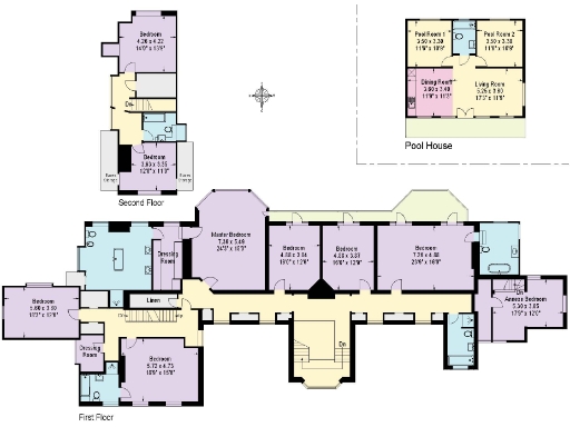
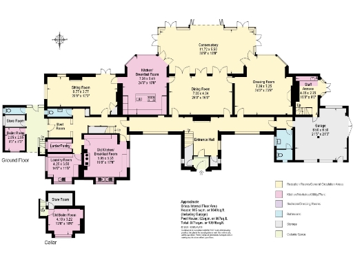
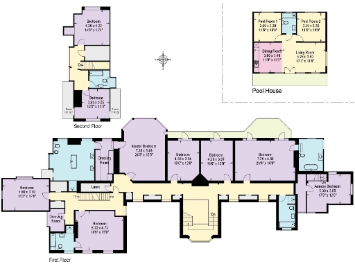
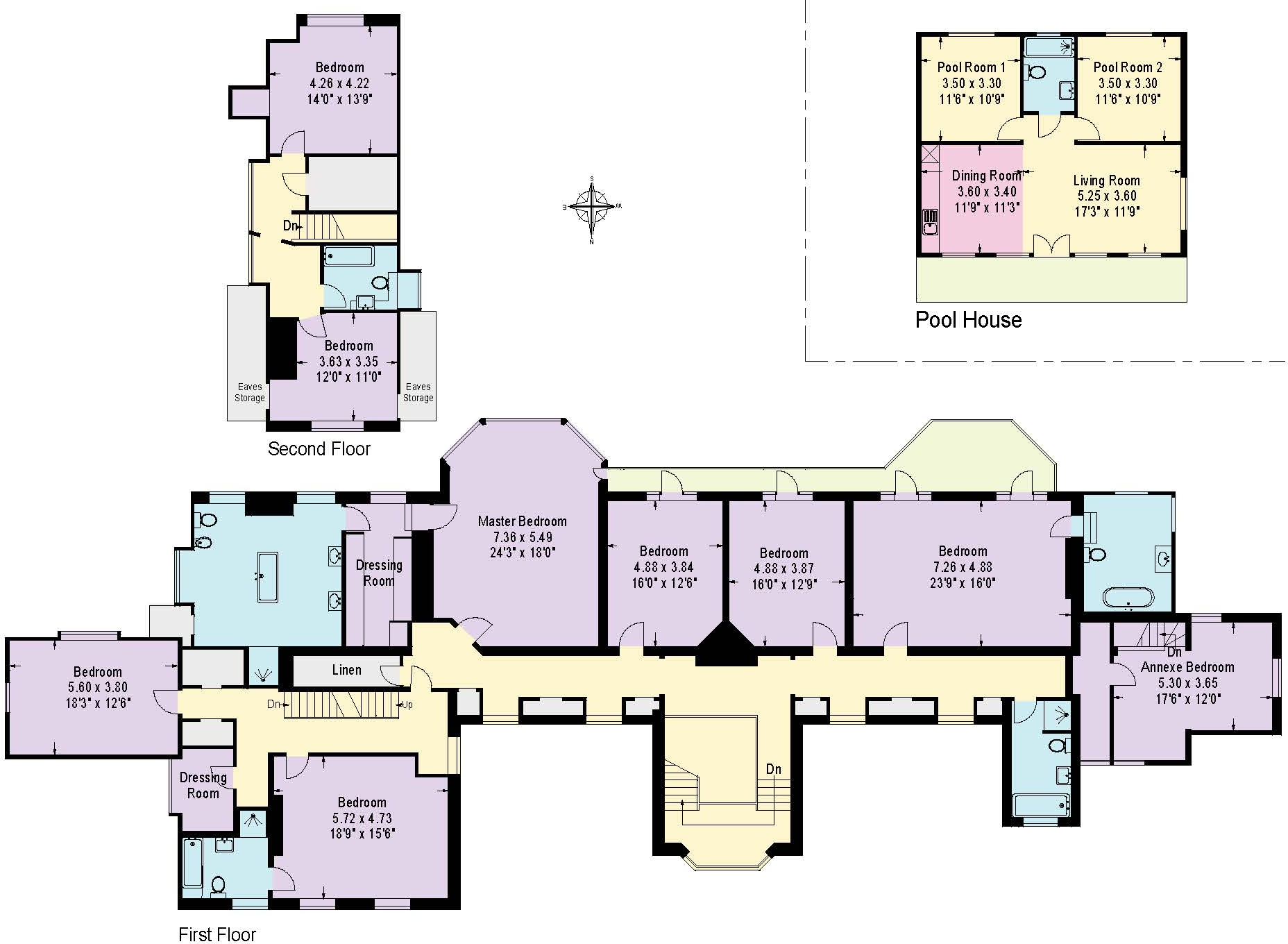
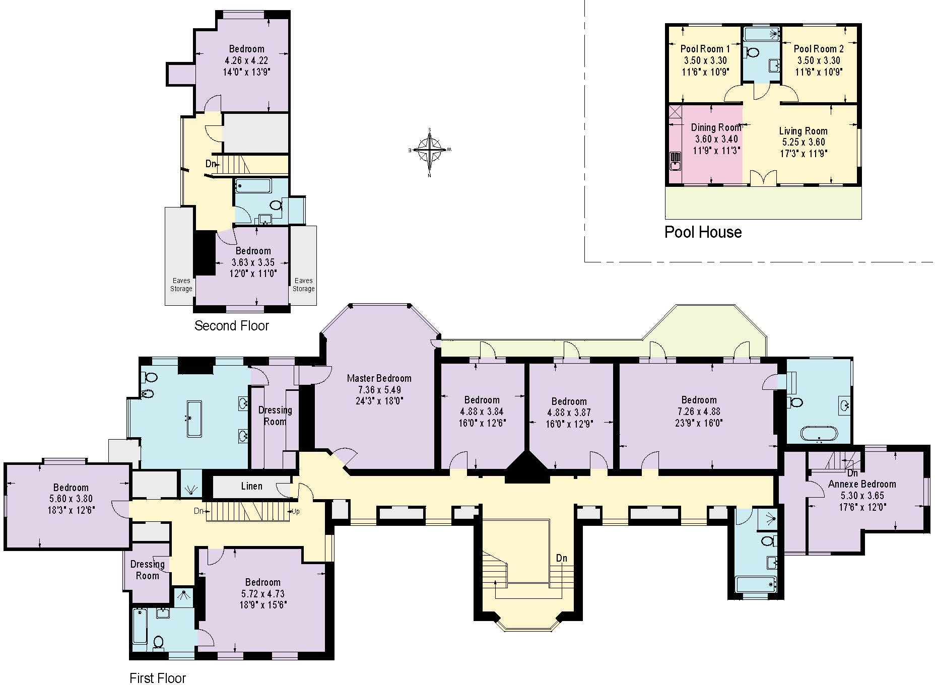
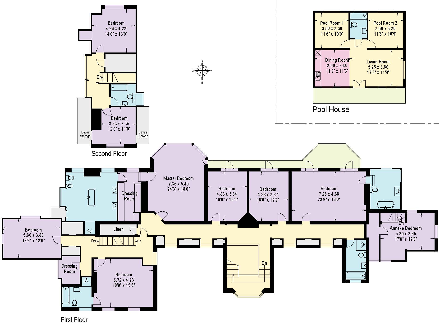
House on the Shore is a rare seafront country estate in the New Forest with direct water access and about 128 metres of private beach frontage. Built c.1914 in the Arts and Crafts manner and principally of Beaulieu brick, the house sits within c.20.5 acres of lawns, woodland and formal gardens, and has been substantially modernised in the last 15 years. The principal rooms face south across The Solent, delivering uninterrupted water views and generous entertaining spaces including a large conservatory and four main reception rooms.
The accommodation totals eight bedrooms, five bathrooms and multiple reception rooms across a multi-wing, multi-storey plan (approx. 10,231 sq ft gross). Recent works include full re-plumbing, re-wiring, upgraded insulation, Gigabit fibre to main house and pool house, and targeted restoration of traditional features — oak windows and boards, lime plaster and retained period fireplaces. Practical outbuildings include a gardener’s bothy, implement sheds, an integral garage, a pool house with guest annexe and a floodlit tennis court.
This property will suit buyers seeking privacy, coastal lifestyle and generous grounds — a large family home or an exclusive holiday/lettings proposition. It does, however, carry important ongoing costs: oil-fired heating, private drainage and a very expensive council tax band. The size and estate nature also imply higher maintenance and running demands despite recent renovations.
Set at the end of a long private road within the Sowley and Beaulieu Estates, the house offers seclusion and strong local amenity links (nearby sailing, country hotels, and reputable schools). Prospective buyers should factor in estate-scale upkeep, utility arrangements and service access when assessing longer-term running costs and any commercial use potential.
8 bedroom detached house for sale in Thorns Beach, Beaulieu, SO42 — £12,500,000 • 8 bed • 5 bath • 10231 ft²
6 bedroom detached house for sale in Crofton Avenue, Hill Head, Hampshire, PO13 — £2,950,000 • 6 bed • 4 bath • 7160 ft²
5 bedroom detached house for sale in Downton Lane, Downton, Lymington, Hampshire, SO41 — £925,000 • 5 bed • 2 bath • 2028 ft²
7 bedroom detached house for sale in Prinsted Lane, Prinsted, Emsworth, West Sussex, PO10 — £3,200,000 • 7 bed • 1 bath • 6285 ft²
4 bedroom semi-detached house for sale in Bucklers Hard, Beaulieu, Brockenhurst, SO42 — £1,775,000 • 4 bed • 3 bath • 2000 ft²
6 bedroom detached house for sale in Dock Lane, Beaulieu, Brockenhurst, SO42 — £2,750,000 • 6 bed • 3 bath • 3430 ft²


































































































































































































































































































































































































































