**Standout Features:**
- Gross Initial Yield: 7.09%
- Annual Rental Income: £70,560
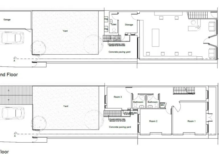
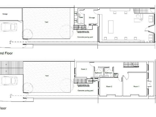
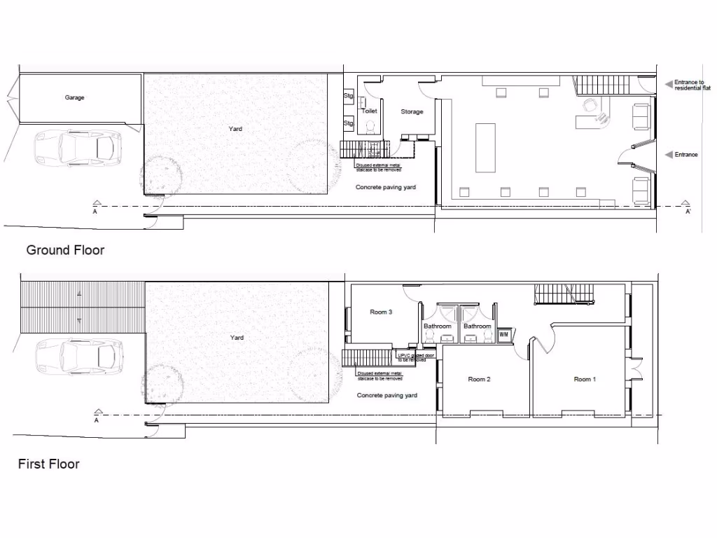
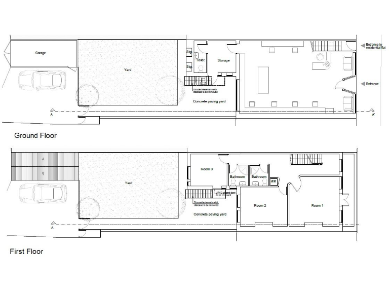
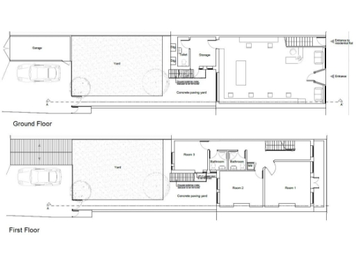
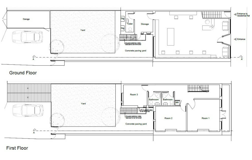
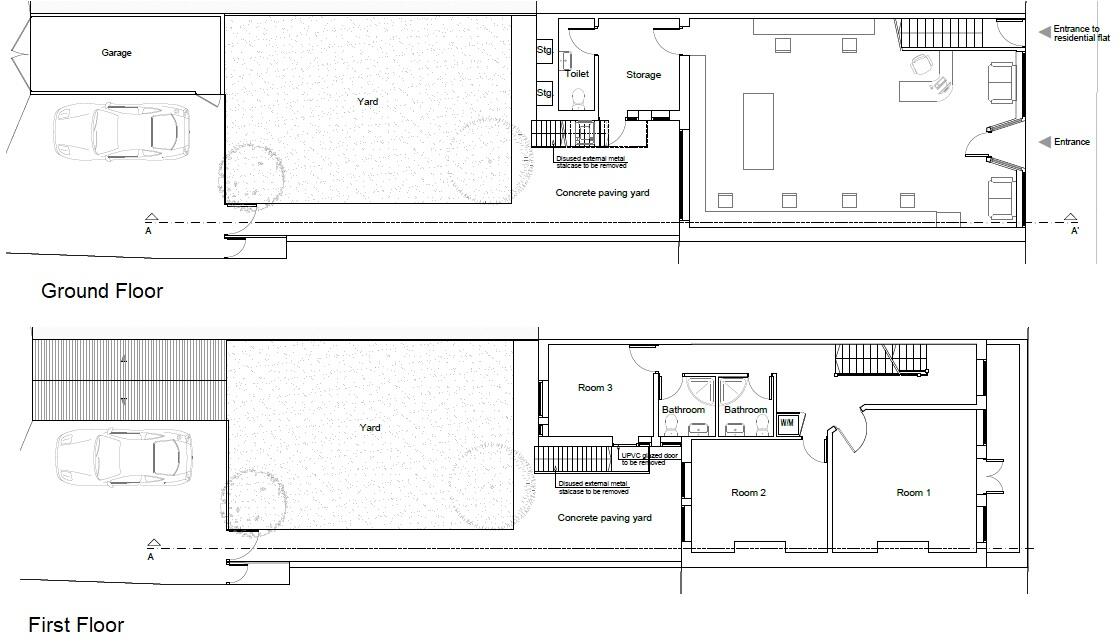
- Mixed-use property: Retail shop at ground floor; 5-Bed HMO on first and second floors
- Planning approval previously granted for a rear extension to enhance retail space
- Located on a busy street with strong visibility and foot traffic
- Excellent mobile and broadband connectivity
**Summary:**
Discover a prime investment opportunity in the heart of Harrow with this mixed-use property. Generating a robust annual rental income of £70,560, this building features a thriving ground floor retail shop currently operating as a tattoo parlour, along with a five-bedroom House in Multiple Occupation (HMO) that offers flexible residential solutions. Additionally, planning permission for a single-storey extension at the rear presents potential for further development, increasing both usage and return on investment.
Located along the bustling Watford Road, this property benefits from high visibility and easy access to amenities, including popular local retailers like the Post Office and Costcutter. Families will appreciate nearby respected schools with strong Ofsted ratings, making this area desirable for residents. With a gross initial yield of 7.09%, this investment offers not just security in cash flow but also potential for appreciation.
While the property is well-maintained, future owners may want to explore additional upgrades or extensions to maximize its potential. Don't miss this rare chance to invest in a versatile asset in a vibrant, multicultural community—seize this opportunity before it’s gone!
Mixed use property for sale in 376-380 Northolt Road, Harrow, HA2 8ES, HA2 — £1,200,000 • 1 bed • 1 bath • 5123 ft²
4 bedroom house of multiple occupation for sale in 63 Byron Road, Harrow, Middlesex, HA3 — £700,000 • 4 bed • 1 bath • 1220 ft²
High street retail property for sale in 344 St. Albans Road, Watford, Hertfordshire, WD24 6PQ, WD24 — £65,000 • 1 bed • 1 bath
Shop for sale in Court Parade, Wembley, HA0 — £400,000 • 1 bed • 1 bath • 1402 ft²
House of multiple occupation for sale in South Hill Avenue, Harrow, Middlesex, HA2 — £1,100,000 • 1 bed • 1 bath • 1460 ft²
High street retail property for sale in Kenton Road, Harrow, Greater London, HA3 — £1,300,000 • 1 bed • 1 bath • 2453 ft²






































