Large three-bedroom home ideal for investors or sharers near St Pauls Square.
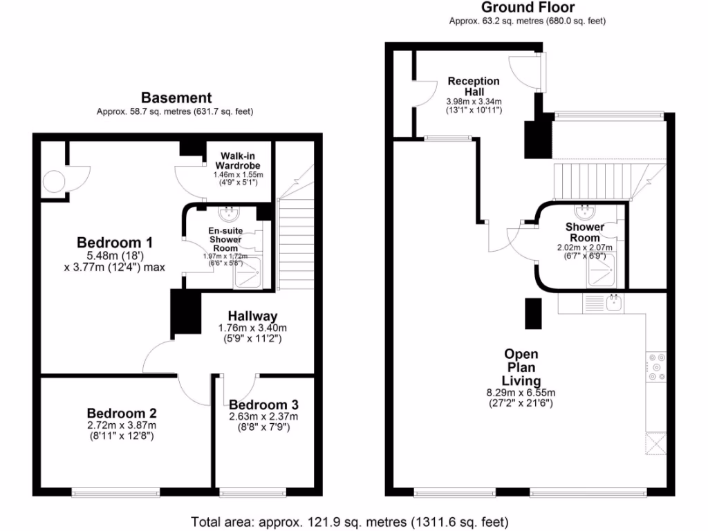
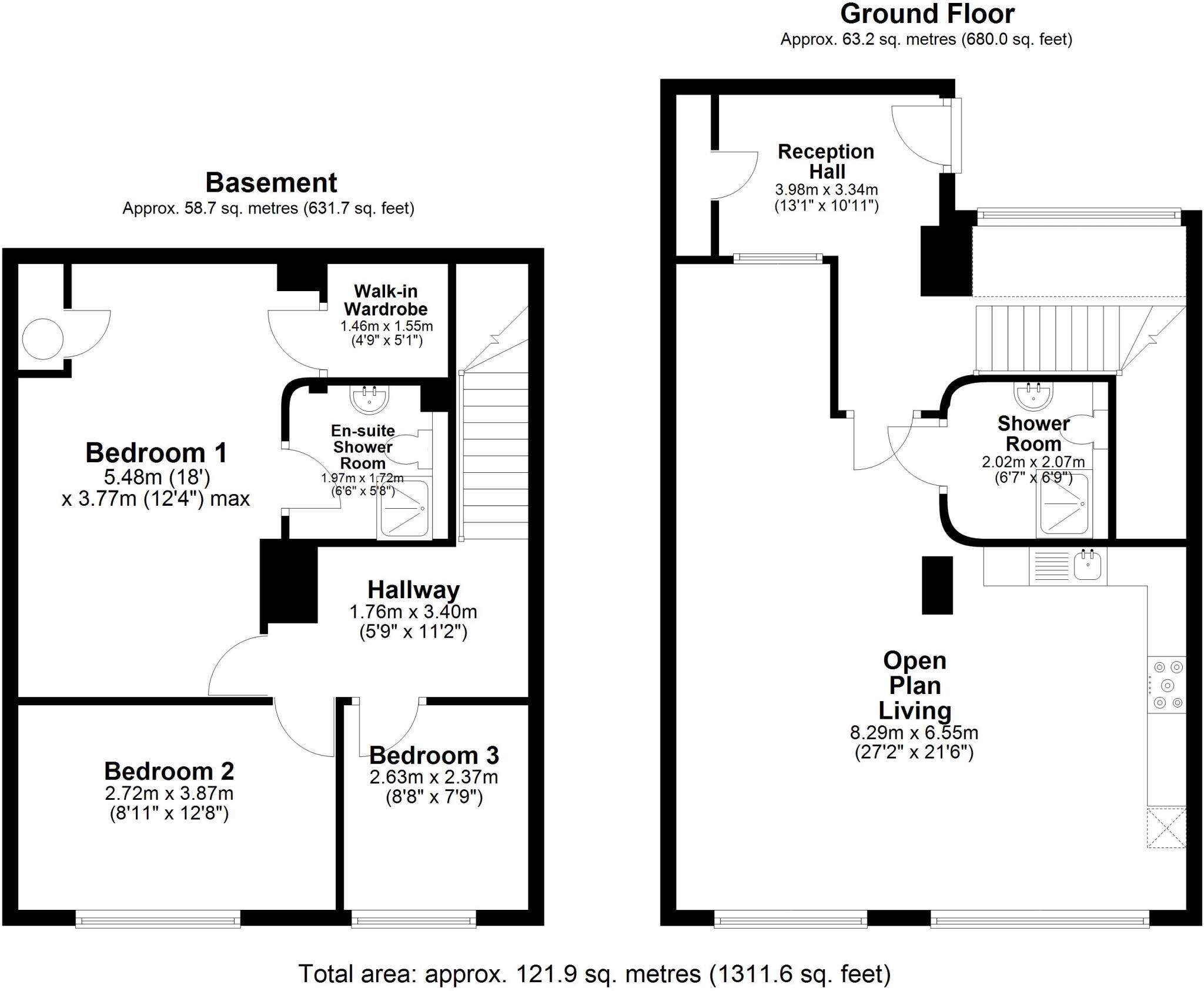
Three-bedroom duplex arranged over two floors, approx. 1,311 sq ft
Set across two floors, this three-bedroom duplex provides roomy city living in the Jewellery Quarter. At about 1,311 sq ft the layout suits sharers, investors or buyers wanting separate bedroom space and an open-plan reception for entertaining. The property is chain free and comes with a 999-year lease, offering secure long-term ownership potential.
The building dates from the early 20th century and retains a brick, industrial façade that provides period character. Large windows bring plenty of natural light to the contemporary open-plan living area. Practical notes: heating is electric (room heaters), broadband speeds are average, and the service charge is above average at £4,800 per year.
Location is a key asset — short walk to St Paul’s Square with cafés, bars and amenities, and within easy walking distance of local transport links and universities. The immediate area is a cosmopolitan, student-heavy neighbourhood which supports rental demand but can be lively at times.
Material drawbacks are stated plainly: recorded local crime levels are high, the communal service charge is substantial, and the property uses electric heating rather than gas central heating. These factors are important for budgeting and tenant attraction if bought to let.
2 bedroom apartment for sale in Graham Street, Birmingham, B1 — £270,000 • 2 bed • 1 bath
1 bedroom apartment for sale in Camden Street, Jewellery Quarter, Birmingham, B1 — £155,000 • 1 bed • 1 bath • 646 ft²
1 bedroom apartment for sale in Cliveland Street, Birmingham, B19 — £200,000 • 1 bed • 2 bath • 516 ft²
2 bedroom flat for sale in Legge Lane, Birmingham, West Midlands, B1 — £220,000 • 2 bed • 2 bath • 673 ft²
2 bedroom apartment for sale in The Pressworks, The Jewellery Quarter, B3 — £295,000 • 2 bed • 2 bath • 705 ft²
1 bedroom duplex for sale in St. Pauls Square, Birmingham, West Midlands, B3 — £415,000 • 1 bed • 1 bath • 1299 ft²






























































