Sunny rear garden and large garage within walking distance of town and schools.
- Three bedrooms with two having fitted wardrobes
- Two reception rooms offering flexible living space
- Generous south-facing rear garden and patio areas
- Larger-than-average detached garage with rear access
- Single shower/wet room only; no separate bath
- Located in a very deprived area with higher crime rates
- Average total size (approx 832 sq ft); some modernisation needed
- Freehold tenure and low council tax band
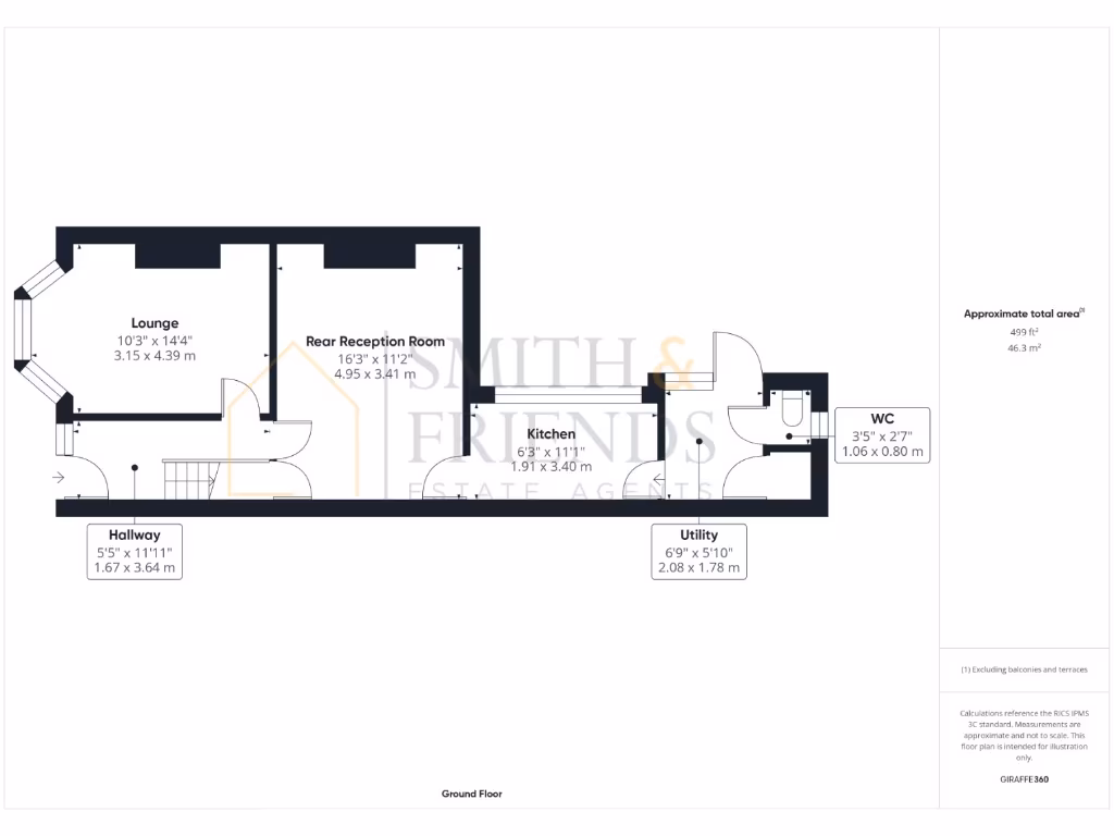
This mid-terraced home on Hart Lane offers practical family accommodation with genuine extras. Two reception rooms give flexible living and dining space, while three bedrooms suit a young family or first purchase. A long, south-facing rear garden and a larger-than-average detached garage are standout features for the price.
The property is offered freehold at a reduced price of £104,950 and benefits from gas central heating and uPVC double glazing. The ground floor layout includes a bay-fronted lounge, full-width rear reception, kitchen, utility and a ground-floor WC. Upstairs there are two fitted bedrooms, a small third bedroom and a shower/wet room.
Buyers should note the surrounding area is very deprived with higher local crime rates and terraced streets typical of blue-collar neighbourhoods. The house is average in overall size (approximately 832 sq ft) and would benefit from some internal modernisation and potential improvements to wall insulation. These factors are reflected in the price and create clear scope to add value for those willing to improve the home.
Convenience is strong: Sacred Heart Primary is adjacent, several other schools are nearby, and Hartlepool town centre is within easy walking distance. For first-time buyers or investors seeking an affordable starter home with garden and garage potential, this property offers a practical, well-located opportunity.
3 bedroom terraced house for sale in Wharton Terrace, Hartlepool, TS24 — £70,000 • 3 bed • 1 bath • 754 ft²
3 bedroom terraced house for sale in Hart Lane, Hartlepool, TS26 — £115,000 • 3 bed • 1 bath • 844 ft²
3 bedroom semi-detached house for sale in Zetland Road, HARTLEPOOL, TS26 — £135,000 • 3 bed • 1 bath • 832 ft²
3 bedroom semi-detached house for sale in Greta Avenue, Hartlepool, Durham, TS25 — £100,000 • 3 bed • 1 bath • 1022 ft²
3 bedroom terraced house for sale in Arncliffe Gardens, Hartlepool, TS26 — £125,000 • 3 bed • 1 bath • 947 ft²
3 bedroom terraced house for sale in Granville Avenue, Hartlepool, TS26 — £150,000 • 3 bed • 1 bath • 1310 ft²






























