South-facing garden, garage and secure parking — ideal for a practical family move.
Chain free and available immediately
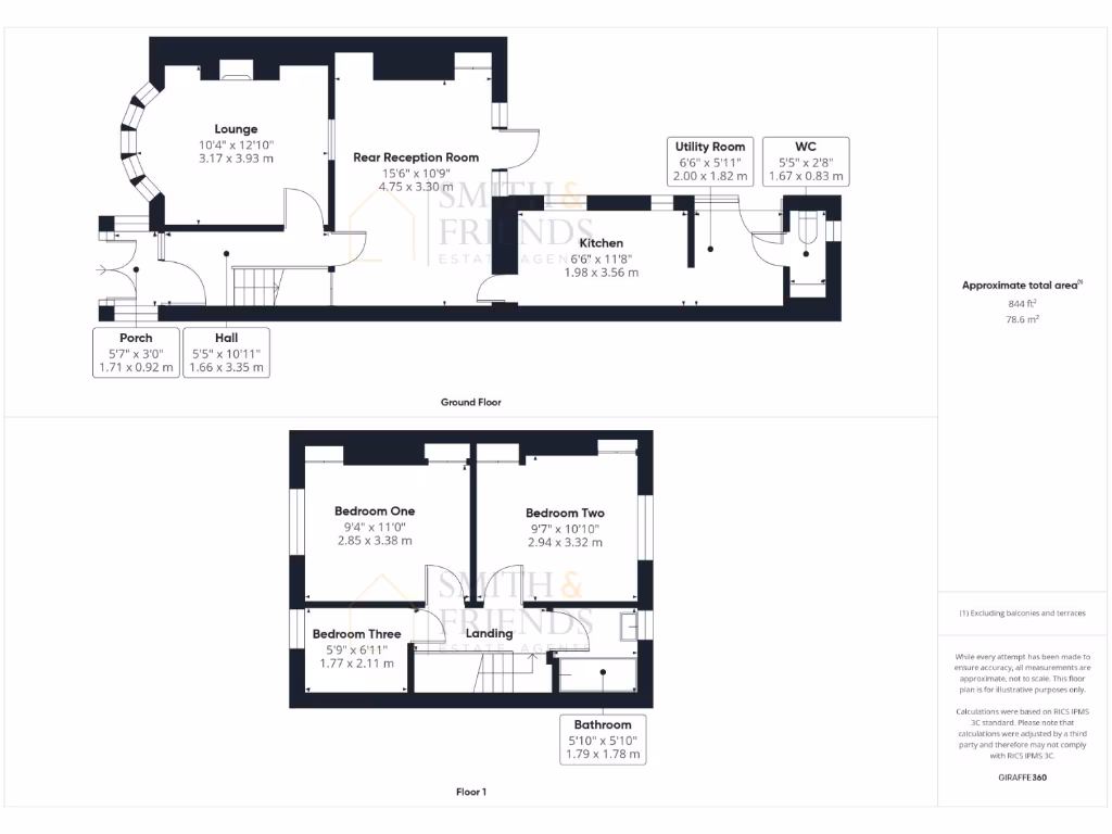
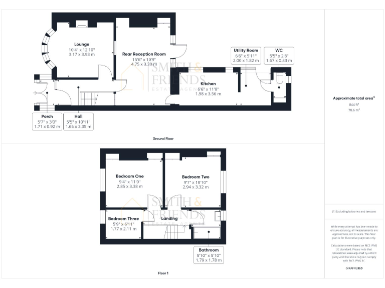
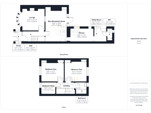
This mid-terraced three-bedroom house on Hart Lane offers practical family living with immediate availability and no chain. The layout includes two reception rooms, a kitchen with adjoining utility and ground-floor WC, plus a first-floor bathroom — a traditional plan that suits everyday family routines. The property benefits from gas central heating, uPVC double glazing and a useful boarded attic for extra storage.
Outside, the enclosed south-facing rear garden is a standout for the price, designed to be low maintenance with paving, artificial turf and planting areas that catch summer sun. Secure off-street parking is provided via a remote-controlled roller door and hardstanding, with a detached garage at the rear useful for parking or storage. The home sits within walking distance of several well-regarded primary and secondary schools and local amenities, making it convenient for families.
The house is in a very deprived area with a high local crime rate and sits within older mid-20th-century terraces; the exterior and some features are dated and would benefit from modernization. The plot is small and the overall property footprint is average (approximately 844 sq ft), so buyers seeking large gardens or expansive internal space should note the limits. The price and chain-free status make this a practical option for buyers wanting an affordable family home or a renovation-investment in an area with local rental demand.
Viewings are recommended for those seeking an immediately available, traditional three-bed in a convenient town location — bring realistic expectations about cosmetic updates and neighbourhood challenges, and you’ll find clear potential and sensible value at this level.
3 bedroom terraced house for sale in Topcliffe Street, Hartlepool, TS26 — £75,000 • 3 bed • 1 bath • 689 ft²
3 bedroom terraced house for sale in Tredegar Walk, Hartlepool, TS26 — £105,000 • 3 bed • 1 bath • 749 ft²
3 bedroom semi-detached house for sale in Easington Road, Hartlepool, TS24 — £125,000 • 3 bed • 1 bath • 1185 ft²
3 bedroom semi-detached house for sale in Beachfield Drive, Hartlepool, Cleveland, TS25 — £162,000 • 3 bed • 1 bath • 876 ft²
3 bedroom terraced house for sale in Westbourne Road, Hartlepool, TS25 — £105,000 • 3 bed • 1 bath • 904 ft²
3 bedroom terraced house for sale in Chatham Gardens, Hartlepool, TS24 — £79,950 • 3 bed • 1 bath • 703 ft²










































































































