Characterful village living with parking, garden and quick A14 access.
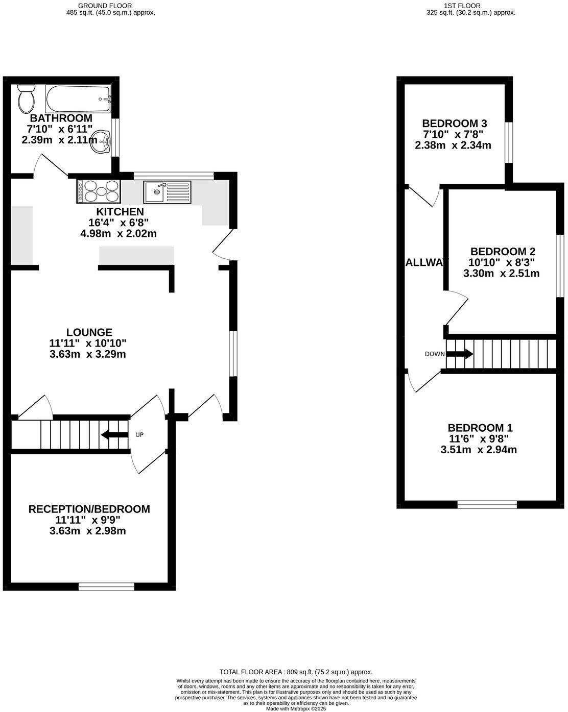
4 bedrooms with ground-floor bedroom option for single-level living
Set on a decent plot in the popular Stowupland hamlet, this extended Victorian cottage offers countryside views and straightforward village living. The house has been adapted for modern family life with an open-plan reception, a breakfast-bar kitchen and a contemporary ground-floor bathroom. A ground-floor bedroom option suits those needing single-level accommodation or flexible space.
Practical strengths include ample off-street parking on a gravel driveway and a detached garage, plus fast broadband and easy access to the A14. The property is freehold and sits close to local schools and amenities, making it a convenient choice for commuters and growing families who value rural surroundings without being isolated.
Be clear about scale: the overall internal size is small (approximately 809 sq ft) and there is just one bathroom serving four bedrooms. While the home has been extended, buyers should expect period features typical of a Victorian semi and decide whether further modernisation is desired. Local schools nearby have mixed Ofsted ratings—some good, one requiring improvement.
This cottage will suit first-time buyers or young families seeking a characterful home with parking and garden space, and buyers wanting a manageable renovation project to add value. It offers a comfortable base with scope to personalise rather than a turn-key large family house.
3 bedroom cottage for sale in Saxham Street, Stowupland, Stowmarket, IP14 — £315,000 • 3 bed • 2 bath • 1529 ft²
2 bedroom cottage for sale in Church Road, Stowupland,, IP14 — £275,000 • 2 bed • 1 bath • 864 ft²
3 bedroom end of terrace house for sale in Church Road, Stowupland, Stowmarket, IP14 — £350,000 • 3 bed • 1 bath • 643 ft²
2 bedroom semi-detached house for sale in Tannery Road, Combs, STOWMARKET, IP14 — £250,000 • 2 bed • 2 bath • 722 ft²
3 bedroom detached bungalow for sale in Saxham Street, Stowupland IP14 5DA, IP14 — £395,000 • 3 bed • 2 bath • 1482 ft²
2 bedroom end of terrace house for sale in Pains Hill, Little Stonham, STOWMARKET, IP14 — £300,000 • 2 bed • 2 bath • 867 ft²






































































