Spacious family home with rural views and strong scope for updating.
Three bedrooms plus dressing room that can be fourth bedroom
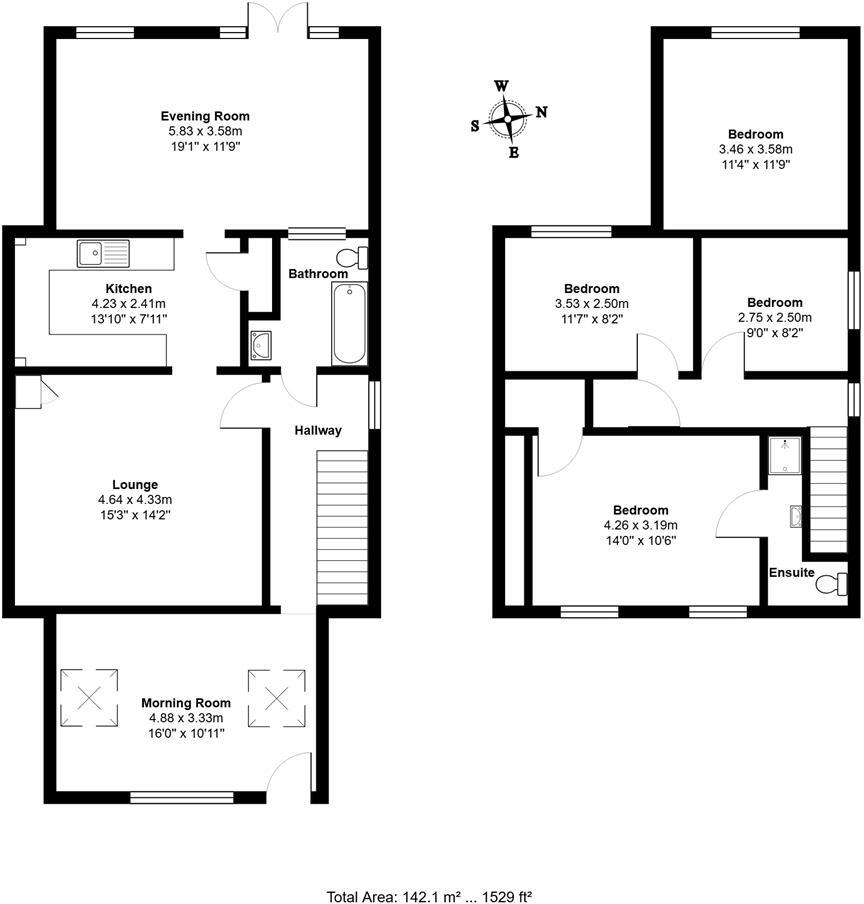
This semi-detached cottage on Saxham Street blends traditional character with flexible family living. Vaulted ceilings, exposed beams and an inglenook fireplace give the principal reception rooms rustic charm, while a garden room and morning room add usable living space and lots of natural light.
The layout includes three bedrooms plus a dressing room that works as a fourth bedroom, and an en-suite to the master. The rear faces open fields, offering pleasant rural views from upstairs and a large patio for outdoor entertaining. Off-road parking for three to four cars is a practical village convenience.
Buyers should note the property’s age and some maintenance needs: the exterior shows wear and ivy growth, cavity walls are uninsulated (as built), and the heating runs on an oil boiler. The double glazing is in place but install date is unknown. These factors mean the house will suit buyers looking to update and personalise rather than those wanting a completely turnkey home.
For families wanting village life with fast broadband and good access to Stowmarket and the A14, this cottage represents a spacious, characterful home with scope to improve energy performance and finish cosmetic updates to personal taste.
4 bedroom cottage for sale in Saxham Street, Stowupland, Stowmarket, IP14 — £280,000 • 4 bed • 1 bath • 809 ft²
2 bedroom cottage for sale in Church Road, Stowupland,, IP14 — £275,000 • 2 bed • 1 bath • 864 ft²
3 bedroom end of terrace house for sale in Church Road, Stowupland, Stowmarket, IP14 — £350,000 • 3 bed • 1 bath • 643 ft²
3 bedroom detached house for sale in Oxlip Way, Stowupland, Stowmarket, IP14 — £265,000 • 3 bed • 2 bath • 540 ft²
3 bedroom detached bungalow for sale in Saxham Street, Stowupland, Stowmarket, IP14 — £525,000 • 3 bed • 2 bath • 1455 ft²
2 bedroom end of terrace house for sale in Pains Hill, Little Stonham, STOWMARKET, IP14 — £300,000 • 2 bed • 2 bath • 867 ft²


















































































