**Standout Features:**
- Two/three-bedroom barn conversion
- Open-plan living space
- Two garages with electric doors
- Garden with summer house and fruit trees
- Convenient access to Swaffham town center
- Energy Efficiency Rating: C74
- Double glazing and gas central heating
- Parking for two vehicles
**Potential Concerns:**
- Average crime rate in the area
- Nearby schools have mixed Ofsted ratings
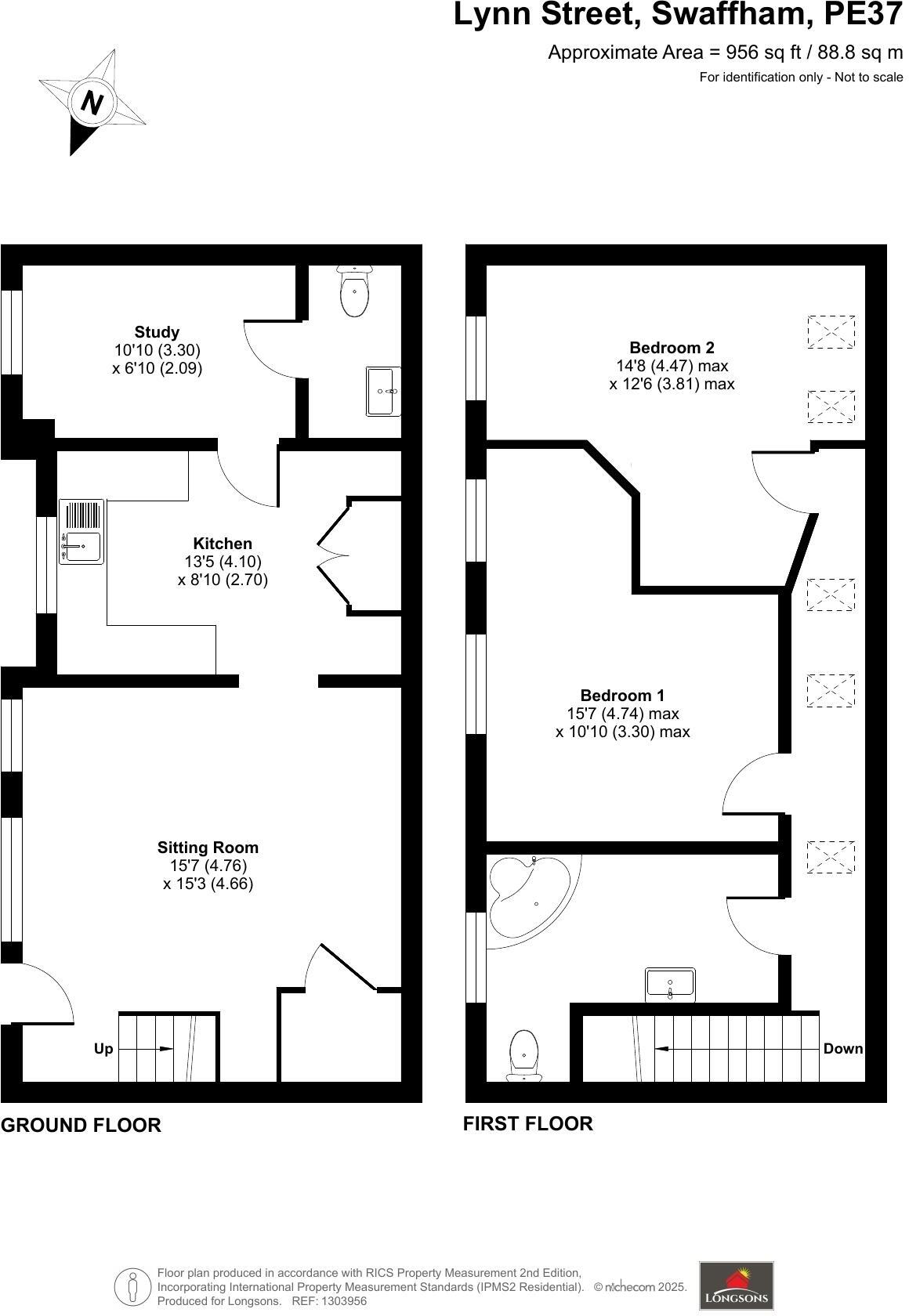
Discover this charming two/three-bedroom barn conversion in Lynn Mews, offering an ideal blend of rustic charm and modern living. Boasting an open-plan living area that fills the space with natural light, the property features a contemporary kitchen, a welcoming lounge, and an additional study/bedroom. Upstairs, two well-sized bedrooms provide cozy retreats. Enjoy the outdoor space with a lovely garden complete with a summer house, apple trees, and ample space for relaxation or play.
With two detached garages and two dedicated parking spaces, this home caters to families needing extra storage and convenience. Located just a stone's throw from Swaffham’s vibrant town center, you’ll benefit from a host of amenities, including local cafes, shops, and transport links, further emphasizing its family-friendly appeal. However, it's essential to note that the area experiences above-average crime rates and nearby schools have varied Ofsted ratings, which may impact family considerations.
Perfect as a family home or investment property, this unique conversion is a rare find. Don't wait to seize your opportunity to make this delightful barn your own—schedule a viewing today!
3 bedroom barn conversion for sale in Pit Lane, Swaffham, PE37 — £290,000 • 3 bed • 2 bath • 1292 ft²
3 bedroom barn conversion for sale in Pit Lane, Swaffham, PE37 — £290,000 • 3 bed • 2 bath • 1292 ft²
4 bedroom barn conversion for sale in Fincham, PE33 — £600,000 • 4 bed • 4 bath • 1856 ft²
6 bedroom barn conversion for sale in Beachamwell Road, Swaffham, PE37 — £850,000 • 6 bed • 4 bath • 4708 ft²
4 bedroom barn conversion for sale in Church Lane, East Winch, King's Lynn, PE32 — £550,000 • 4 bed • 3 bath
4 bedroom barn conversion for sale in Ivy Todd, PE37 — £750,000 • 4 bed • 3 bath • 2819 ft²






































































