Huge private garden with garage, carport and far-reaching field views.
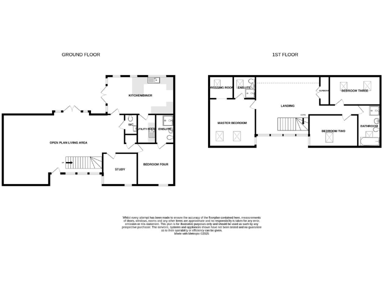
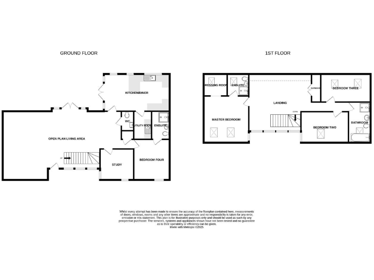
Four double bedrooms; two en-suites and family bathroom
Set in a secluded hamlet location, this four-bedroom barn offers generous open-plan living with strong countryside outlooks. The ground floor benefits from underfloor heating, a bedroom with en-suite and large glazed doors that frame the field views. Upstairs, the master bedroom has an en-suite and there are two further bedrooms plus a family bathroom and wide landing — well suited to family life or entertaining.
The plot is a standout feature: a very large private lawn enclosed by timber fencing, plus a garage and carport for secure parking. Constructed as a conversion between 2007–2011, the property combines rustic exposed brick and roof windows with contemporary elements such as double glazing and a modern oil-fired boiler system. EPC is rated C and the home is freehold.
Buyers should note practical limitations of the location. The property sits in a remote rural community with very slow broadband and only average mobile signal, which will affect home-working and streaming. The nearby primary schools are mixed in Ofsted outcomes; one local school is rated Inadequate, while others are Good. Internally there are small maintenance items visible — some dated carpets and missing light fittings — which would benefit from updating.
Overall this is a spacious, characterful countryside home on a substantial plot, offering privacy and flexible family accommodation. It will particularly suit buyers wanting rural space and scenic views and who can accept limited digital connectivity and occasional cosmetic updating.
4 bedroom barn conversion for sale in Church Lane, East Winch, King's Lynn, PE32 — £425,000 • 4 bed • 2 bath • 1766 ft²
5 bedroom barn conversion for sale in Bunkers Hill, Wisbech St. Mary, PE13 — £650,000 • 5 bed • 2 bath • 1718 ft²
3 bedroom detached bungalow for sale in Tumbleyhill Road, West Acre, PE32 — £495,000 • 3 bed • 2 bath • 1701 ft²
4 bedroom barn conversion for sale in Chain Free in Middleton, PE32 — £775,000 • 4 bed • 4 bath • 3148 ft²
6 bedroom barn conversion for sale in Walpole Cross Keys, PE34 — £675,000 • 6 bed • 3 bath • 3037 ft²
4 bedroom barn conversion for sale in The Street, Syderstone, King's Lynn, PE31 — £375,000 • 4 bed • 2 bath • 1314 ft²






















































































































































































































