Contemporary move-in ready home with parking and private garden.
Three bedrooms with master en suite
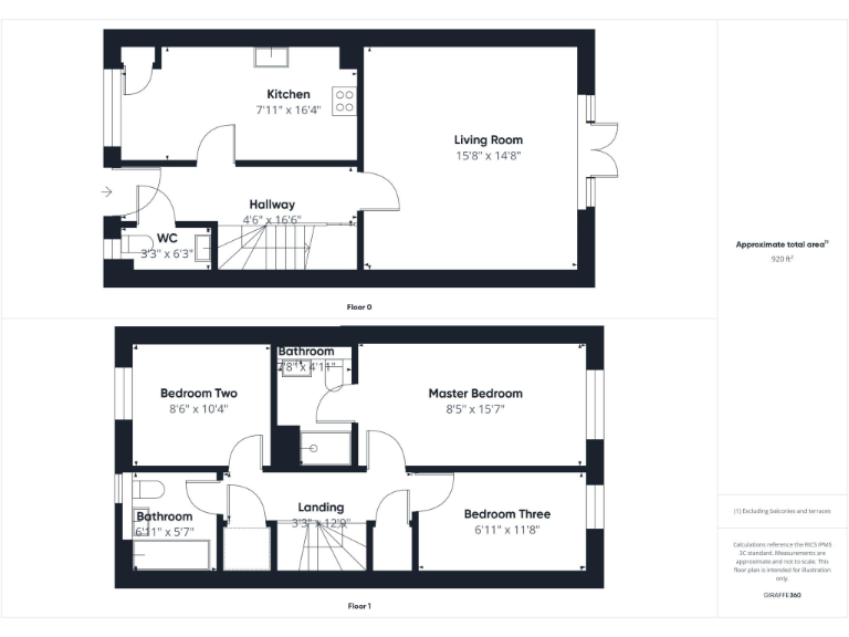
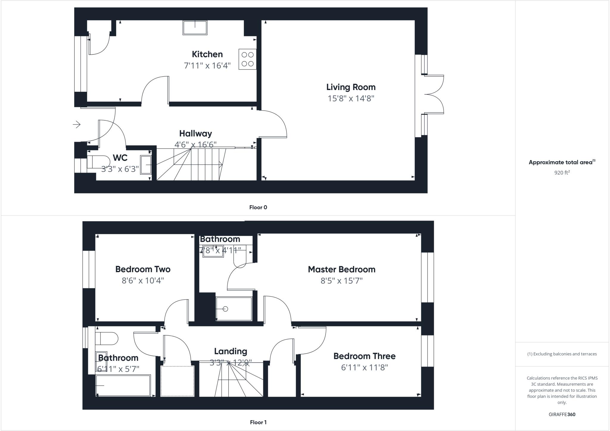
A smart, recently built three-bedroom end-of-terrace finished in 2021, this home suits first-time buyers or small families seeking low-maintenance modern living. The ground floor has an open-plan living/dining room that opens onto a private rear garden, while the separate kitchen comes with integrated appliances and contemporary finishes.
Upstairs the master bedroom includes an en suite shower room, with two further bedrooms and a family bathroom completing the layout. The property totals about 920 sq ft, is freehold and benefits from two allocated off-street parking spaces to the rear and mains gas central heating.
Practical strengths include fast broadband, excellent mobile signal and seven years remaining on the NHBC warranty. Note the internal living space is modest for a family home and gardens/hedging require some tidy-up. Council tax is moderate. Overall this is a modern, well-presented home offering straightforward move-in condition and sensible running costs for a first purchase.
2 bedroom end of terrace house for sale in Hinman Copse, Binfield, Bracknell, RG42 — £525,000 • 2 bed • 2 bath • 826 ft²
2 bedroom end of terrace house for sale in Morshead Drive, Binfield, Bracknell, Berkshire, RG42 — £425,000 • 2 bed • 2 bath • 694 ft²
3 bedroom detached house for sale in Porthcawl Drive, Binfield, Bracknell, Berkshire, RG42 — £500,000 • 3 bed • 2 bath • 844 ft²
4 bedroom semi-detached house for sale in Morshead Drive, Binfield, Bracknell, Berkshire, RG42 — £550,000 • 4 bed • 2 bath • 1275 ft²
3 bedroom end of terrace house for sale in Woodroffe Close, Ash, Surrey, GU12 — £550,000 • 3 bed • 4 bath • 1252 ft²
3 bedroom detached house for sale in Sonning Place, Binfield, Bracknell, Berkshire, RG42 — £550,000 • 3 bed • 2 bath • 1036 ft²






















































