**Standout Features:**
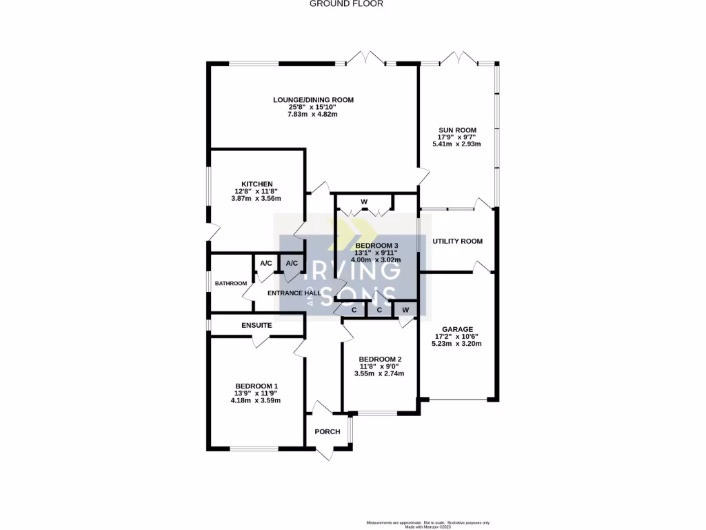
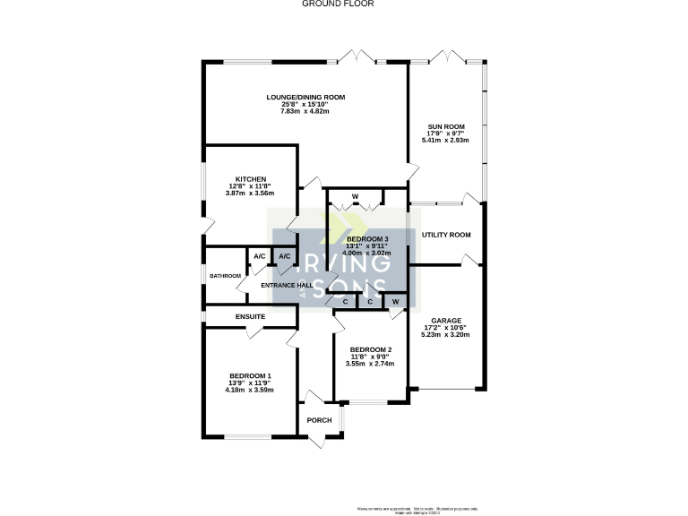
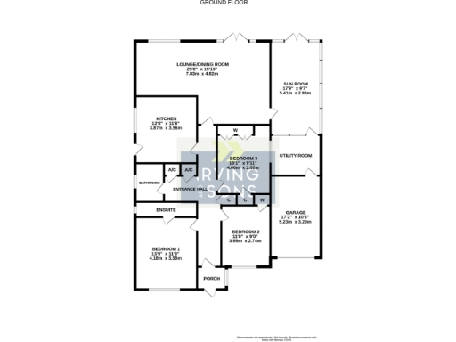
- Spacious detached bungalow with three double bedrooms and an en-suite shower room
- Generous lounge/dining area with sunlit sun room overlooking the rear garden
- Integral garage and utility room offering ample storage
- Gated off-street parking for multiple vehicles
- Located in a peaceful cul-de-sac with access to Potterne Park & Moors Valley Country Park
- Potential for modernisation and remodelling, allowing you to design your dream home
**Concise Summary:**
This spacious three-bedroom detached bungalow offers comfortable living in a quiet cul-de-sac, perfect for families or investors looking for potential. Enjoy a generous lounge/dining area that flows into a light-filled sun room, ideal for relaxation and entertaining. The property features a well-equipped kitchen, an en-suite master bedroom, and a good-sized rear garden with a patio area and pergola—perfect for outdoor gatherings.
Built in the late 1970s, the bungalow requires some renovation but presents incredible opportunities to update and personalize according to your preferences, with the potential to extend or modernize, pending planning permission. Parking is a breeze with a gated driveway and attached garage.
With excellent local amenities and good schools nearby, this property is nestled in the affluent suburb of BH31 6DG, promising a secure and comfortable lifestyle. Don’t miss your chance to make this charming bungalow your own; properties like this don’t stay on the market for long!
3 bedroom bungalow for sale in Whitebeam Way, Verwood, Dorset, BH31 — £465,000 • 3 bed • 1 bath • 874 ft²
3 bedroom bungalow for sale in Lake Road, Verwood, Dorset, BH31 — £625,000 • 3 bed • 2 bath • 897 ft²
3 bedroom detached bungalow for sale in Verwood, BH31 — £375,000 • 3 bed • 1 bath • 848 ft²
3 bedroom bungalow for sale in St. Michaels Close, Verwood, Dorset, BH31 — £475,000 • 3 bed • 3 bath • 1117 ft²
3 bedroom bungalow for sale in Fairwood Road, Verwood, Dorset, BH31 — £485,000 • 3 bed • 2 bath • 1186 ft²
3 bedroom detached bungalow for sale in Verwood, BH31 — £425,000 • 3 bed • 2 bath • 979 ft²










































































