Single-floor living with a large south garden near parks and local schools.
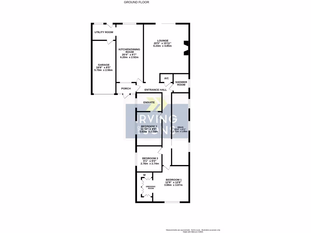
Extended single-storey layout with open-plan kitchen/breakfast/dining room
This extended, single-storey home offers comfortable, adaptable living on a generous plot in a quiet cul-de-sac. The open-plan kitchen/breakfast/dining area, separate lounge with wood-burning stove and a cosy snug create easy, modern living suited to downsizers or anyone wanting one-floor convenience. Sliding doors open to a large south-facing garden and deck — ideal for afternoon sun and outdoor entertaining.
The principal bedroom includes a fitted dressing area and en-suite; two further bedrooms provide guest, hobby or home-office space. Practical features include an integral garage with loft access and utilities, a sizeable driveway, Karndean-style flooring throughout and modern UPVC windows and fascias. The property sits close to Potterne Park and Moors Valley Country Park, with good local schools and low-crime, affluent surroundings.
Buyers should note the house dates from the late 1960s/early 1970s and has cavity walls with no known added insulation; this may present energy-efficiency upgrade opportunities. Double glazing installation date is not specified. Heating is by mains-gas boiler and radiators; the garage houses the boiler and offers internal access. Council tax is moderate.
Overall, this bungalow suits buyers seeking single-level living in a peaceful, well-connected neighbourhood with ready-to-enjoy presentation and clear potential for energy improvements or further modernisation if desired.
3 bedroom bungalow for sale in Rowan Drive, Verwood, Dorset, BH31 — £535,000 • 3 bed • 2 bath • 1305 ft²
3 bedroom bungalow for sale in Woodlinken Close, Verwood, Dorset, BH31 — £380,000 • 3 bed • 1 bath • 671 ft²
3 bedroom bungalow for sale in Fairwood Road, Verwood, Dorset, BH31 — £460,000 • 3 bed • 2 bath • 1139 ft²
3 bedroom bungalow for sale in Hillside Road, Verwood, Dorset, BH31 — £525,000 • 3 bed • 2 bath • 1043 ft²
3 bedroom detached bungalow for sale in Ringwood Road, Verwood, BH31 — £599,999 • 3 bed • 2 bath • 1624 ft²
3 bedroom bungalow for sale in Woolsbridge Road | St Leonards | Ringwood | BH24 — £500,000 • 3 bed • 2 bath • 1163 ft²














































































