Rare hamlet plot with planning consent for a family home.
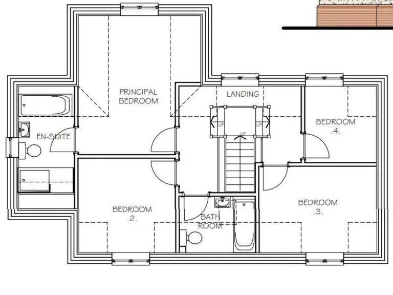
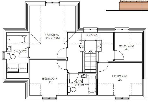
Reserved Matters consent for 4-bedroom detached dwelling (Dec 2023)
A rare build plot in the hamlet of Gainsford End with Reserved Matters consent for a detached four-bedroom dwelling. The site extends to approximately 0.1 acres (STLS) and sits adjacent to open fields, offering a peaceful, rural setting while remaining within easy reach of nearby villages and local schools.
The plot currently contains the former mission hall and small outside space; purchasers can develop to the approved plans or adapt the existing footprint subject to implementing the consent. The site benefits from mains water and electric, gated access from the highway, fast broadband and a low flood risk—practical basics already in place for a new home.
Buyers should note the plot is modest in immediate curtilage with sewage handled by a septic tank, and some clearance or renovation of the existing structure will be necessary. Reserved Matters planning consent was granted in December 2023 (ref: 23/01053/REM) following outline consent in 2022 (ref: 21/00574/OUT). Freehold, guide price £245,000.
Land for sale in Pretoria Road, Halstead, CO9 — £250,000 • 1 bed • 1 bath
Land for sale in Site Adjacent To Waterhouse, Hedingham Road, CO9 — £250,000 • 1 bed • 1 bath
Plot for sale in Eggshell Lane, Cornish Hall End, CM7 — £750,000 • 1 bed • 1 bath • 6750 ft²
Industrial development for sale in Site Adjacent to Waterhouse, Hedingham Road, Great Yeldham , CO9 — £250,000 • 1 bed • 1 bath
Land for sale in Pretoria Road, Halstead, CO9 — £650,000 • 1 bed • 1 bath
Land for sale in Land Adjacent To Gu Brath, Coggeshall Road, Earls Colne, Colchester, Essex, CO6 — £250,000 • 1 bed • 1 bath • 7841 ft²










































