**Standout Features:**
- **Imposing Georgian-style mansion** with unique octagonal extension and glass domed roof
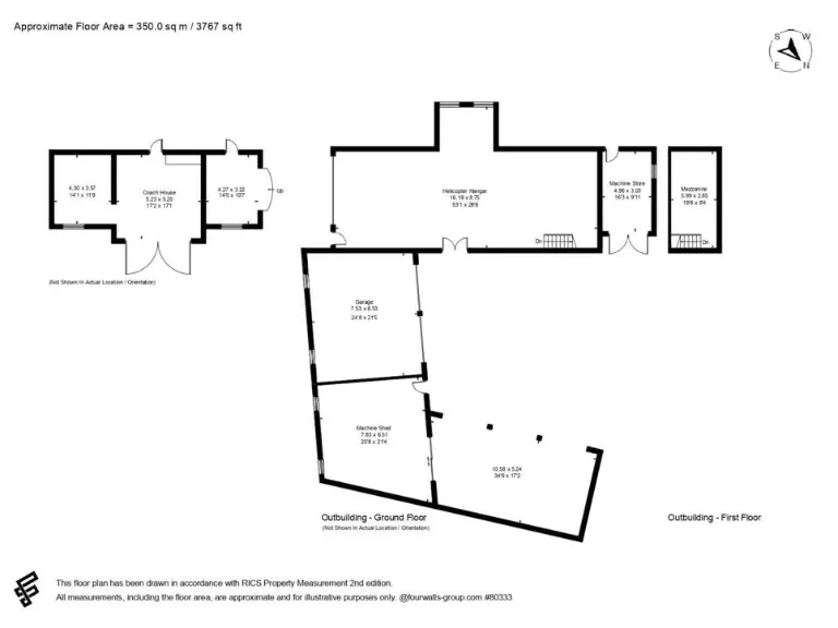
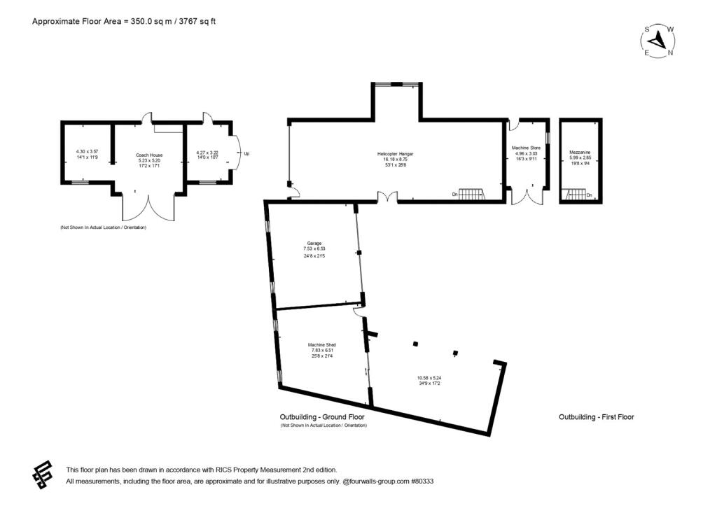
- **Expansive 50.4-acre estate** featuring meticulously landscaped gardens and agricultural outbuildings
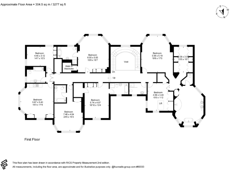
- **Seven spacious bedrooms** (three en suite) and six bathrooms, ideal for large families or entertaining
- **Luxury amenities** including an indoor swimming pool, sauna, and office space
- **Brookfield Cottage** for guest accommodation, with additional outbuildings, workshops, and storage spaces
- **Environmental features** such as photo-voltaic panels generating free electricity and an automatic irrigation system
- **Gated driveway** providing privacy and seclusion within beautiful surroundings
- **Requires renovation**, presenting an opportunity to customize and enhance the property
**Summary:**
Nestled within a sweeping, serene landscape of over 50 acres, this distinguished Georgian-style estate offers a unique blend of historical elegance and modern potential. The expansive mansion features seven large bedrooms and six bathrooms, abundant natural light, and luxurious living spaces throughout.
Beyond the main house, enjoy additional accommodations with Brookfield Cottage and various outbuildings, including a helicopter hangar and stables, perfect for those invested in rural life or looking for unique investment opportunities. The property retains traditional charm while also requiring some renovation, allowing new owners the chance to tailor their dream residence. Surrounded by lush gardens and enchanting countryside views, this estate invites buyers seeking a tranquil escape that doesn't compromise on space or luxury.
With its exceptional grounds, direct access to nature, and proximity to local amenities, this estate is a rare find—ideal for discerning families, retirees, or investors alike. Don’t miss out on the opportunity to make this impressive refuge your own!
9 bedroom detached house for sale in Lyminster Road, Lyminster, Arundel, West Sussex, BN17 — £3,950,000 • 9 bed • 8 bath • 10121 ft²
6 bedroom detached house for sale in Saucelands Lane, Shipley, Horsham, West Sussex, RH13 — £3,500,000 • 6 bed • 1 bath • 6040 ft²
6 bedroom farm house for sale in Dagbrook Lane, Henfield, BN5 — £1,650,000 • 6 bed • 4 bath • 2961 ft²
11 bedroom farm house for sale in Colwood Lane, Bolney, Haywards Heath, West Sussex, RH17 — £7,350,000 • 11 bed • 11 bath • 14205 ft²
5 bedroom detached house for sale in The Street, Slinfold, Horsham, West Sussex, RH13 — £2,500,000 • 5 bed • 5 bath • 4433 ft²
7 bedroom detached house for sale in Guildford Road, Broadbridge Heath, Horsham, West Sussex, RH12 — £3,500,000 • 7 bed • 4 bath • 8012 ft²










































































































































































































































