Renovated village home with studio, ideal for family life.
Grade II listed cottage — listed status will limit alterations
Newly renovated throughout with quality fittings and double glazing
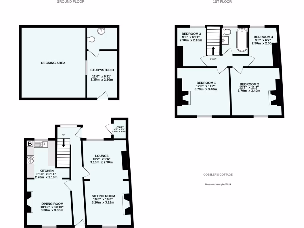
Four bedrooms in a compact layout — approx 980 sq ft total
Single first-floor bathroom for four bedrooms
Small courtyard garden plus separate garden studio at rear
Original granite walls assumed uninsulated — potential insulation work
Central village location near schools, bus route and amenities
Freehold; mains gas heating and very low local crime
Set on Fore Street in the heart of Sidbury, this Grade II listed terraced cottage combines period character with recent, high-quality renovation. The four bedrooms and generous sitting room retain original charm while modern fixtures, a fitted kitchen/dining space and new double glazing offer contemporary comfort. A small courtyard garden and separate garden studio provide outdoor space and flexible use for hobbies or home working.
The house is newly renovated and ready to move into, with mains gas central heating, a modern bathroom and quality finishes throughout. At about 980 sq ft, the layout suits a family wanting village life close to local schools, amenities and the main bus route, with very low local crime and a very affluent neighbourhood.
Buyers should note its listed status: any structural changes or external alterations will require listed-building consent and may limit some upgrades. The building’s original granite walls are assumed to have no insulation, which could affect thermal performance and future improvement options. There is only one bathroom for four bedrooms and the plot is small, so outdoor space is limited compared with larger family homes.
Overall this property will appeal to a family seeking a character cottage that’s been sensitively renovated and is largely move-in ready, but who are comfortable with listed-building constraints and a compact garden. Its central village position and flexible garden studio are practical extras for day-to-day family life or part-time home working.
4 bedroom terraced house for sale in Cotford Road, Sidbury, EX10 — £395,000 • 4 bed • 1 bath • 695 ft²
3 bedroom terraced house for sale in Bridge Street, Sidbury, Sidmouth, Devon, EX10 — £400,000 • 3 bed • 2 bath • 1159 ft²
2 bedroom terraced house for sale in Church Street, Sidbury, Sidmouth, EX10 — £425,000 • 2 bed • 1 bath • 1250 ft²
3 bedroom end of terrace house for sale in Deepway, Sidbury, EX10 — £350,000 • 3 bed • 2 bath • 840 ft²
3 bedroom terraced house for sale in Fore Street, Sidbury, Sidmouth, EX10 — £400,000 • 3 bed • 2 bath • 1050 ft²
2 bedroom end of terrace house for sale in Church Street, Sidford, Sidmouth, Devon, EX10 — £220,000 • 2 bed • 1 bath • 713 ft²


















































































































































