Charming village location close to shops, schools and community amenities.
Grade II listed thatched cottage with strong period character
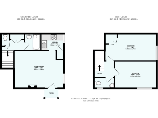
This Grade II listed thatched cottage sits on Church Street in Sidford, offering authentic period character and a compact, practical layout. The property is freehold and arranged over two storeys with two double bedrooms, a generously proportioned living room and a small patio garden — ideal for buyers seeking a traditional village home close to amenities.
The cottage faces directly onto the street in a very low-crime, affluent area with excellent mobile signal and fast broadband. Local schools are good, and everyday conveniences including shops, pubs and community facilities are within easy walking distance. Heating is via a mains-gas boiler and radiators, and the home’s modest footprint (around 713 sq ft) suits first-time buyers or investors targeting rental demand in Sidmouth.
Important practical points: the Grade II listing will restrict alterations and may complicate renovation or extension work. The thatched roof and uninsulated granite walls are likely to need sympathetic maintenance and may carry higher upkeep costs. On-site parking is limited and rear/side access is constrained.
Overall this is a quintessential Sidmouth-area cottage for someone who values period charm and village living and is prepared for ongoing conservation-sensitive maintenance. It offers clear potential as a cosy primary home or a rental/holiday-let with appropriate consent for any works.
2 bedroom end of terrace house for sale in School Street, Sidford, Sidmouth, EX10 — £195,000 • 2 bed • 1 bath • 577 ft²
4 bedroom terraced house for sale in Cotford Road, Sidbury, EX10 — £395,000 • 4 bed • 1 bath • 695 ft²
3 bedroom semi-detached house for sale in School Street, Sidford, Sidmouth, Devon, EX10 — £285,000 • 3 bed • 1 bath • 1060 ft²
3 bedroom semi-detached house for sale in Greenhead, Sidbury, Sidmouth, Devon, EX10 — £575,000 • 3 bed • 2 bath • 1510 ft²
3 bedroom end of terrace house for sale in Deepway, Sidbury, EX10 — £350,000 • 3 bed • 2 bath • 840 ft²
2 bedroom cottage for sale in High Street, Newton Poppleford, EX10 — £285,000 • 2 bed • 1 bath • 614 ft²






































































