Single-level living with large garden and workshop, ideal for relaxed downsizers.
End-of-cul-de-sac location offering extra privacy
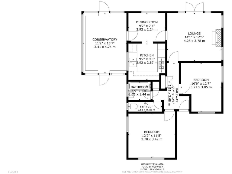
Set at the quiet end of a cul-de-sac, this detached two-bedroom bungalow offers single-storey living with a sunny, mature garden and generous conservatory. The layout suits downsizers seeking easy circulation: double-aspect lounge, separate dining room, a tastefully fitted kitchen and two bedrooms with fitted wardrobes. A recently installed Worcester boiler and gas central heating provide reliable warmth.
Outside, the southerly rear garden is a standout — mainly lawn with mature trees, a pergola, rose arbour and a separate summerhouse. Practical outbuildings include a garage with power and light plus a useful 14' x 8' workshop, ideal for hobbies or storage. Off-road parking is available to the front.
The location is convenient for everyday needs: a short walk to Polegate high street shops, local buses and the mainline station. Access to the A27/A22 makes Eastbourne and Brighton reachable for day trips. Council Tax band is D.
Notes and considerations: the property dates from the late 1960s/early 1970s and has double glazing installed before 2002, so some windows and finishes may be older. Flood risk for the area is marked as medium — prospective buyers should check current flood reports and insurance implications.
2 bedroom semi-detached bungalow for sale in Grosvenor Close, Polegate, BN26 — £315,000 • 2 bed • 1 bath • 637 ft²
2 bedroom detached bungalow for sale in Aberdale Road, Polegate, BN26 — £325,000 • 2 bed • 1 bath • 868 ft²
3 bedroom detached bungalow for sale in Courtland Road, Polegate, BN26 — £489,950 • 3 bed • 2 bath • 1177 ft²
2 bedroom detached bungalow for sale in Brookside Avenue, Polegate, BN26 — £450,000 • 2 bed • 1 bath • 1122 ft²
2 bedroom detached house for sale in Spurway Park, Polegate, BN26 — £365,000 • 2 bed • 1 bath • 758 ft²
2 bedroom detached bungalow for sale in St. Johns Road, Polegate, BN26 — £375,000 • 2 bed • 1 bath • 690 ft²






























































































