Low-price buy-to-let with immediate income and refurbishment upside.
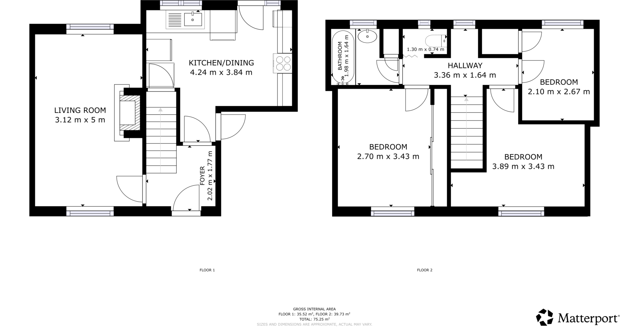
Freehold three-bedroom mid-terrace, approx. 915 sq ft
A mid-20th-century three-bedroom terraced house on Grange Estate, offered freehold with a tenant in situ. The property is compact (approx. 915 sq ft) with private front and rear gardens and on-street parking. Externally it presents as a typical post‑war terrace with roughcast render and modest curb appeal.
Currently producing a gross income of £5,280 per year, this house suits buy-to-let investors or developers seeking a value purchase in a deprived but established urban pocket. The sitting tenancy has been in place a year with reliable payments and the tenants wish to remain, so immediate rental income is retained on completion.
Internally the layout is traditional: lounge, kitchen/diner, separate bathroom and WC, and three small-to-medium bedrooms. The property appears to need some updating and offers clear refurbishment potential to improve rental value or resale. Note the area scores above-average crime and higher deprivation, which will affect lettability and local capital growth assumptions.
Serious investors should review the Let Property Pack for full tenancy and income details and allow for refurbishment costs and management planning. This is a straightforward, low-entry-price investment with hands-on upside through improvement or inclusion into a larger local portfolio.
2 bedroom terraced house for sale in St. Barnabas Road, Middlesbrough, North Yorkshire, TS5 — £114,000 • 2 bed • 1 bath • 1023 ft²
3 bedroom semi-detached house for sale in Langridge Crescent, Middlesbrough, TS3 — £110,000 • 3 bed • 1 bath • 936 ft²
3 bedroom detached house for sale in St. Anthonys Road, Middlesbrough,TS3 — £135,000 • 3 bed • 2 bath • 807 ft²
2 bedroom semi-detached house for sale in Bruntons Manor Court, Middlesbrough, North Yorkshire, TS3 — £83,000 • 2 bed • 1 bath • 775 ft²
2 bedroom terraced house for sale in Beaumont Road, Middlesbrough, TS3 — £68,000 • 2 bed • 1 bath • 763 ft²
3 bedroom terraced house for sale in South Terrace, South Bank, Middlesbrough, TS6 — £54,950 • 3 bed • 1 bath • 700 ft²






























































