**Standout Features:**
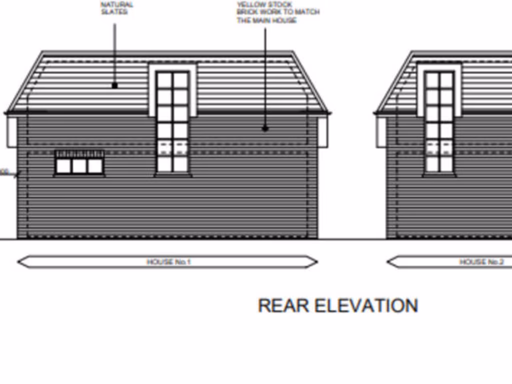
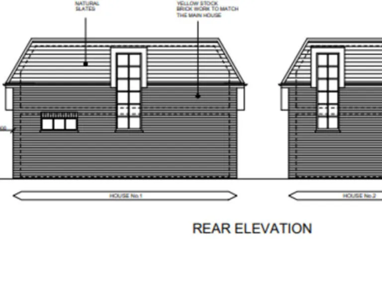
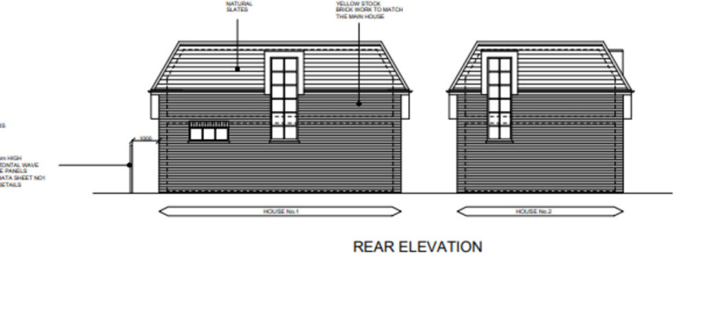
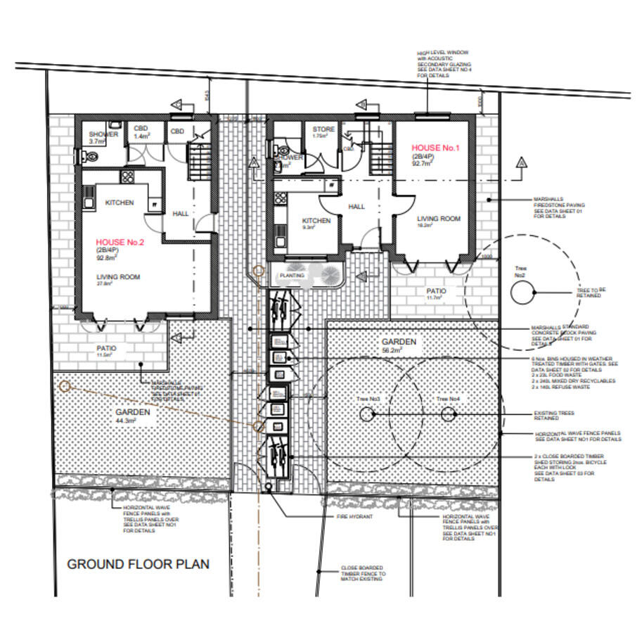
- **Planning Permission Approved:** For two detached residential units.
- **Sizeable Land:** Large plot measuring 21m wide by 18m deep, totaling 4,069 sq ft.
- **Location:** Situated in bustling inner-city SW16, an area popular with new EU tech workers.
- **FREEHOLD Tenure:** Offers less long-term concern and enhanced control over property.
- **Good Accessibility:** Excellent mobile signal and fast broadband.
**Potential Concerns:**
- **Crime Rate:** Above average in the area.
- **Area Deprivation:** Classified as deprived, which may affect living conditions.
Discover an exceptional land investment opportunity in the vibrant SW16 area, where planning permission has already been approved for two detached units. This rare plot offers ample space, measuring a generous 4,069 sq ft, perfect for future development. Ideal for investors or first-time buyers looking to build and maximize returns or create their dream homes. The shared access to this rear plot ensures peace, while the flourishing neighborhood delivers fast broadband and excellent mobile signals.
Families will appreciate the proximity to outstanding schools, notably Graveney School and St Leonard's Church of England Primary, ensuring quality education within walking distance. With everything from public transport links to community amenities close by, this is a prime location that balances urban convenience with potential for future value growth. However, prospective buyers should be aware of the above-average crime levels and area deprivation, which require careful consideration. Don’t miss out on this rare chance to secure a plot with development potential—site viewings are available now!
Land for sale in Moyser Road, London, SW16 — £300,000 • 2 bed • 3 bath
Plot for sale in Half Moon Lane, North Dulwich, SE24 — £1,500,000 • 4 bed • 1 bath • 3000 ft²
Plot for sale in 73-79 Knollys Road, SW16 — £475,000 • 1 bed • 1 bath • 1707 ft²
Land for sale in Hillside Road, Streatham, London, SW2 — £250,000 • 1 bed • 1 bath • 1259 ft²
Land for sale in 94 A & B Larkhall Lane, Clapham, London, SW4 — £900,000 • 1 bed • 1 bath • 1307 ft²
Plot for sale in R/O 916 Garratt Lane, Tooting, London SW17 — £235,000 • 1 bed • 1 bath • 968 ft²














