**Standout Features:**
- **Development Opportunity:** Cleared site on Larkhall Lane extending to approximately 0.03 acres.
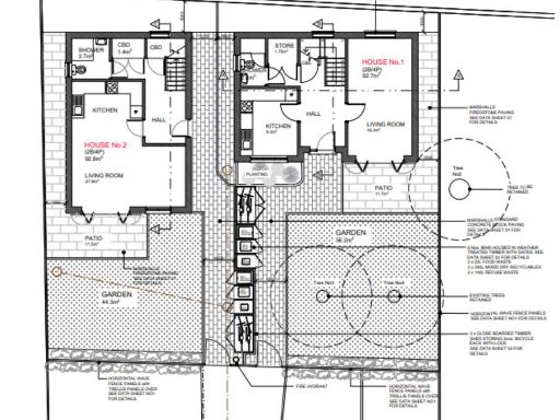
- **Planning Permission:** Approved plans for a 3-storey building with a basement, allowing for 5 residential apartments (358 sqm / 3,853 sqft NIA).
- **Prime Location:** Close to Stockwell Underground Station (0.4 miles) and surrounded by a vibrant urban community in Clapham.
- **Vacant Possession:** Ideal for immediate development with no existing occupants.
- **Accessibility:** Excellent mobile signal and fast broadband speeds available.
**Potential Concerns:**
- **Vacancy History:** Site has been vacant for nearly 20 years, requiring an assessment of any overgrowth or maintenance needs.
- **Plot Size:** Small plot size may limit the scope of development or outdoor space.
This unique residential development site presents an exceptional opportunity in Clapham, perfect for investors looking to capitalize on the area's growth potential. With planning permission already in place for a modern 3-storey building featuring five apartments, the groundwork for successful urban living is set. The location combines convenience with community, lying within easy reach of transport links and local amenities.
Envision transforming this vacant parcel into vibrant living spaces that reflect contemporary urban living while attracting potential renters eager for modern comfort. The growing demand for housing in this inner-city neighborhood makes this opportunity both timely and lucrative. Don’t miss the chance to shape the future of this appealing site—secure your investment today!
Land for sale in Land at Mayfield Close and to the rear of 83-87 Park Hill, Clapham, London, SW4 9NX, SW4 — £315,000 • 1 bed • 1 bath • 6996 ft²
Land for sale in 1 Brooks Court, Nine Elms, South West London Development Opportunity., SW11 — £800,000 • 1 bed • 1 bath
Land for sale in Conyers Road, London, SW16 — £425,000 • 1 bed • 1 bath • 4069 ft²
Commercial development for sale in Albany House, Portslade Road, Lambeth, London, SW8 — £700,000 • 1 bed • 1 bath • 1132 ft²
Residential development for sale in 140a Acre Lane, London, SW2 — £480,000 • 1 bed • 1 bath • 1280 ft²
Land for sale in 17a Netherwood Road, London, W14 — £3,500,000 • 1 bed • 1 bath • 6700 ft²










