Compact, well-presented three-bedroom with private garden and fast broadband.
Newly renovated throughout to a high standard
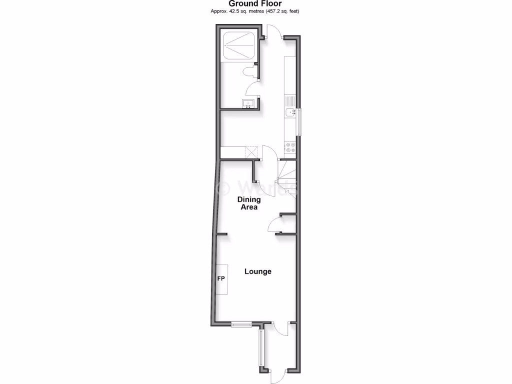
Recently renovated throughout to a high standard, this three-bedroom end-of-terrace offers bright open-plan living ideal for family life and entertaining. The ground floor lounge-diner flows into a fitted kitchen, while tasteful bedrooms upstairs provide calm sleeping space. The secluded landscaped rear garden with a large shed creates a private outdoor retreat.
The house sits in the popular village of East Peckham, close to shops, bus routes and countryside walks, with London train links a short distance away. Fast broadband and mains gas heating make it practical for modern family routines.
Buyers should note the property is compact at around 625 sq ft with a single shower room serving three bedrooms. The house was constructed early 20th century from solid brick and the glazing was installed before 2002; some insulation and window upgrades may be required. There are image-noted signs of potential damp on the front elevation, which should be inspected.
This freehold home offers an affordable council tax band and a well-presented finish ready to move into, while also giving scope for modest improvement works to boost comfort and long-term value. Local schools are mixed in Ofsted ratings, so families may wish to check individual catchments.
3 bedroom end of terrace house for sale in The Freehold, East Peckham, Tonbridge, Kent, TN12 — £215,000 • 3 bed • 1 bath • 625 ft²
3 bedroom terraced house for sale in Branbridges Road, East Peckham, TN12 — £325,000 • 3 bed • 1 bath • 685 ft²
3 bedroom semi-detached house for sale in Fellmead, East Peckham, Tonbridge, Kent, TN12 — £400,000 • 3 bed • 1 bath • 840 ft²
3 bedroom semi-detached house for sale in Fellmead, East Peckham, TN12 5EQ, TN12 — £475,000 • 3 bed • 2 bath • 971 ft²
3 bedroom semi-detached house for sale in Old Road, East Peckham, TN12 — £400,000 • 3 bed • 3 bath • 1082 ft²
2 bedroom end of terrace house for sale in Orchard Road, East Peckham, Tonbridge, Kent, TN12 — £250,000 • 2 bed • 1 bath • 539 ft²






















































































