**Standout Features:**
- Land adjacent to The Hydneye, Eastbourne
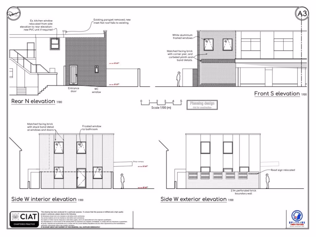
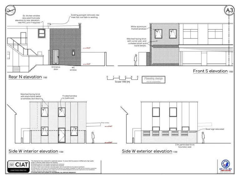
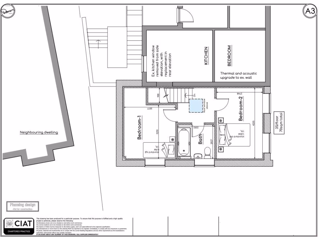
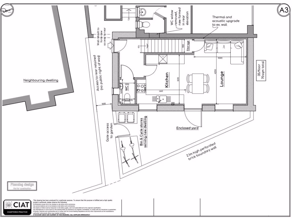
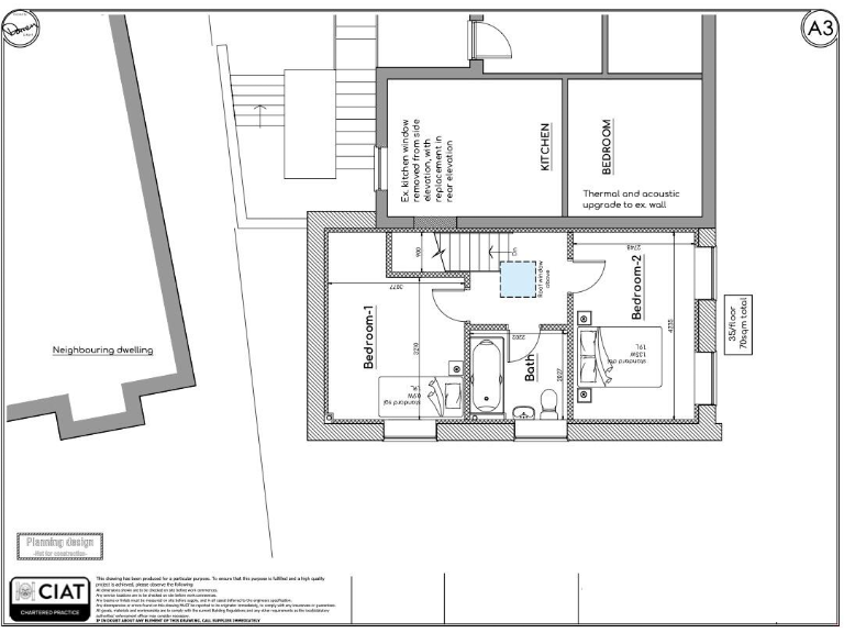
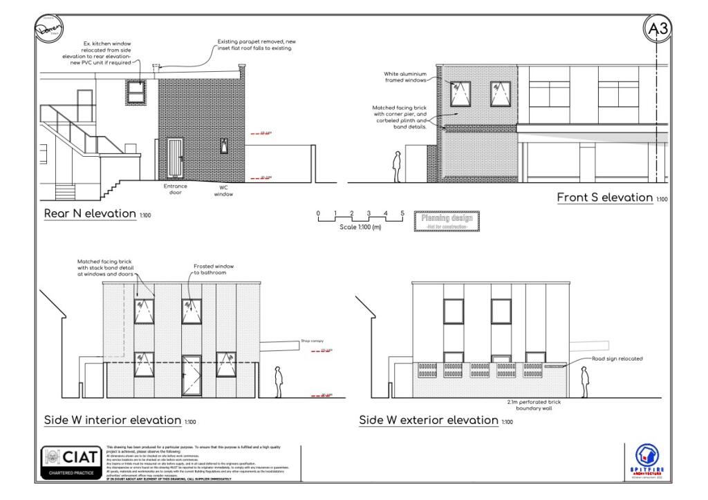
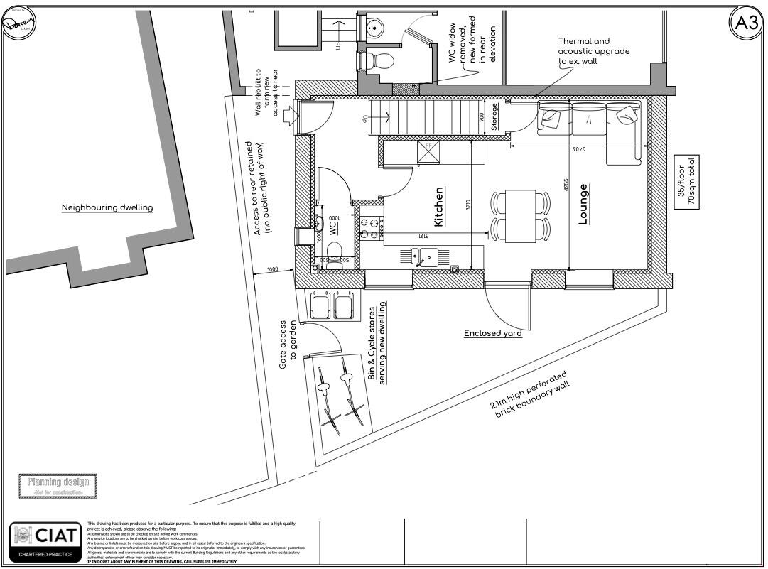
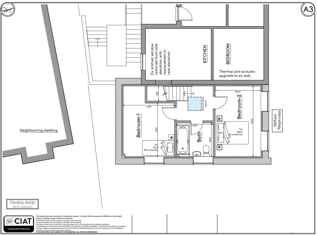
- Planning permission for a two-bedroom dwelling (approx. 85m²)
- Gross Development Value (GDV): £265,000
- Community Infrastructure Levy (CIL): £4,500
- Freehold property being sold via online auction
**Summary:**
Discover a prime investment opportunity with this generous land parcel located adjacent to The Hydneye in Eastbourne. With full planning permission secured for a contemporary two-bedroom dwelling, this site offers plenty of potential for both developers and investors alike. Estimated to hold a Gross Development Value of £265,000, this is an exceptional chance to capitalize on the growing demand for residential properties in the area.
While the setting offers a bustling residential vibe, it's important to note that neighboring properties are closely clustered, which may limit garden space and offers subdued views. The site is close to local amenities, including schools, shops, and leisure facilities, ensuring convenience for future occupants. Remember, this land is available via online auction, welcoming both mortgage and cash buyers, and detailed bidding instructions can be found on the Milestone Group website. Don't miss this rare chance to secure a potentially lucrative development plot—act now before it’s gone!
Land for sale in Land at Langney Rise, Eastbourne, East Sussex, BN23 7NL, BN23 — £8,000 • 1 bed • 1 bath • 2066 ft²
Land for sale in Tideswell Rd, Eastbourne, BN21 — £350,000 • 6 bed • 6 bath • 495 ft²
Land for sale in Land North Of Dittons Road, Stone Cross, Pevensey, East Sussex, BN24 5NU, BN24 — £1,000 • 1 bed • 1 bath
Land for sale in Winchelsea Road, Eastbourne, BN22 — £820,000 • 9 bed • 9 bath • 10656 ft²
Land for sale in Land at Langney Rise, Eastbourne, East Sussex, BN23 7NL, BN23 — £9,000 • 1 bed • 1 bath • 2066 ft²
Property for sale in Land on the South Side of Marine Terrace Pevensey Bay BN24 6EQ, BN24 — £125,000 • 1 bed • 1 bath • 572 ft²


















