Chain-free ground-floor flat minutes from the Central Line and local shops.
Chain-free one-bedroom ground-floor apartment
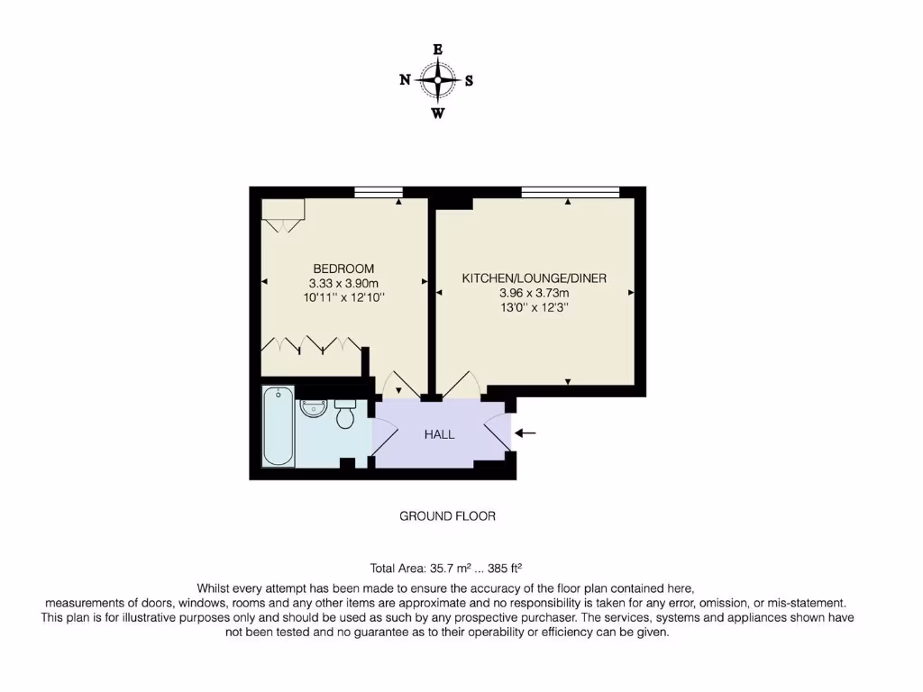
A bright, contemporary ground-floor apartment in a 2021 development, offered chain free with a very long lease and low running costs. The open-plan kitchen/living area has integrated appliances, engineered wood flooring and a large Crittall-style window that floods the space with light. Practical built-in storage in the double bedroom and a modern bathroom complete a compact, move-in-ready home for a commuter or first-time buyer.
The flat sits 0.4 miles from the Central Line, making daily travel into central London straightforward. Communal parking and a secure video-entry system add convenience and peace of mind. Service charges are below average at £900 per year, and the lease extends well beyond 990 years, reducing long-term ownership uncertainty.
Points to consider: the apartment is small at around 385 sq ft, so it suits a single occupant or couple rather than a family. As a ground-floor home, privacy and external views are more limited than an upper-floor flat. There is no dedicated private outdoor space mentioned, so outdoor access relies on nearby parks and communal areas.
Overall, this is a low-maintenance, modern starter home or buy-to-let opportunity in a well-connected, affluent area with good local shops, schools and access to green space.
1 bedroom apartment for sale in Maybank Road, South Woodford, E18 — £280,000 • 1 bed • 1 bath • 355 ft²
1 bedroom flat for sale in Chigwell Road, South Woodford, E18 — £225,000 • 1 bed • 2 bath • 517 ft²
1 bedroom flat for sale in Maybank Road, South Woodford, E18 — £315,000 • 1 bed • 1 bath • 484 ft²
1 bedroom flat for sale in High Road, London, E18 — £275,000 • 1 bed • 1 bath • 388 ft²
1 bedroom apartment for sale in Maybank Road, South Woodford, London, E18 — £300,000 • 1 bed • 1 bath • 477 ft²
2 bedroom apartment for sale in Gordon Road, South Woodford, E18 — £280,000 • 2 bed • 1 bath • 537 ft²














































