Move-in ready home with sunny garden and two parking spaces.
- Brand-new, fully upgraded three-bedroom semi-detached house
- Open-plan kitchen/living with French doors to south-facing garden
- Two bathrooms including upstairs four-piece suite
- Two dedicated off-street parking spaces allocated to the property
- Integrated appliances and upgraded LVT flooring throughout
- EPC B (83) and 10-year Advantage guarantee included
- Solid brick walls noted (assumed no added insulation) — may need upgrading
- Village location with limited amenities but good nearby towns access
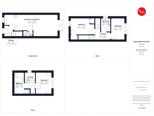
A bright, fully upgraded three-bedroom semi sits on a small exclusive development in North Frodingham. Finished to a high specification, the house offers modern open-plan living, two bathrooms, integrated appliances and two dedicated parking spaces — ready for immediate occupation and covered by a 10-year guarantee.
The accommodation is practical for growing families or first-time buyers wanting low-mess move-in readiness: ground-floor living with French doors to a south-facing garden, two double bedrooms and a family bathroom on the first floor, and a third double bedroom with an additional bathroom on the top floor. The property benefits from gas central heating, double glazing and an excellent EPC (B, 83).
Note the planning and construction details include mixed records: the development is a new-build release, but some construction metadata lists an earlier era. Also, the external walls are described as solid brick (assumed uninsulated) — further insulation works may be desirable to maximise long-term energy efficiency despite the current good EPC.
Located in an affluent, low-crime village setting, the house is convenient for Driffield, Beverley and Bridlington and close to a good local primary school. Broadband speeds are fast and mobile signal is average, making this a practical home for everyday life in a rural community.
3 bedroom semi-detached house for sale in Main Street, North Frodingham, YO25 8JX, YO25 — £189,999 • 3 bed • 2 bath • 880 ft²
3 bedroom semi-detached house for sale in 5 Eastfield Close, North Frodingham, Driffield, YO25 8ND, YO25 — £210,000 • 3 bed • 1 bath • 906 ft²
3 bedroom semi-detached house for sale in Edmond Close, Driffield, YO25 5GJ, YO25 — £210,000 • 3 bed • 2 bath • 733 ft²
3 bedroom semi-detached house for sale in Park Avenue, Brandesburton, Driffield, YO25 — £250,000 • 3 bed • 1 bath • 832 ft²
3 bedroom semi-detached house for sale in South Townside Road, North Frodingham, YO25 8LE, YO25 — £179,950 • 3 bed • 1 bath • 1078 ft²
3 bedroom semi-detached house for sale in Rudds Green, Nafferton, YO25 4PF, YO25 — £240,000 • 3 bed • 2 bath • 830 ft²


















































































































































