Two-bed first-floor flat near West Finchley tube and local schools.
Share of freehold; approximately 112 years remaining on lease
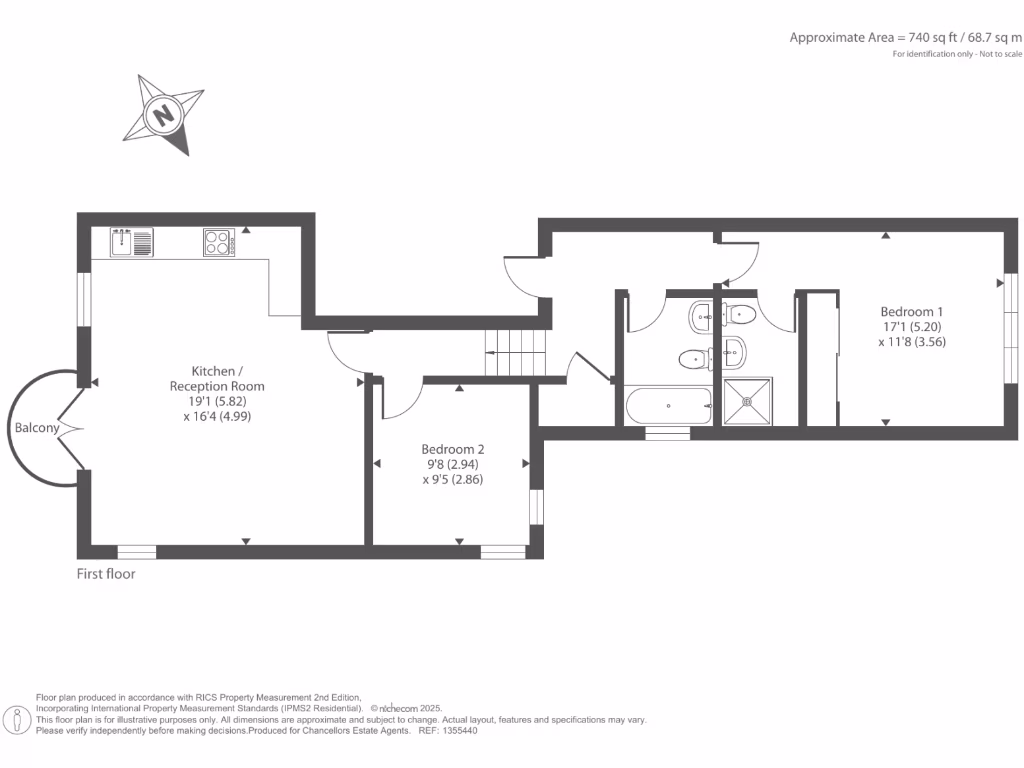
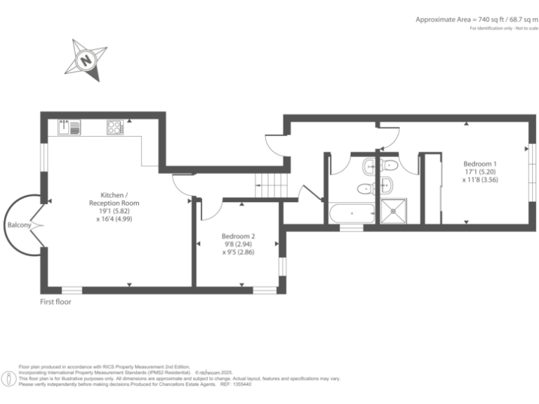
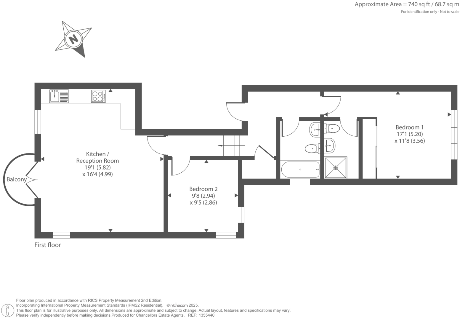
Set within a well-preserved Victorian semi-detached building, this first-floor two-bedroom conversion pairs period character with modern open-plan living. High ceilings and sash-style windows give the large reception room an airy feel, while the open-plan fitted kitchen and balcony create a sociable, contemporary heart to the home.
The layout suits couples or first-time buyers seeking a move-in-ready property with flexibility: two double bedrooms, two bathrooms (one en-suite), and an off-street parking space. At about 740 sq ft the apartment is an average-sized home that balances living and sleeping space comfortably. Chain-free sale and a share of freehold provide straightforward possession and ownership structure.
Practical points to note: the lease runs from 2012 giving around 112 years remaining — sufficient for mortgage purposes but worth confirming with your lender or solicitor. As a first-floor conversion there is stair access only. Service charge and building maintenance arrangements are not detailed here and should be checked prior to offer.
Location is a strong selling point: 0.3 miles to West Finchley tube, fast broadband and excellent mobile signal, low local crime, and several well-rated primary and secondary schools nearby. These factors make the flat a convenient commuter base with good local amenities for everyday life.
2 bedroom flat for sale in Long Lane, London, N3 — £500,000 • 2 bed • 2 bath • 1013 ft²
2 bedroom flat for sale in Granville Road, North Finchley, N12 — £500,000 • 2 bed • 1 bath • 904 ft²
2 bedroom apartment for sale in Chislehurst Avenue, London, N12 — £500,000 • 2 bed • 1 bath • 795 ft²
2 bedroom flat for sale in Moss Hall Grove, North Finchley, N12 — £500,000 • 2 bed • 1 bath • 585 ft²
2 bedroom flat for sale in Finchley Road, Hampstead, NW3 — £499,950 • 2 bed • 1 bath • 778 ft²
2 bedroom flat for sale in Regents Park Road, Finchley Central, N3 — £500,000 • 2 bed • 1 bath • 928 ft²


















































































