Chain-free two-bedroom home with generous rear courtyard near Bootham amenities.
Chain free sale, ready to occupy
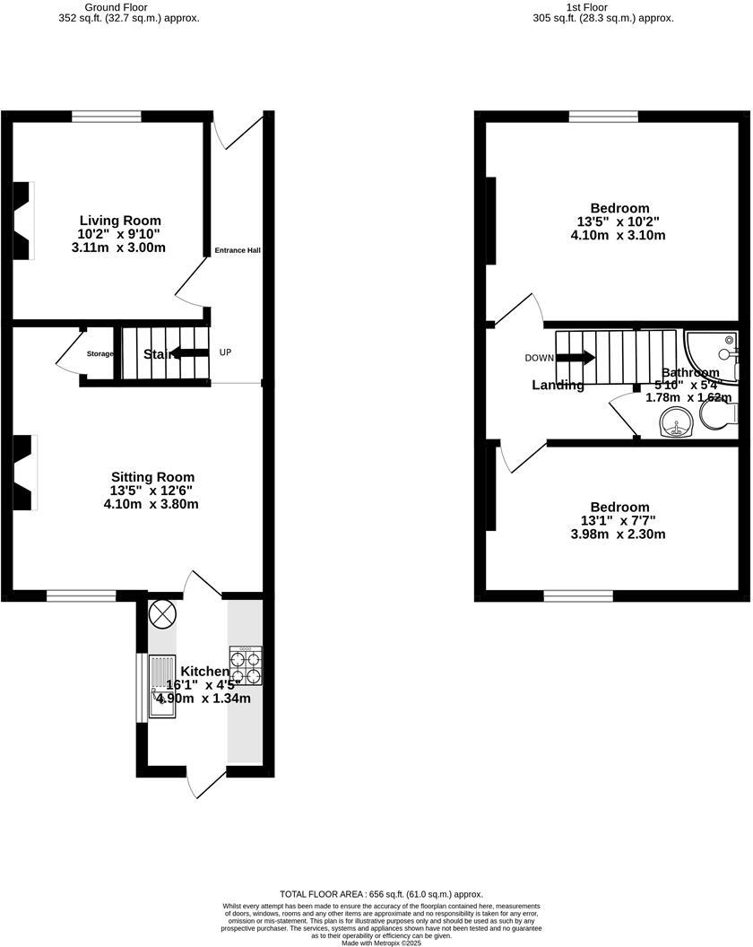
Set within a short walk of Bootham and York’s centre, this chain-free two-bedroom mid-terrace offers compact, practical living over two storeys. Ground floor benefits from two reception rooms and a rear kitchen that opens to a larger-than-average walled courtyard — useful outdoor space for a city property. The property has double glazing, gas central heating and an upstairs shower room, making it habitable with minimal immediate work.
The house suits a first-time buyer or investor seeking a well-located starter home with clear potential to add value. The layout is traditional and straightforward; rooms are modest in size, so sensible furniture planning will maximise usable space. The courtyard and brick-built storage add useful utility for bikes or bins and a pleasant private spot for plants or a seating area.
Buyers should note a few practical issues: the kitchen is dated and likely needs modernization, the walls are solid brick with assumed limited insulation, and the property sits in a high-crime local area which may influence insurance and security choices. On-street parking is the norm and external space is limited to the courtyard. EPC band C and Council Tax band B are positives for running costs.
An early viewing is recommended for those who value proximity to amenities, excellent transport and fast broadband, and who are prepared to personalise a compact Victorian terrace to their taste.
2 bedroom terraced house for sale in Newborough Street, York, YO30 — £270,000 • 2 bed • 1 bath • 741 ft²
2 bedroom terraced house for sale in Scarborough Terrace, York, YO30 — £250,000 • 2 bed • 1 bath • 896 ft²
2 bedroom terraced house for sale in Horner Street, York, YO30 — £215,000 • 2 bed • 1 bath • 715 ft²
2 bedroom terraced house for sale in Salisbury Terrace, York, YO26 — £220,000 • 2 bed • 1 bath • 560 ft²
2 bedroom terraced house for sale in Clifton Green, York YO30 6BA, YO30 — £270,000 • 2 bed • 1 bath • 1036 ft²
2 bedroom terraced house for sale in 35 Cromer Street, York, YO30 — £285,000 • 2 bed • 1 bath • 976 ft²


















































