Well-presented two-bedroom terrace near Bootham — ideal first home or investment..
No onward chain — ready for a quick sale or let
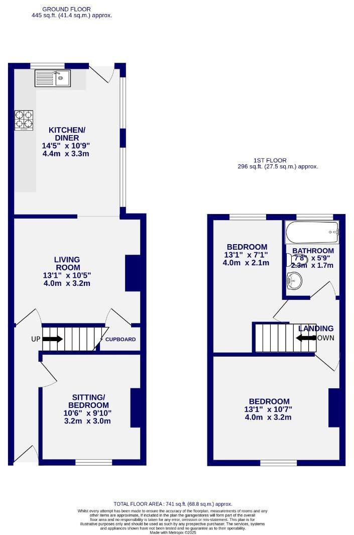
A well-positioned Victorian mid-terrace just off Bootham, this two-bedroom home is an attractive pick for first-time buyers and buy-to-let investors. The house is offered with no onward chain and has a proven rental history, reflecting strong local demand and easy access to the city centre and York station.
Internally the layout works for modern living: a cosy front reception/snug, a rear reception flowing into an extended open-plan kitchen-diner, and two double bedrooms served by a contemporary three-piece bathroom. The kitchen provides good storage and worktop space, and the private enclosed courtyard garden faces south — ideal for a small seating area or container plants.
Practical points to note: the property dates from the early 20th century with solid brick walls likely uninsulated, double glazing appears to be pre-2002 and the EPC is rated C. Heating is mains gas boiler and radiators. On-street parking only and the plot is small, so outdoor space is limited. The immediate area has a higher crime rate compared with other York neighbourhoods.
Overall this is a straightforward, well-presented terrace in a convenient central location. It will suit buyers seeking an affordable first home within walking distance of amenities or investors looking for a centrally located rental with immediate occupancy potential.
2 bedroom terraced house for sale in Salisbury Terrace, York, YO26 — £220,000 • 2 bed • 1 bath • 560 ft²
2 bedroom terraced house for sale in Diamond Street, York, North Yorkshire, YO31 8LH, YO31 — £210,000 • 2 bed • 1 bath • 566 ft²
2 bedroom terraced house for sale in Ratcliffe Street, York, YO30 — £250,000 • 2 bed • 1 bath • 773 ft²
2 bedroom house for sale in Kitchener Street, York, YO31 — £215,000 • 2 bed • 1 bath • 628 ft²
2 bedroom terraced house for sale in Ashville Street, Off Huntington Road, York, YO31 — £210,000 • 2 bed • 1 bath • 474 ft²
2 bedroom terraced house for sale in Arthur Street, Off Lawrence Street, York, YO10 3EL, YO10 — £270,000 • 2 bed • 1 bath • 749 ft²


















































