Well-presented home close to top schools and stations.
Three double bedrooms; main bedroom with en‑suite shower room
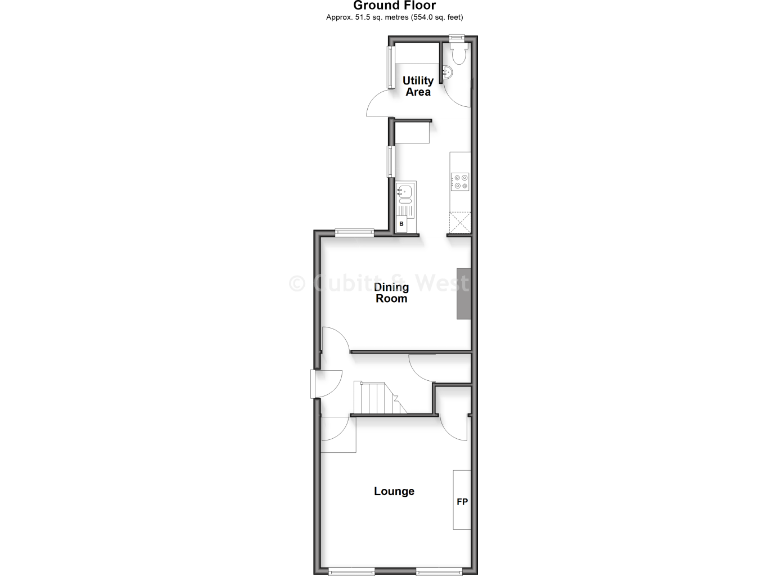
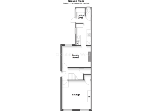
This three-bedroom semi-detached house on Sanderstead Road is a bright, well-presented family home within walking distance of Purley Oaks and Sanderstead stations. The main bedroom benefits from an en‑suite and the property offers a useful basement for storage or potential conversion. The ground floor living space includes a generous lounge and separate dining room, both with feature fireplaces, flowing to a shaker‑style kitchen and separate utility/cloakroom.
Outside is a level rear garden with patio and lawn that will suit family life and entertaining. The front has a hardstanding area suitable for bikes and cycles; immediate car parking is limited. Local amenities are plentiful, schools (including Purley Oaks Primary) are a minute’s walk away, and transport links make commuting straightforward.
Practical details: freehold tenure, double glazing, mains gas central heating, fast broadband and excellent mobile signal. Plot size is small and the house is average in overall footprint; any major extensions or conversions should be checked for necessary consents.
Notable matters: the basement is handy for storage but may need works before any change of use; the plot provides limited off‑street car parking. Buyers should verify fixtures, fittings and any planning history with their solicitor.
3 bedroom semi-detached house for sale in Purley Oaks Road, South Croydon, Surrey, CR2 — £600,000 • 3 bed • 1 bath • 1297 ft²
3 bedroom terraced house for sale in Brighton Road, South Croydon, CR2 — £450,000 • 3 bed • 2 bath • 1292 ft²
3 bedroom end of terrace house for sale in Churchill Road, South Croydon, CR2 — £420,000 • 3 bed • 1 bath • 755 ft²
2 bedroom terraced house for sale in Churchill Road, South Croydon, CR2 — £430,000 • 2 bed • 1 bath • 802 ft²
3 bedroom semi-detached house for sale in Sanderstead Road, Sanderstead, CR2 — £475,000 • 3 bed • 1 bath • 950 ft²
3 bedroom end of terrace house for sale in Braemar Avenue, South Croydon, CR2 — £535,000 • 3 bed • 1 bath • 971 ft²


































































