Three-bedroom family semi with large garden and refurbishment potential near the River Medway.
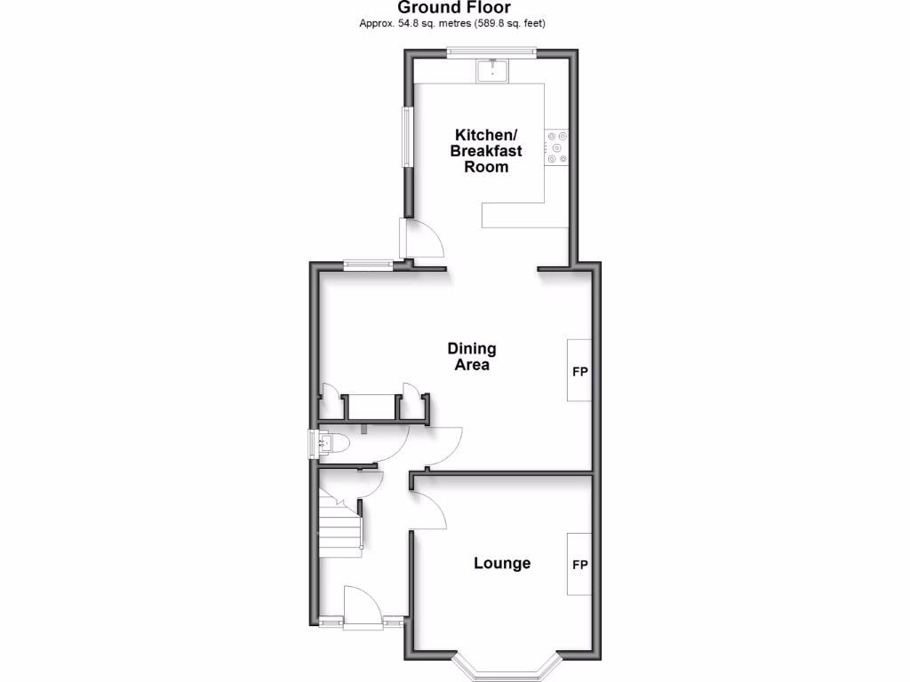
Extended open-plan kitchen/breakfast room with garden access
Set on an elevated plot within easy reach of Maidstone town centre and the River Medway, this three-bedroom semi offers flexible family living across two floors. The property benefits from an extended open-plan kitchen/breakfast room that connects to a sizeable rear garden — ideal for children, pets and outdoor entertaining.
Built in the 1930s, the house retains period character in the bay-fronted lounge and traditional layout, while double glazing and mains gas central heating provide practical, energy-efficient comforts. Room sizes are generous for the area, with a dining space that opens well for modern family life.
There is one family bathroom and a downstairs toilet, so mornings may feel busy with three bedrooms. The house presents clear scope for cosmetic updating and has been described as a fixer-upper in places — an opportunity for buyers to add value through refurbishment.
Location is a strong selling point: quick access to schools (including a highly rated girls’ grammar), good road links, fast broadband and riverside walks. Note the wider area records very high crime, so buyers should satisfy themselves on local safety measures and any implications for insurance or security improvements.
4 bedroom semi-detached house for sale in Elm Grove, Maidstone, Kent, ME15 — £485,000 • 4 bed • 2 bath • 1314 ft²
2 bedroom semi-detached house for sale in 2 Bed Extended Semi Detached Property, ME15 — £300,000 • 2 bed • 1 bath • 754 ft²
3 bedroom semi-detached house for sale in Worcester Road, Maidstone, Kent, ME15 — £325,000 • 3 bed • 1 bath • 915 ft²
3 bedroom terraced house for sale in Mangravet Avenue, Maidstone, Kent, ME15 — £280,000 • 3 bed • 1 bath • 650 ft²
3 bedroom semi-detached house for sale in Willington Street, Maidstone, Kent, ME15 — £415,000 • 3 bed • 1 bath • 850 ft²
3 bedroom semi-detached house for sale in Old Tovil Road, Maidstone, Kent, ME15 — £300,000 • 3 bed • 1 bath • 806 ft²


























































