Spacious coastal home with exceptional views and clear refurbishment potential.
Panoramic sea and harbour views from multiple rooms
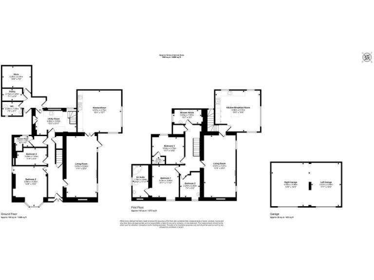
Approx. 2,207 sq ft of living accommodation across multiple storeys
Five spacious bedrooms and three modern bathrooms
Large driveway plus integral garage for private parking
Freehold tenure in prime Port Isaac location, low crime area
Requires full modernisation; dated fixtures and likely insulation work
Oil-fired boiler and radiators; not on a community fuel supply
Slow broadband and average mobile signal may affect remote working
Set on elevated ground in Port Isaac, this substantial five-bedroom detached property delivers commanding panoramic sea and harbour views and generous living space across approximately 2,207 sq ft. The plot includes a large driveway and integral garage, making it a practical option for coastal living or visitor accommodation in a popular harbour village.
The house requires modernisation throughout, which presents clear refurbishment potential to add significant value. Original granite walls likely lack insulation, fittings are dated, and the property uses oil-fired central heating. Broadband speeds are slow and mobile signal is average; these practical factors should be considered by anyone planning to run a holiday let or work-from-home setup.
For investors or developers the layout and scale provide flexibility: the accommodation can support multi-generational use, a high-yield holiday-let model, or a careful reconfiguration (subject to consents). Freehold tenure, very low local crime, no flood risk and a prime Port Isaac address are strong positives.
Early viewing is recommended to appreciate the views, room proportions and scope for enhancement. Buyers should budget for comprehensive refurbishment, possible insulation works to granite walls, and updating of heating, electrical and broadband services.
3 bedroom house for sale in 65 Fore Street, PL29 — £695,000 • 3 bed • 2 bath • 1761 ft²
3 bedroom house for sale in New Road, Port Isaac, PL29 — £350,000 • 3 bed • 2 bath • 1300 ft²
4 bedroom detached house for sale in 4 Tintagel Terrace, PL29 — £455,000 • 4 bed • 2 bath • 1505 ft²
3 bedroom terraced house for sale in Varley View, Port Isaac, PL29 — £375,000 • 3 bed • 2 bath • 868 ft²
Plot for sale in 7 New Road, PL29 — £450,000 • 3 bed • 1 bath • 1276 ft²
7 bedroom semi-detached house for sale in Garfield House, PL29 — £750,000 • 7 bed • 2 bath • 2358 ft²






























































































































































































































