### Standout Features
- **Development Opportunity:** Full planning permission for two properties.
- **Sizeable Plot:** Approximately 0.56 acres, suitable for two generous homes.
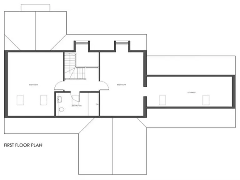
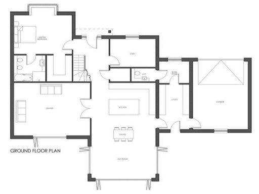
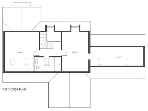
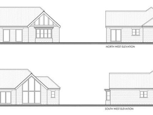
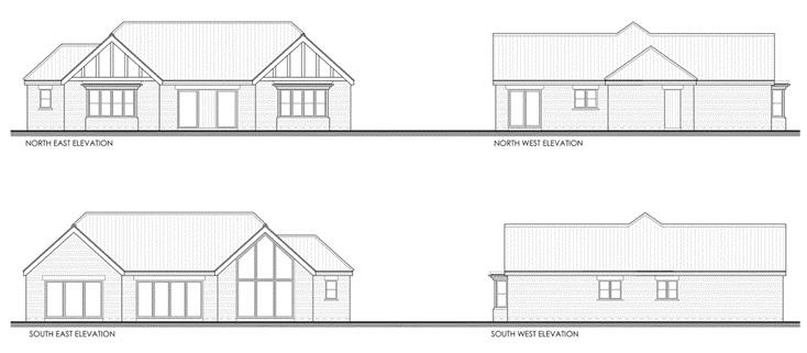
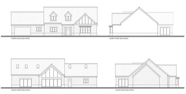
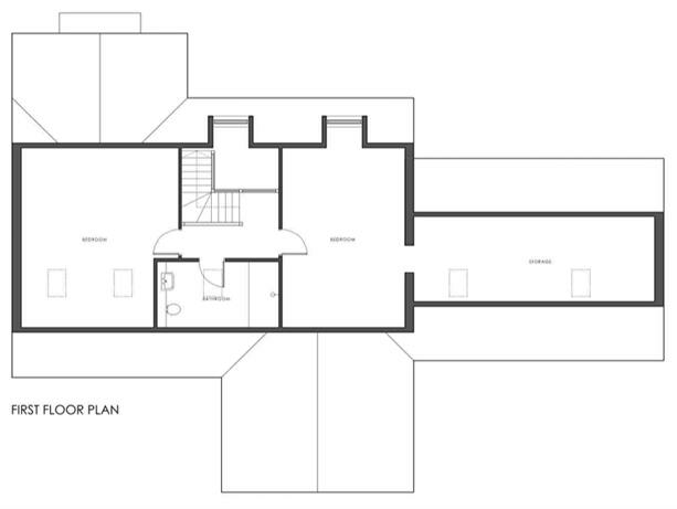
- **Proposed Properties:** 3-bedroom detached dormer and 3-bedroom bungalow, each with double garages.
- **Location:** Just 1 mile from the charming village of Woodhall Spa.
- **Access:** Requires construction of a new access road, with specific easement considerations.
### Summary
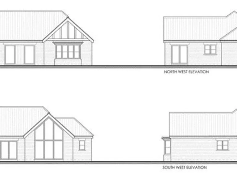
Unlock the potential of this exceptional 0.56-acre development site located on Horncastle Road in Roughton Moor, Woodhall Spa. With full planning permission granted for a 3-bedroom detached dormer bungalow and a 3-bedroom bungalow—both complete with double garages—this opportunity is ideal for builders and investors looking to capitalize on a growing community.
Nestled in a tranquil, semi-rural setting just a mile from the heart of Woodhall Spa, this plot offers a perfect balance of peace and convenience, making it attractive for families seeking a picturesque lifestyle. The land is predominantly bordered by established hedges and fencing, ensuring a degree of privacy while still being part of a welcoming neighborhood.
Do note, potential buyers should be prepared for the responsibility of constructing the access road and ensuring compliance with existing easements, including a right of way for the current vendor. While the site is well-connected to essential services, verifying utility availability will be the buyer's responsibility. Act swifly to secure this rare offering in a coveted location – opportunities like this don’t linger long in the market!
Residential development for sale in Flagship Development Site, Woodhall Spa, LN10 — £800,000 • 1 bed • 1 bath
Land for sale in Potential Development Site, South Street, Horncastle, Lincolnshire, LN9 6DT, LN9 — £200,000 • 1 bed • 1 bath • 20473 ft²
Plot for sale in 1.68 acre Building Plot, Moorby, Boston, PE22 — £200,000 • 1 bed • 1 bath
Land for sale in Sandy Bank Road, New York, LN4 — £150,000 • 1 bed • 1 bath
Plot for sale in Main Road, Stickney, PE22 8AG, PE22 — £450,000 • 1 bed • 1 bath
Land for sale in Tattershall Road, Billinghay, Lincoln, Lincolnshire, LN4 — £150,000 • 1 bed • 1 bath






































