Cleared site with planning consent for a three-bedroom cottage style home.
Planning granted NKDC ref 24/0348/FUL on 06.08.2024
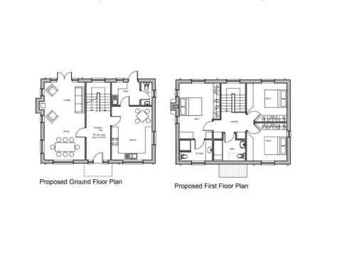
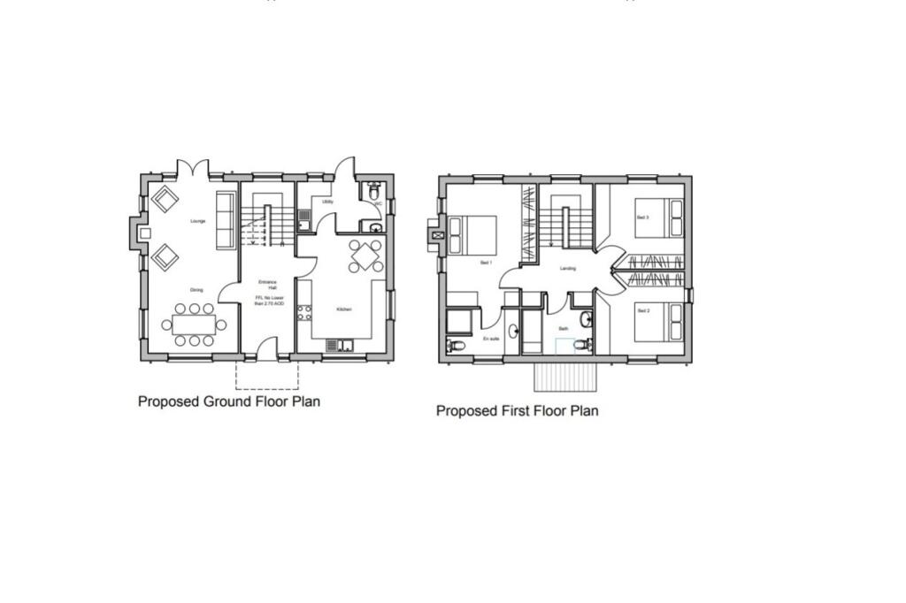
This parcel presents a clear redevelopment opportunity with planning already granted for a three-bedroom replacement dwelling (NKDC ref 24/0348/FUL, granted 06.08.2024). The vendor will demolish the existing bungalow, delivering a cleared site ready for the approved build, reducing the initial preparatory work for a buyer.
Extending to approximately 2 acres (STS), the plot includes paddock and woodland offering scope for landscaping, gardens or ancillary uses subject to consents. Its semi-rural position beside the A153 gives straightforward road access to nearby towns while retaining countryside character.
The proposed house is a cottage-style three double-bedroom design with en suite, main bathroom, lounge-diner, kitchen, utility and WC—suitable for a family home or a small development resale. The site is offered freehold and chain-free, simplifying acquisition.
Be aware of material practical factors: broadband speeds are slow and mobile signal is average, which may affect modern connectivity expectations. The local area records higher deprivation and council tax details are not provided. Buyers should confirm utilities, any further planning conditions, and carry out their own surveys before committing.
Land for sale in Skirth Road, Billinghay, Lincoln, LN4 — £450,000 • 1 bed • 1 bath
Plot for sale in Walcott Road, Billinghay, LN4 — £300,000 • 1 bed • 1 bath
Plot for sale in 1.68 acre Building Plot, Moorby, Boston, PE22 — £185,000 • 1 bed • 1 bath
Land for sale in Sleaford Road, LN4 — £4,000,000 • 1 bed • 1 bath
Plot for sale in 25 High Street, Helpringham, Sleaford, Lincolnshire, NG34 — £120,000 • 1 bed • 1 bath
Plot for sale in Kirkby Lane, Kirkby-on-Bain, Woodhall Spa, LN10 — £145,000 • 4 bed • 3 bath






























































