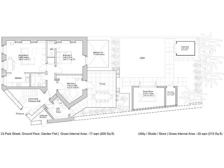
Ground-floor Georgian flat with garden studio, ideal for city living or home-working.
- Ground-floor Georgian flat with high ceilings and full-height sash windows
- Newly renovated interior with modern fitted kitchen and quality finishes
- Private rear garden plus substantial detached studio/office outbuilding
- Two bedrooms; description references an en-suite plus a family bathroom
- Leasehold with 999 years remaining; in-house management company
- Service charge approximately £2,000 per year (approx. £166 monthly)
- Built before 1900; stone walls assumed without insulation
- Average broadband speeds; excellent mobile signal
This ground-floor period flat occupies an elegant Georgian townhouse on Park Street and has been recently renovated to a high standard. Rooms feel generous thanks to high ceilings, full-height sash windows and decorative moldings; the modern fitted kitchen and tasteful bathroom fit well with the period character. The property will suit small families or professionals seeking calm city living with easy access to Bath’s amenities and parks.
A private rear garden and a substantial detached studio/office provide useful outdoor space and flexible accommodation for home-working, hobbies or ancillary use. Practical details include gas central heating via boiler and radiators, a long 999-year lease and an in-house management arrangement with an annual service charge of about £2,000.
Notable practical points are stated plainly: the building dates from before 1900 and walls are stone without assumed insulation, broadband speeds are average, and the setting is leasehold rather than freehold. Overall this is a well-presented, characterful apartment offering low-crime, central-Bath living with useful external space and a versatile outbuilding.
2 bedroom apartment for sale in Park Street, Bath, Somerset, BA1 — £525,000 • 2 bed • 1 bath • 830 ft²
1 bedroom apartment for sale in Park Street, Bath, Somerset, BA1 — £295,000 • 1 bed • 1 bath • 657 ft²
5 bedroom town house for sale in Park Street, Bath, BA1 — £1,750,000 • 5 bed • 3 bath • 3326 ft²
1 bedroom apartment for sale in Park Street, Bath, BA1 — £300,000 • 1 bed • 1 bath • 474 ft²
5 bedroom terraced house for sale in Park Street, Bath, BA1 — £1,895,000 • 5 bed • 2 bath • 3420 ft²
2 bedroom apartment for sale in Park Gardens, Bath, BA1 — £800,000 • 2 bed • 2 bath • 1256 ft²


























































