Spacious renovated farmhouse on a large plot with planning permission to extend.
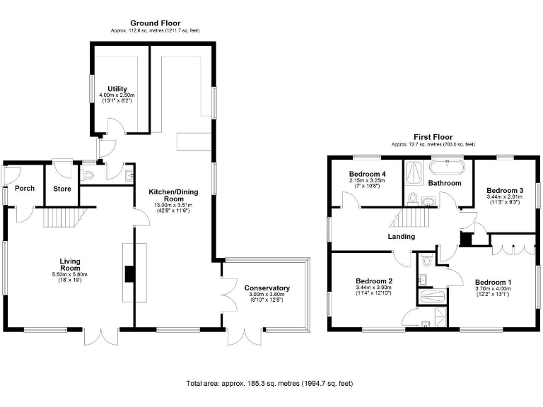
- Four bedrooms and four bathrooms across two storeys
- Recently renovated throughout; move-in condition
- Very large plot with landscaped gardens and covered outdoor kitchen
- Panoramic open-field views to the rear
- Planning permission for extension and double garage (25/03265/FUL)
- Oil central heating and private septic tank present
- Cavity walls likely uninsulated; older double glazing pre-2002
- Gravel driveway with gated, extensive off-street parking
Set on a very large, predominantly flat plot on the edge of Leaton, this recently renovated four-bedroom detached farmhouse delivers generous family accommodation and far-reaching country views. The house has been modernised throughout with a large open-plan kitchen/dining room, a living room with wood-burning stove, conservatory and landscaped gardens with a covered outdoor kitchen area — all arranged to maximise the rural outlook.
Practical positives include a large gated gravel driveway with extensive parking, oil-fired central heating via a recently replaced boiler, mains water and electricity, and high-speed broadband. Planning permission is already granted for a rear one-and two-storey extension plus a double garage (ref: 25/03265/FUL), creating clear scope to increase living space and add garaging.
Buyers should note material specifics: the property uses oil heating and a private septic tank, cavity walls are assumed to have no insulation, and the double glazing was installed before 2002. The house sits in a semi-isolated hamlet setting which gives privacy and countryside tranquillity but means fewer immediate local services; mobile signal and local crime levels are average.
Overall this is a substantial family home for someone wanting privacy, country views and immediate move-in condition, with planning permission to expand. The combination of a large plot, modernised interiors and scope for extension will suit buyers seeking adaptable rural living close to Bomere Heath and Shrewsbury.
4 bedroom detached house for sale in Haughton, Upton Magna, SY4 — £850,000 • 4 bed • 3 bath • 3453 ft²
4 bedroom detached house for sale in Stonethwaite, Dovaston, Kinnerley, Oswestry, SY10 8DS, SY10 — £675,000 • 4 bed • 5 bath • 2882 ft²
5 bedroom house for sale in Goring, Shorthill, Lea Cross, Shrewsbury, SY5 8JE, SY5 — £625,000 • 5 bed • 3 bath • 2709 ft²
4 bedroom detached house for sale in Orchard Lane, Hanwood, Shrewsbury, SY5 — £799,995 • 4 bed • 3 bath • 3000 ft²
5 bedroom detached house for sale in Gorse Lane, Bayston Hill, Shrewsbury, SY3 — £470,000 • 5 bed • 2 bath • 1551 ft²
4 bedroom detached house for sale in Skim Lane, Hookagate, Shrewsbury, SY5 — £740,000 • 4 bed • 2 bath • 2349 ft²










































































































































