Immaculate five-bedroom property with annexe potential and stunning rural views.
Five bedrooms including master with en-suite and dressing room
Large landscaped rear garden with paved patio and countryside views
Spacious lounge and open kitchen/breakfast room with natural light
Tandem garage plus large gravel driveway; ample parking
Potential to create annexe or multi-generational accommodation
Very slow broadband — limits home working and streaming
Council tax band above average for the area
Built 1950s–1960s; glazing install date unknown, allow for future updates
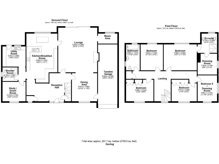
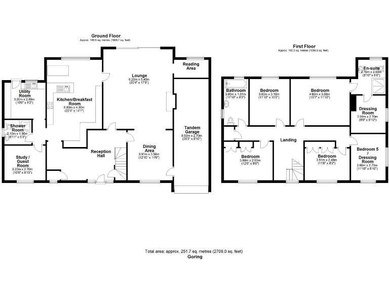
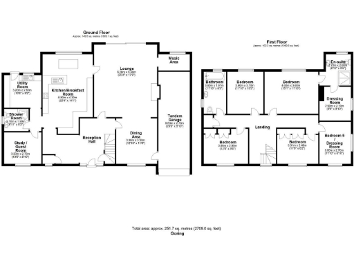
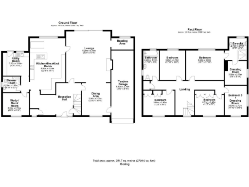
An immaculate, spacious five-bedroom detached house set on a large plot with wide countryside vistas. The ground floor offers generous reception spaces — lounge, dining area, breakfast kitchen, study and utility — arranged to suit family life and entertaining. Sliding doors lead from the lounge onto a paved patio and landscaped garden, creating a strong indoor–outdoor flow for summer barbecues and children’s play.
The first floor provides a well-sized master suite with en-suite shower and dressing room, three further bedrooms with built-in storage, and a fifth bedroom/dressing room. The property’s scale and layout present genuine potential for multi-generational living: the left side could be adapted into an annexe, or the study and utility reconfigured to create a self-contained space with separate access.
Practical strengths include a large gravel driveway with ample parking, a tandem garage, mains gas central heating with radiators, double glazing, and freehold tenure. The village location suits families and those seeking rural pursuits — golf, country walks and quick access to Shrewsbury town centre and the M54.
Notable considerations: broadband speeds are very slow, which may affect home working or streaming. Council tax is above average. The house was constructed in the 1950s–1960s and the exact age of glazing is unknown; while presented immaculately, buyers should allow for potential updating of some services or finishes in the longer term.
4 bedroom detached house for sale in Orchard Lane, Hanwood, Shrewsbury, SY5 — £845,000 • 4 bed • 3 bath • 3000 ft²
5 bedroom detached house for sale in Annscroft, Shrewsbury, SY5 — £695,000 • 5 bed • 2 bath • 2508 ft²
5 bedroom detached house for sale in Gorse Lane, Bayston Hill, Shrewsbury, SY3 — £470,000 • 5 bed • 2 bath • 1551 ft²
4 bedroom detached house for sale in 1 Limes Paddock, Main Road, Dorrington, Shrewsbury SY5 7JW, SY5 — £595,000 • 4 bed • 2 bath • 2489 ft²
5 bedroom detached house for sale in High View Farm, Burlton, Shrewsbury, SY4 — £850,000 • 5 bed • 2 bath • 3988 ft²
5 bedroom house for sale in Cross Houses, Shrewsbury, SY5 — £550,000 • 5 bed • 2 bath • 2108 ft²






















































































































































































