DE13 9GN - 3 bedroom property for sale in Hill Crest Road, Branston, N…

View on Property Piper

3 bedroom property for sale in Hill Crest Road, Branston, Near Tatenhill, DE13

Summary - 2 Hill Crest Road DE13 9GN

3 bed 2 bath Not Specified

**Standout Features:**
- Modern detached three-bedroom new build (constructed in 2022)
- En-suite to the master bedroom and family bathroom
- Spacious open-plan kitchen diner with integrated appliances
- Utility room with additional storage and laundry space
- Attached single garage and private driveway
- Enclosed rear garden with patio area
- Located in a desirable, family-friendly suburb near local schools

**Potential Concerns:**
- Above-average crime rate in the area
- Slow broadband speeds
- Average area deprivation

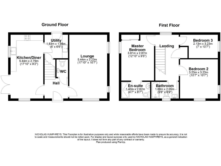
Step into modern living with this stunning three-bedroom detached home located in the desirable Branston Near, Tatenhill development. Boasting a contemporary design, this property features a generous open-plan kitchen diner, equipped with high-gloss cabinetry and integrated appliances, perfect for family meals and entertainment. The dual-aspect lounge offers a bright and airy atmosphere, while the master bedroom enjoys an en-suite for added convenience.

The home is ideally positioned within walking distance of reputable local schools, including the newly established John Taylor Free School, making it a great choice for families. Enjoy outdoor living with an enclosed rear garden and access to an attached garage and driveway for ample parking.

While the area offers a comfortable suburban feel and excellent commuting links to the A38, potential buyers should note the above-average crime rate and slower broadband speeds. This modern gem is ready for viewing now—don’t miss your chance to make it your family’s haven!

Property Details

Brochure Descriptions

Image Descriptions

Floorplan Description

Rooms

Textual Property Features

Detected Visual Features

EPC Details

Nearby Schools

Nearest Bars And Restaurants

,,,,}

Nearest General Shops

,,}

Nearest Grocery shops

,,}

Nearest Supermarkets

,,}

Nearest Religious buildings

,,}

Nearest Medical buildings

,,,}

Nearest Airports

}

Nearest Leisure Facilities

,,,,}

Nearest Tourist attractions

,,}

Nearest Train stations

,,,,}

Nearest Bus stations and stops

,,,,}

Nearest Hotels

,,}

Tags

Local Market Stats

Similar Properties

Meta

High Res Images

Compatible Images

Low res Images

Thumbnails

Raw Images

High Res Floorplan Images

Compatible Floorplan Images

Low res Floorplan Images

FloorplanImages Thumbnail

Raw Floorplan Images