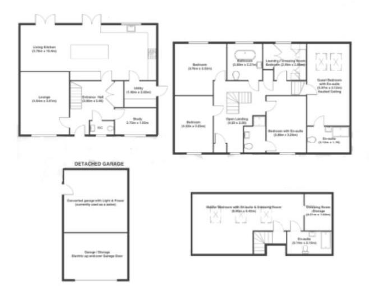
**Standout Features:**
- Six spacious bedrooms, three with en-suites
- Stunning 32ft open-plan living kitchen
- Three versatile reception areas
- Picturesque countryside views
- Private courtyard location with landscaped gardens
- Detached garage & ample off-road parking
- Highly specified finish throughout
**Potential Concerns:**
- Above-average crime rate in the local area
- Council tax is on the expensive side
Discover your dream family home at Avocet Close, a stunning link-detached residence in the picturesque village of Diseworth. With six spacious bedrooms and four modern bathrooms, including three en-suites, this home perfectly balances comfort and functionality. At the heart lies a magnificent 32ft open-plan living kitchen, designed for both entertaining and everyday family life, complemented by two additional reception rooms for versatile use. Immerse yourself in breathtaking countryside views from the private courtyard and enjoy outdoor activities in the well-maintained garden.
Located in an affluent area with good local schools, this home is ideal for families seeking a serene yet connected lifestyle. Experience peace of mind in this exclusive property, which combines modern elegance with rural charm. Don’t miss out on this exceptional opportunity — homes of this caliber are rare on the market. Take the next step and make Avocet Close your family’s new sanctuary!
4 bedroom detached house for sale in The Gables, Diseworth, Derbyshire, DE74 2AE, DE74 — £800,000 • 4 bed • 4 bath • 2671 ft²
4 bedroom detached house for sale in The Woodcroft, Diseworth, DE74 — £445,000 • 4 bed • 3 bath • 1535 ft²
5 bedroom detached house for sale in Clements Gate, Diseworth, Derby, DE74 — £850,000 • 5 bed • 3 bath • 2478 ft²
5 bedroom detached house for sale in Shakespear Drive, Diseworth, Derby, DE74 — £650,000 • 5 bed • 2 bath • 1928 ft²
3 bedroom detached house for sale in Mallard Close, Egginton, Derby, Derbyshire, DE65 6HG, DE65 — £700,000 • 3 bed • 2 bath • 1870 ft²
4 bedroom detached house for sale in Shakespear Close, Diseworth, Derby, DE74 — £425,000 • 4 bed • 3 bath • 1617 ft²


























































































































