**Standout Features:**
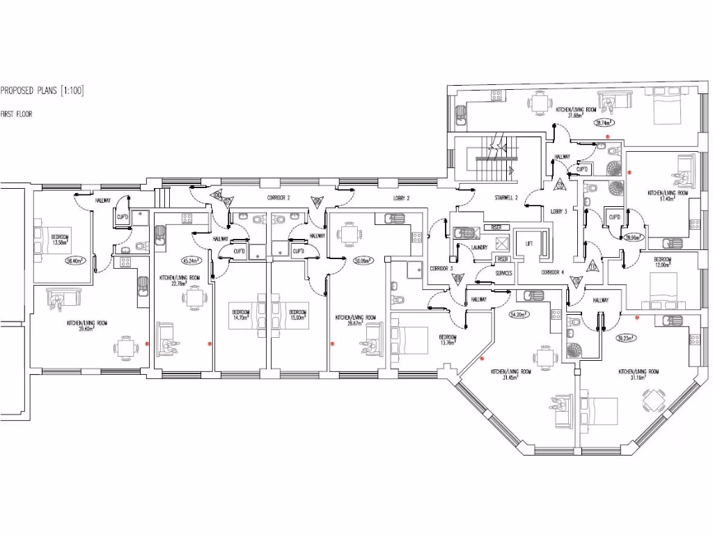
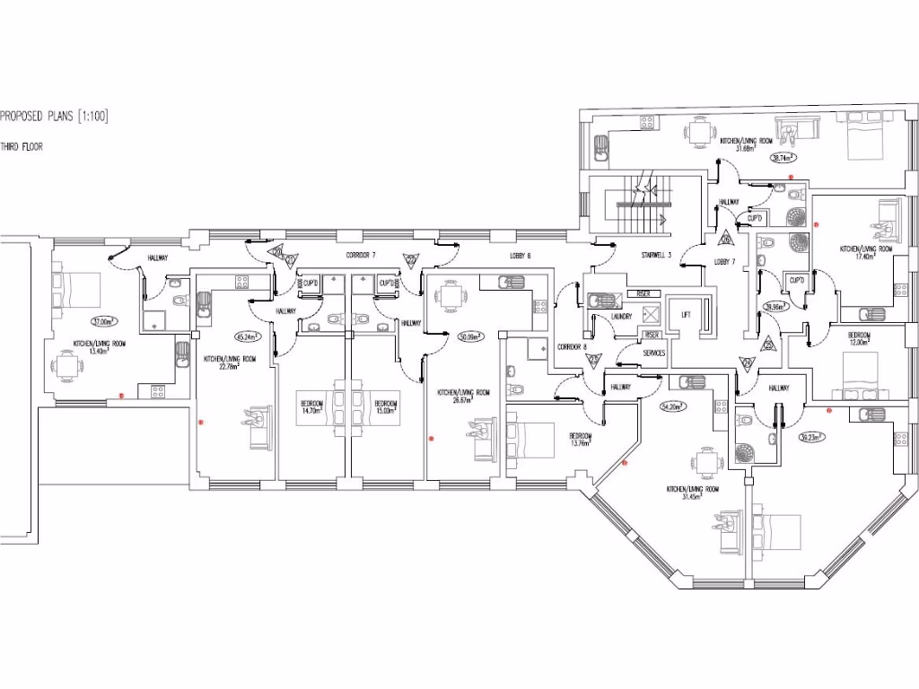
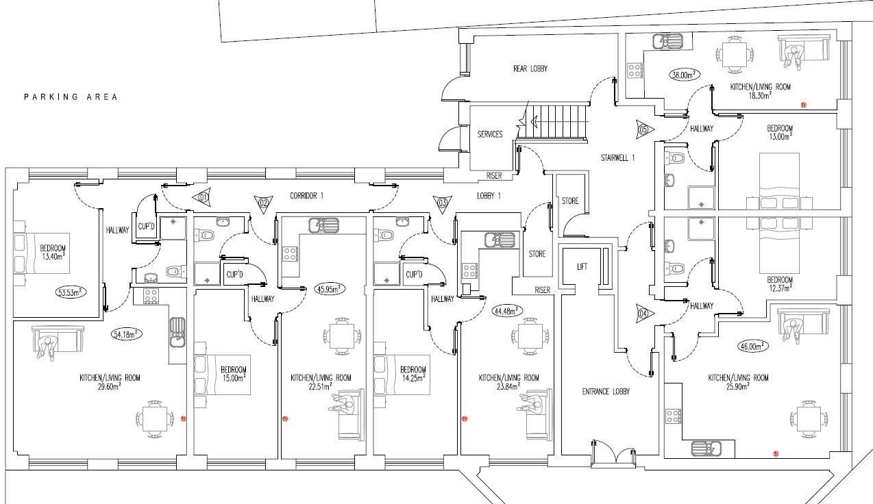
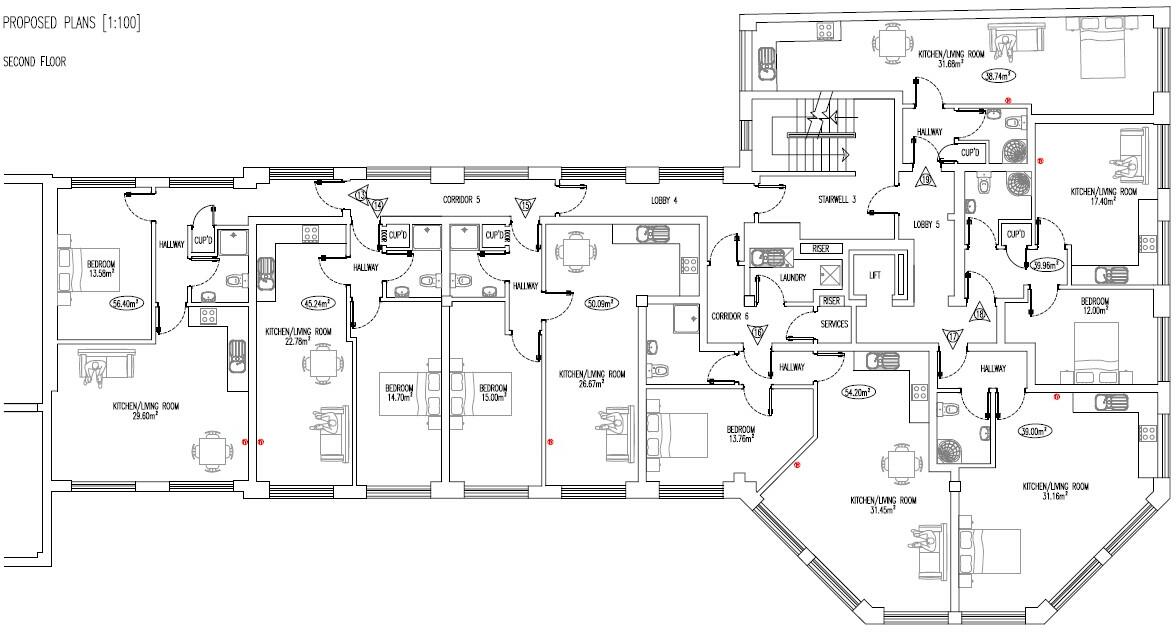
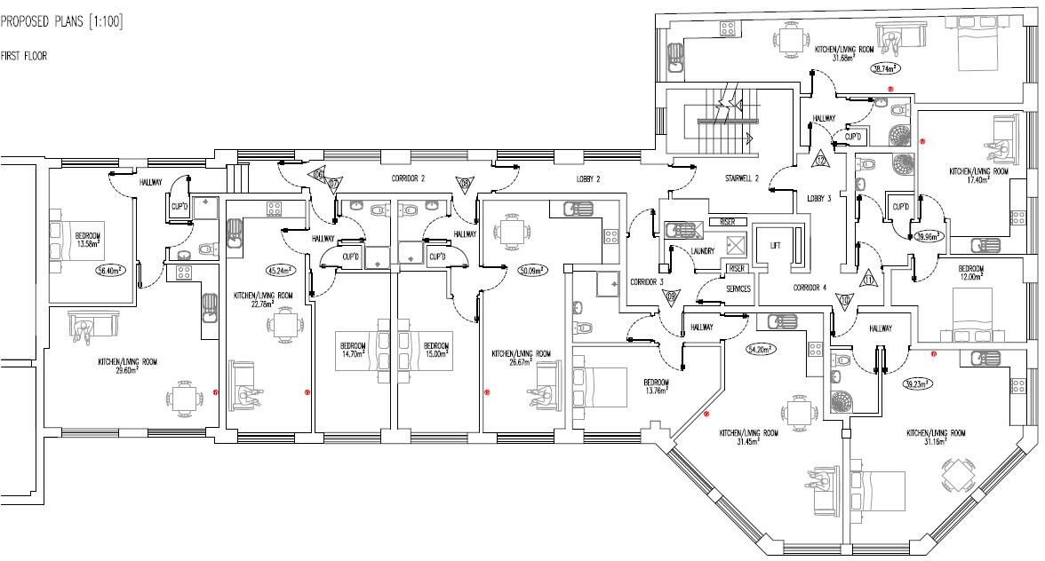
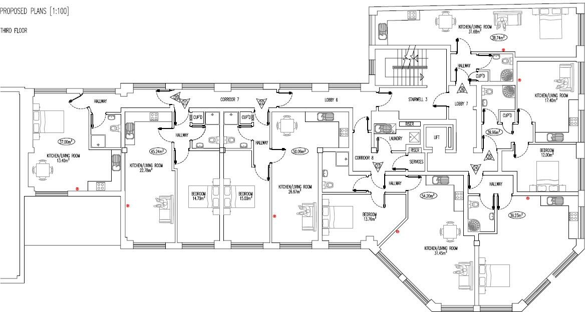
- Change of use approval for conversion to 26 flats (19 one-bed and 7 studios).
- Large total area of approximately 12,708 sq ft (GIA).
- Convenient location in Bedford town center.
- Lift access and 7 designated parking spaces.
- Potential for further development (additional storeys STPP).
**Summary:**  
Discover a prime development opportunity on Lurke Street in Bedford, where an existing four-storey office building awaits transformation into a thriving residential hub. With change of use approval for 26 stylish flats, this sizeable property offers a total of approximately 12,708 square feet. The design includes modern lift access and 7 dedicated parking spaces, enhancing its appeal for future tenants or buyers seeking urban living.
Situated in bustling Bedford, the property boasts excellent transport links, just a short walk from the railway station with direct services to London, making it ideal for investors targeting a market of students and professionals. Local amenities abound, ensuring future residents will enjoy everything from cafes to fitness centers. Additionally, the building’s robust structure hints at its renovation potential, with opportunities to expand vertically subject to planning permission.
While the building is in generally good condition, prospective buyers should consider maintenance for any existing infrastructural elements. Priced competitively at offers exceeding £1,850,000, this is an opportunity not to miss—position yourself at the heart of Bedford's thriving urban landscape before it's too late!
 Land for sale in MK40 1TS, MK40 — £2,250,000 • 1 bed • 1 bath • 17597 ft²
 Land for sale in MK40 1TS, MK40 — £2,250,000 • 1 bed • 1 bath • 17597 ft² Office for sale in Ground, First, Second & Third Floor Offices, The Harpur Centre, Horne Lane, Bedford, MK40 — £2,250,000 • 1 bed • 1 bath • 18557 ft²
 Office for sale in Ground, First, Second & Third Floor Offices, The Harpur Centre, Horne Lane, Bedford, MK40 — £2,250,000 • 1 bed • 1 bath • 18557 ft² Office for sale in 40 Harpur Street, Bedford, MK40 — £400,000 • 1 bed • 1 bath • 1876 ft²
 Office for sale in 40 Harpur Street, Bedford, MK40 — £400,000 • 1 bed • 1 bath • 1876 ft² Office for sale in 70A Tavistock Street, Bedford, Bedfordshire, MK40 — £365,000 • 1 bed • 1 bath • 2312 ft²
 Office for sale in 70A Tavistock Street, Bedford, Bedfordshire, MK40 — £365,000 • 1 bed • 1 bath • 2312 ft² Commercial property for sale in 2-10 St. Johns Street, Bedford, MK42 — £1,000,000 • 1 bed • 1 bath • 9000 ft²
 Commercial property for sale in 2-10 St. Johns Street, Bedford, MK42 — £1,000,000 • 1 bed • 1 bath • 9000 ft² 9 bedroom block of apartments for sale in Brereton Road, Bedford, MK40 — £500,000 • 9 bed • 7 bath • 6983 ft²
 9 bedroom block of apartments for sale in Brereton Road, Bedford, MK40 — £500,000 • 9 bed • 7 bath • 6983 ft²






















