**Standout Features:**
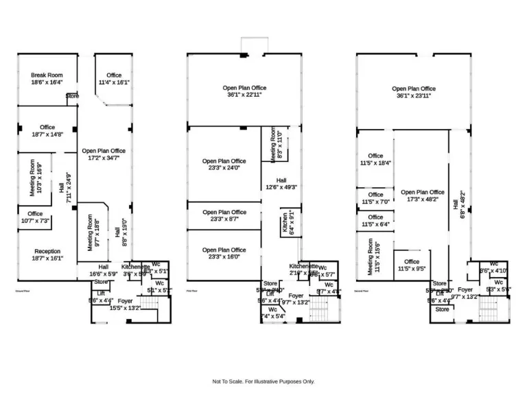
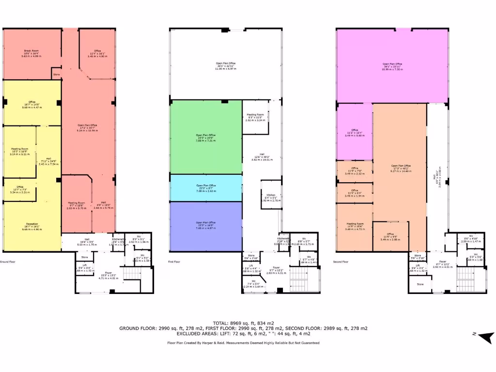
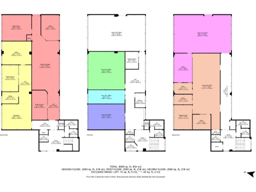
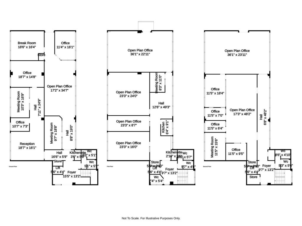
- Expansive 9,000 sq ft of commercial office space across three floors
- 23 secure parking spaces
- Currently generating an annual income of £70,940, with potential to reach £76,940
- Partially let with seven occupied units and two vacant offices
- Prominent town center location with easy access to amenities and transport
**Notable Concerns:**
- Requires modernization and potential renovations
- Situated in an area with high crime rates
**Summary:**
Discover an exceptional investment opportunity with Ebenezer House, a substantial commercial property located at 2-10 St. Johns Street in Bedford. This three-story office building offers a generous 9,000 square feet of Class E space, making it perfect for a diverse range of business operations. The property currently generates an annual income of £70,940, with the prospect of increasing to £76,940 once fully leased, providing an attractive income stream for investors.
Featuring secure entry access, male, female, and disabled washrooms, alongside a kitchenette, the property is laid out to accommodate multiple businesses. With 23 dedicated parking spaces, accessibility is a key advantage, especially in this urban locality. Although the building displays a standard 1960s commercial style that may require modernization, its prime position offers easy walkable access to numerous amenities including restaurants, schools, and public transport links.
This opportunity is ideal for both established businesses and investors looking for a solid investment in a bustling town center. Don’t miss out on this chance to secure a valuable asset in a developing area—viewings are available by appointment only.
9 bedroom block of apartments for sale in Brereton Road, Bedford, MK40 — £500,000 • 9 bed • 7 bath • 6983 ft²
Office for sale in Ground, First, Second & Third Floor Offices, The Harpur Centre, Horne Lane, Bedford, MK40 — £2,250,000 • 1 bed • 1 bath • 18557 ft²
Land for sale in Lurke Street, Bedford, Bedfordshire , MK40 — £1,850,000 • 26 bed • 26 bath • 12708 ft²
Office for sale in 40 Harpur Street, Bedford, MK40 — £400,000 • 1 bed • 1 bath • 1876 ft²
Commercial property for sale in Unit E Bedford Business Centre, Mile Road, Bedford, MK42 — £775,000 • 1 bed • 1 bath • 5302 ft²
Land for sale in MK40 1TS, MK40 — £2,250,000 • 1 bed • 1 bath • 17597 ft²






















































































