**Standout Features:**
- Freehold land parcel with approved planning consent for a three-bedroom detached house.
- Convenient location near Prittlewell Railway Station and Priory Park, ideal for commuters.
- High-speed broadband and excellent mobile signal for modern connectivity.
- Potential for strong rental income or capital growth due to nearby amenities and transport links.
**Concerns:**
- The existing site may require demolition, and there are mentions of damp issues in current structures.
- Property is sold as vacant land, thus requiring competent planning and development knowledge.
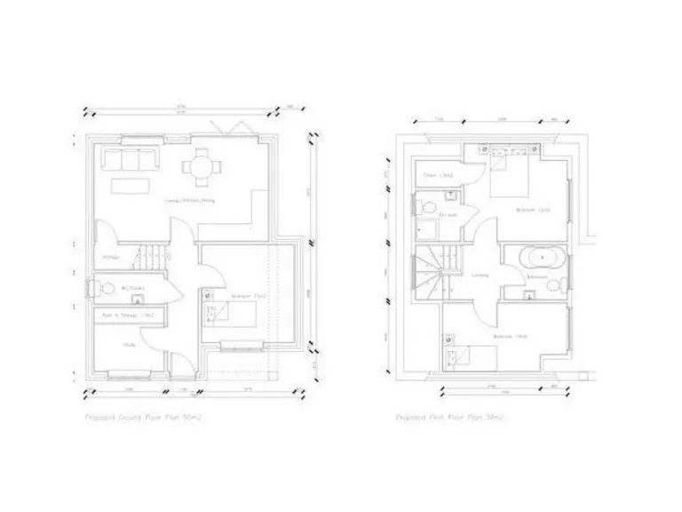
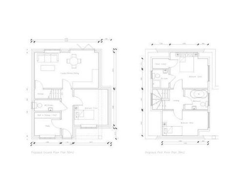
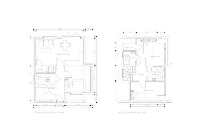
Discover the potential of this freehold development opportunity, perfect for investors or builders alike. Set for auction on June 12, 2025, this plot comes with granted planning permission for the construction of a stylish three-bedroom detached dwelling, offering a chance to create a desirable home in a prime location. The area boasts a blend of residential comfort and accessibility to essential amenities like schools, shops, and public transport, appealing to families and professionals. Envision a modern living space with a lounge, kitchen, and a study—all strategically designed to comfortably house a family.
Given its proximity to Prittlewell Railway Station, travel to London or beyond is a breeze, making this site even more attractive. Don't miss your chance to secure a versatile piece of land in a vibrant urban setting, perfect for those ready to invest in their future. Act quickly, as opportunities like this are seldom available for long! For further details, potential buyers are encouraged to check the local planning portal using reference 24/01493/FUL.
Land for sale in Land lying to the West of, Crowborough Road, Southend-on-Sea, Essex, SS2 6LW, SS2 — £150,000 • 1 bed • 1 bath • 5840 ft²
Land for sale in Rear of 151 East Street, Southend-on-Sea, Essex, SS2 5EB, SS2 — £90,000 • 1 bed • 1 bath • 667 ft²
Commercial property for sale in Building on Wesley Road, r/o 33 & 35 Stanley Road, Southend on Sea, Essex, SS1 2HB, SS1 — £95,000 • 1 bed • 1 bath • 842 ft²
Land for sale in Land Adjoining, 107 St Helen's Road, Westcliff-on-Sea, Essex, SS0 7LF, SS0 — £14,000 • 1 bed • 1 bath
4 bedroom detached house for sale in 107 / 107A Victoria Avenue, Southend-on-Sea, Essex, SS2 6EL, SS2 — £425,000 • 4 bed • 2 bath • 786 ft²
3 bedroom detached house for sale in Plots of Land & Lombard, Canewdon Road, Rochford, Essex, SS4 3JJ, SS4 — £650,000 • 3 bed • 1 bath • 722 ft²










