**Standout Features:**
- **Auction Sale**: Upcoming auction on May 15, 2025.
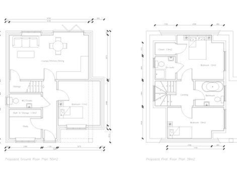
- **Development Potential**: Planning consent for a three-bedroom detached dwellinghouse.
- **Freehold Land**: Secure ownership with flexible future use.
- **Proximity to Amenities**: Close to Prittlewell Railway Station and Priory Park.
- **Excellent Transport Links**: Walkable access to multiple facilities, including schools and healthcare.
**Concise Property Summary:**
Unlock the potential of this exciting development plot located at the convenient rear of 151 East Street, Southend-on-Sea. This freehold site spans a generous 667 square feet and comes with planning permission to replace existing buildings with a modern three-bedroom detached dwellinghouse, ideal for families seeking comfort and space. The proposed layout includes a spacious lounge/kitchen/dining area, study, en-suite, and additional amenities like bin and cycle storage.
Nestled in a neighborhood with strong rental demand and excellent schools nearby, this property presents an appealing investment opportunity. Enjoy the ease of access to public transport and local conveniences, from cafes to healthcare facilities. While the surrounding area exhibits high crime rates, the property's potential rewards undergraduate residential appeal. Don’t miss your chance—this auction will be a competitive opportunity, so act fast to secure your foothold in this vibrant community. For additional planning details, refer to the Southend-on-Sea City Council portal.
Land for sale in Land to the rear of, 151 East Street, Southend-on-Sea, Essex, SS2 5EB, SS2 — £75,000 • 1 bed • 1 bath
Land for sale in Land lying to the West of, Crowborough Road, Southend-on-Sea, Essex, SS2 6LW, SS2 — £150,000 • 1 bed • 1 bath • 5840 ft²
Land for sale in Land Adjoining, 107 St Helen's Road, Westcliff-on-Sea, Essex, SS0 7LF, SS0 — £14,000 • 1 bed • 1 bath
Commercial property for sale in Building on Wesley Road, r/o 33 & 35 Stanley Road, Southend on Sea, Essex, SS1 2HB, SS1 — £95,000 • 1 bed • 1 bath • 842 ft²
2 bedroom mixed use property for sale in 174A / 174B London Road, Southend-on-Sea, Essex, SS1 1PH, SS1 — £190,000 • 2 bed • 1 bath • 430 ft²
Land for sale in Development, Southend-on-sea,, SS1 — £275,000 • 1 bed • 1 bath • 1492 ft²






















