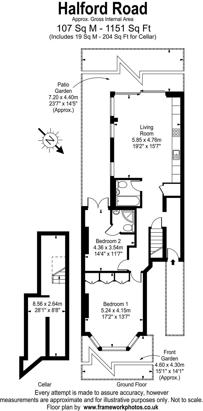
Bright ground-floor home with long lease, close to Richmond centre and stations.
2 double bedrooms and 2 modern bathrooms, newly renovated throughout
Large open-plan living area with high ceilings and engineered timber floors
Private south‑west facing walled courtyard, low-maintenance but small
Own front door, 991-year lease and 50% share of freehold
Basement area provides useful additional storage space
Solid brick walls assumed uninsulated—may need energy improvements
Very high local crime rate—consider security and insurance costs
Council tax above average for the area
A stylish, newly refurbished ground-floor Victorian apartment offering generous internal space, high ceilings and contemporary finishes. The home benefits from a long 991-year lease and a 50% share of the freehold, together with useful basement storage and private access via its own front door.
The apartment opens to a large open-plan living, dining and kitchen area with engineered herringbone flooring and sliding glazed doors leading to a south‑west facing walled courtyard that captures afternoon and evening sun. Two double bedrooms include a principal room with a period bay and high skirtings; the accommodation is presented in move-in condition following a full refurbishment and extension.
Location is a strong selling point: moments from Richmond town centre, excellent transport links to London Waterloo and good local schools nearby. Practical considerations include a small paved garden (low maintenance), above-average council tax and a very high local crime statistic that buyers should factor into their decision. The property’s solid brick walls are assumed uninsulated, which may affect heating efficiency despite mains gas boiler and radiators.
This apartment will suit a family seeking a stylish, ready-to-live-in home close to amenities and parks, or an investor wanting a high-demand Richmond address with strong transport links. The long lease and share of freehold add ownership security; buyers should allow for potential insulation upgrades and consider the local crime profile when planning security or insurance.
2 bedroom apartment for sale in Redholme, Richmond, TW10 — £525,000 • 2 bed • 1 bath • 592 ft²
2 bedroom apartment for sale in Salisbury Road, Richmond, TW9 — £639,950 • 2 bed • 1 bath • 782 ft²
2 bedroom apartment for sale in The Hermitage, Richmond, TW10 — £625,000 • 2 bed • 1 bath • 674 ft²
1 bedroom flat for sale in Church Road, TW9 — £425,000 • 1 bed • 1 bath • 550 ft²
2 bedroom flat for sale in Sheen Park, Richmond, TW9 — £635,000 • 2 bed • 1 bath • 682 ft²
2 bedroom ground floor flat for sale in Sheen Road, Richmond, TW9 — £875,000 • 2 bed • 1 bath • 852 ft²






























































