Moments from Gloucester Road shops, Hyde Park and excellent transport links.
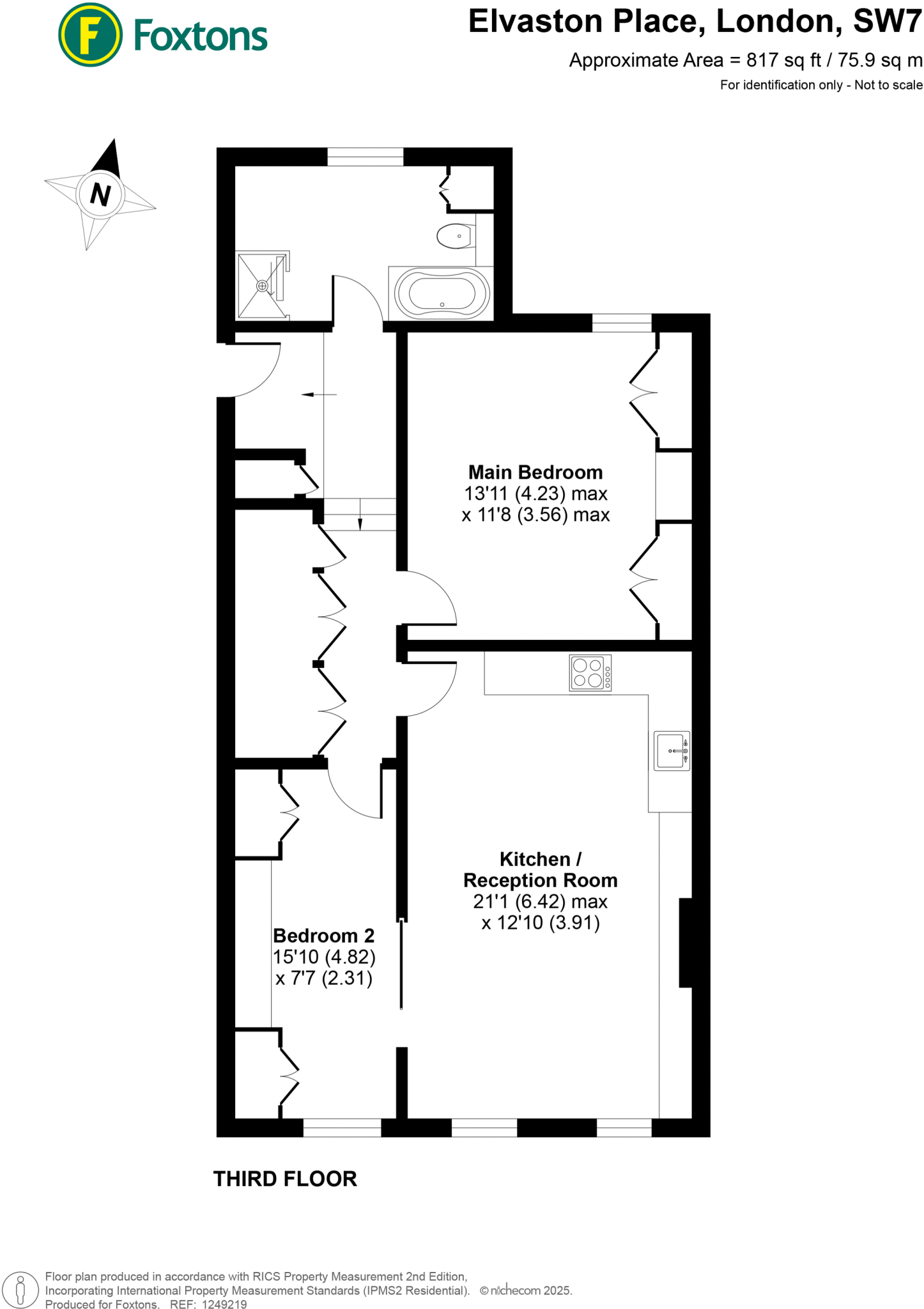
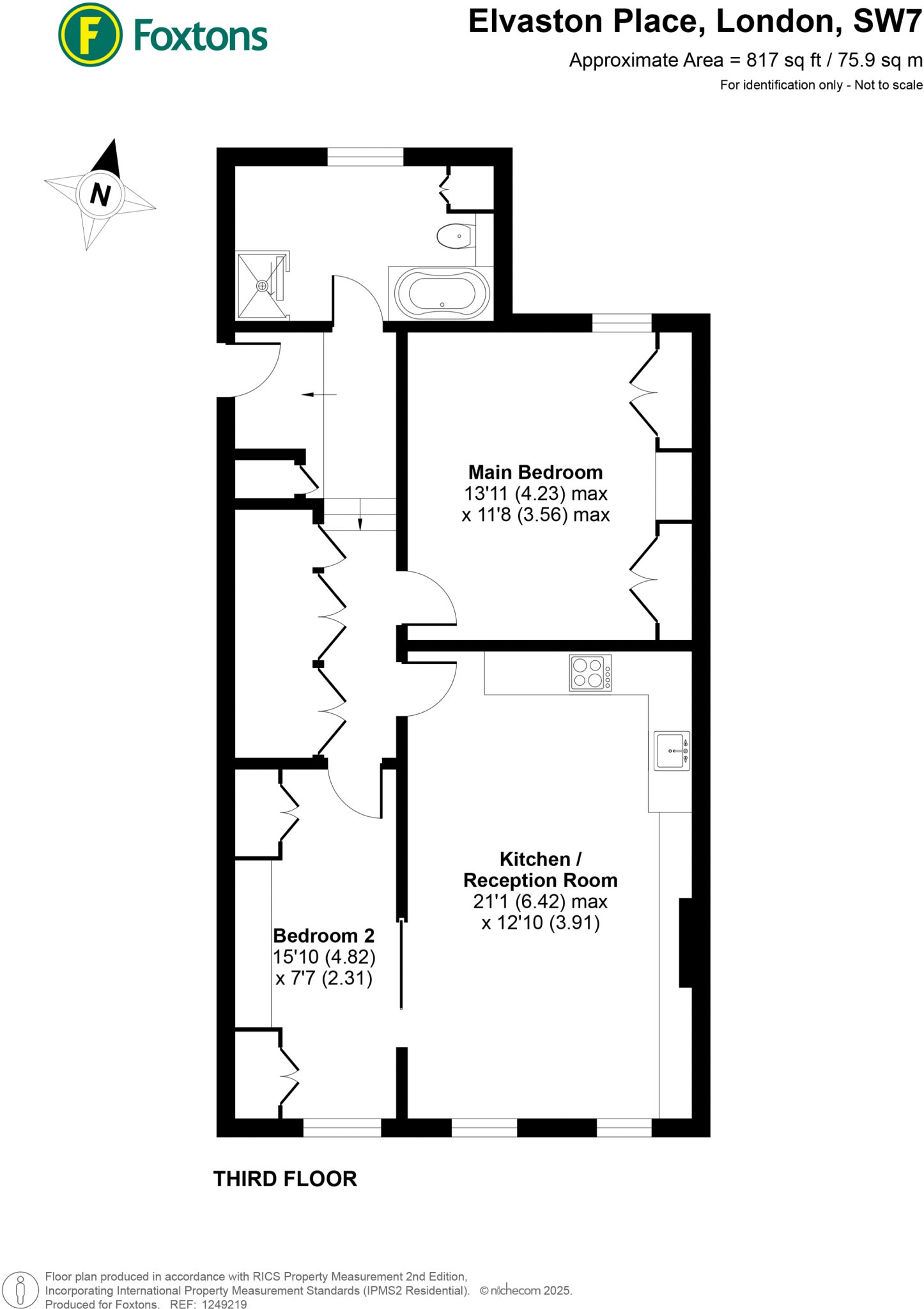
Third-floor flat with lift and bright open-plan reception/dining space
Light, well-proportioned and quietly located on the third floor with lift, this two-bedroom flat combines period character with a contemporary finish. The open-plan reception and modern integrated kitchen create an inviting living and dining space, ideal for relaxed entertaining or working from home. Large windows and wooden floors emphasise brightness and a comfortable city-centre feel.
The principal bedroom is spacious and the second bedroom is set up with a foldaway bed, making the apartment flexible for guests or a home office. A smart, modern bathroom serves the flat. Practical extras include locked storage, a bicycle locker and a resident porter, adding convenience in a central South Kensington location close to Gloucester Road and Hyde Park.
Buyers should note the annual service charge is £4,200 (above average) and the building is of solid brick construction with assumed no cavity insulation. The flat is sold as a share of freehold with about 100 years remaining on the lease. Overall this property will suit buyers wanting central location and character with contemporary interiors, while being realistic about communal costs and potential thermal upgrade needs.
2 bedroom flat for sale in Elvaston Place, London, SW7 — £1,375,000 • 2 bed • 1 bath • 771 ft²
2 bedroom flat for sale in Elvaston Place, London, SW7 — £2,150,000 • 2 bed • 2 bath • 1136 ft²
2 bedroom flat for sale in Elvaston Place London SW7 — £1,250,000 • 2 bed • 1 bath • 810 ft²
1 bedroom flat for sale in Elvaston Place,
South Kensington, SW7 — £800,000 • 1 bed • 1 bath • 627 ft²
2 bedroom flat for sale in Elvaston Place, South Kensington, SW7 — £1,695,000 • 2 bed • 2 bath • 988 ft²
2 bedroom flat for sale in Elvaston Place, London, SW7 — £1,250,000 • 2 bed • 1 bath • 815 ft²


































































































































































