Well-located property with strong renovation and rental potential.
Freehold, chain-free mid-terrace with four bedrooms
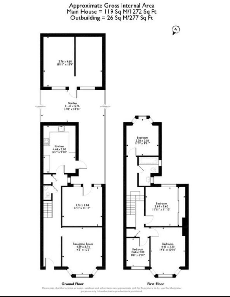
Set on Lea Bridge Road, this 1930s mid-terraced home offers spacious family accommodation with clear scope to modernise. The property includes four bedrooms, two reception rooms and a large rear garden, plus a rare double garage — a strong practical asset for central London homes. Freehold and chain-free, it suits buyers wanting immediate control and improvement potential.
Internally the house retains period character such as a bay window and timber gable, while large windows bring good natural light to principal rooms. The accommodation is dated and requires updating throughout: the living room shows signs of damp and many rooms need modernization. Heating is by mains gas boiler and radiators; glazing is double, but install dates are unknown and walls are likely uninsulated.
The location delivers excellent transport links, fast broadband and strong mobile signal, with several highly rated primary and secondary schools within reach. Practical amenities — shops, cafés, supermarkets and bus routes — are all close by. Note the local area is classified as deprived and recorded crime is above average; buyers should weigh community factors alongside the home’s upside.
For buyers seeking renovation upside or an investment with rental potential, this house offers a solid mid-terrace shell with generous floor area (approximately 1,248 sq ft) and a sizable garden. For family buyers, the layout and outdoor space provide immediate functionality but expect refurbishment work and damp remediation before long-term comfort.
4 bedroom end of terrace house for sale in Luton Road, London, E17 — £600,000 • 4 bed • 2 bath • 1184 ft²
4 bedroom house for sale in Grosvenor Park Road, London, E17 — £800,000 • 4 bed • 4 bath • 1585 ft²
4 bedroom terraced house for sale in Wood Street, E17 — £700,000 • 4 bed • 2 bath • 1319 ft²
4 bedroom terraced house for sale in Capworth Street, Leyton, E10 — £900,000 • 4 bed • 2 bath • 1552 ft²
3 bedroom terraced house for sale in Dagenham Road, London, E10 — £675,000 • 3 bed • 1 bath • 664 ft²
1 bedroom flat for sale in Bloxhall Road, London, E10 — £335,000 • 1 bed • 1 bath • 636 ft²


































































