South-facing garden with field views, double garage and versatile outbuildings.
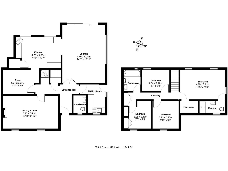
- Four bedrooms; master with en-suite and walk-in wardrobe
- South-facing large garden with field views and newly lined pond
- Substantial 2016 extension; property newly renovated throughout
- Two reception rooms, snug, utility room and vaulted living area
- Double garage, driveway parking for several cars and powered outbuilding
- Mixed heating systems (underfloor, radiators, air-source pump, oil/electric elements)
- Slow broadband and average mobile signal in this hamlet location
- Rural setting with limited local amenities; Stowmarket four miles away
Set on the edge of Buxhall, this four-bedroom semi-detached cottage blends original 19th-century character with a substantial 2016 extension and recent renovations. The living spaces are generous and bright, with vaulted ceilings, bi-fold doors and a south-facing garden that opens to uninterrupted field views — ideal for family outdoor life and entertaining.
Practical features include a master bedroom with en-suite and walk-in wardrobe, two reception rooms plus a snug, a useful utility room, double garage, and a powered brick outbuilding adaptable as a workshop or studio. The garden is a strong asset: large plot, raised beds, decking, newly lined pond and multiple seating areas for privacy and sunshine.
Buyers should note the property's mixed heating setup: underfloor heating in parts, radiators, an air-source heat pump and oil/electric elements reported in the listing. Broadband speeds are slow and mobile signal average, reflecting the rural, hamlet location. The house sits in an affluent, low-crime area but offers limited local amenities — Stowmarket is four miles away for shops, schools and rail links.
Overall this is a comfortable, newly renovated family home with character and significant outdoor space, best suited to buyers seeking rural living with good local schools and easy access to nearby Stowmarket.
3 bedroom detached house for sale in Mill Road, Buxhall, IP14 — £495,000 • 3 bed • 2 bath • 1561 ft²
4 bedroom detached house for sale in Brettenham Road, Buxhall, Stowmarket, IP14 — £695,000 • 4 bed • 2 bath • 443 ft²
4 bedroom detached house for sale in Rising Sun Hill, Rattlesden, BURY ST. EDMUNDS, IP30 — £540,000 • 4 bed • 2 bath • 1690 ft²
3 bedroom cottage for sale in Saxham Street, Stowupland, Stowmarket, IP14 — £315,000 • 3 bed • 2 bath • 1529 ft²
2 bedroom semi-detached house for sale in Tannery Road, Combs, STOWMARKET, IP14 — £250,000 • 2 bed • 2 bath • 722 ft²
2 bedroom end of terrace house for sale in Pains Hill, Little Stonham, STOWMARKET, IP14 — £300,000 • 2 bed • 2 bath • 867 ft²






































































































































































































