Comfortable low-maintenance living with social facilities and guest suite.
New-build retirement apartment for over 60s with Lodge Manager
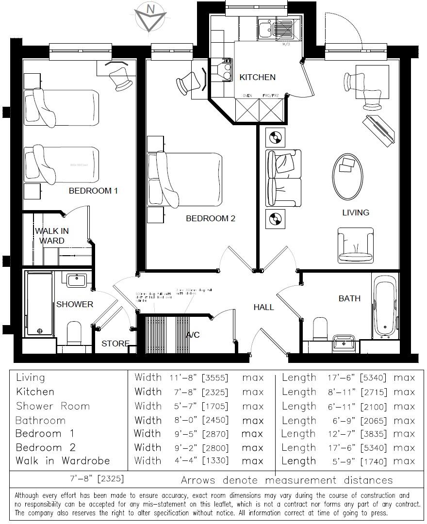
This two-bedroom retirement apartment in Great Shelford is designed for comfortable, low-maintenance living. The home is part of a new-build development exclusively for the over‑60s, with communal facilities including an Owners’ Lounge with coffee bar, landscaped gardens, and a Lodge Manager on site to support social events and day-to-day running.
Internally the apartment is efficiently laid out (approximately 669 sqft) with a fitted kitchen that includes an oven, hob and fridge/freezer, a walk‑in wardrobe to the main bedroom and two bathrooms. Energy-efficient heating, secure camera entry and a 24‑hour call‑centre system add practical convenience and peace of mind.
Positive community features include a guest suite for visitors, gardens maintained by the development, low local crime and easy access to local shops, transport links and amenities. Stamp duty and certain fees are advertised as paid and the scheme states there are no exit fees, which could simplify moving costs.
Notable considerations: the property is leasehold and further fees (for example leasehold packs) may apply. Measurements and services are provided as guidance only and have not been independently tested, so prospective buyers should arrange their own surveys and check council tax details. Broadband and mobile signal are average.
1 bedroom retirement property for sale in Station Road, Great Shelford, Cambridge, CB22 — £434,950 • 1 bed • 1 bath • 532 ft²
1 bedroom retirement property for sale in 1 Bed Apartment, Pearce Lodge, Great Shelford, CB22 — £315,665 • 1 bed • 1 bath
2 bedroom retirement property for sale in Burling Court, Cambridge, CB1 — £125,000 • 2 bed • 1 bath • 579 ft²
2 bedroom flat for sale in Abberley Wood, Great Shelford, Cambridge, CB22 — £300,000 • 2 bed • 1 bath • 700 ft²
2 bedroom flat for sale in Union Lane, Cambridge, CB4 1GX, CB4 — £155,000 • 2 bed • 1 bath • 791 ft²
2 bedroom apartment for sale in Old School Court, Great Shelford, CB22 — £470,000 • 2 bed • 2 bath • 900 ft²






































